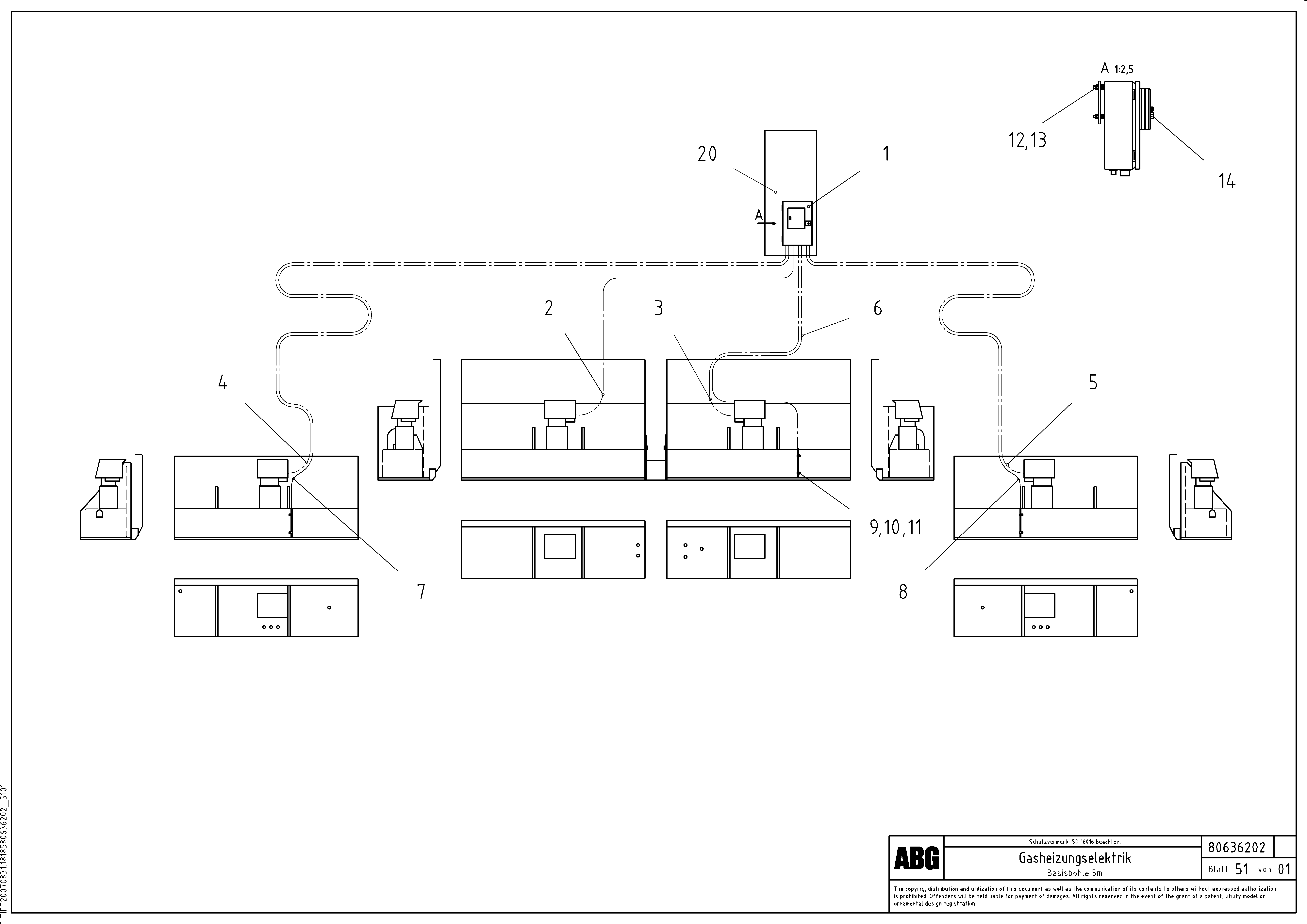
Запчасти Volvo ABG7820B 79524 Gasheating Electric VB 78 GTC ATT. SCREEDS 2,5 - 9,0M ABG5820/6820/7820/7820B

Схема запчастей Volvo ABG7820B - 79524 Gasheating Electric VB 78 GTC ATT. SCREEDS 2,5 - 9,0M ABG5820/6820/7820/7820B
FIT
1:1
100%

Артикул

Название

Примечание

Количество

1

RM 80636129

Control

1шт.

10

RM 58832916

Стопорная шайба (кольцо)

1шт.

10

RM 58832916

Стопорная шайба (кольцо)

1шт.

11

RM 96713623

Винт шестигранник (торцевой ключ)

1шт.

11

RM 96713623

Винт шестигранник (торцевой ключ)

1шт.

12

RM 14083455

Hexagon nut

1шт.

12

RM 14083455

Hexagon nut

1шт.

13

RM 96712898

Плоская шайба

1шт.

13

RM 96712898

Плоская шайба

1шт.

14

RM 13907738

Padlock

1шт.

2

RM 87943569

Cable

L=3250MM

1шт.

20

RM 87944617

Fuel Can Holder

1шт.

3

RM 87943593

Cable

L=2500MM

1шт.

4

RM 87943601

Cable

L=3250MM

1шт.

5

RM 87943619

Cable

L=4250MM

1шт.

6

RM 54762505

Cable

PT 100-B-2500

1шт.

7

RM 54762489

Electronic unit

PT 100-B-6000

1шт.

8

RM 54762497

Cable

PT 100-B-4250

1шт.

9

RM 13913801

Зажим

1шт.

9

RM 13913801

Зажим

1шт.

Выбрано товаров: 20