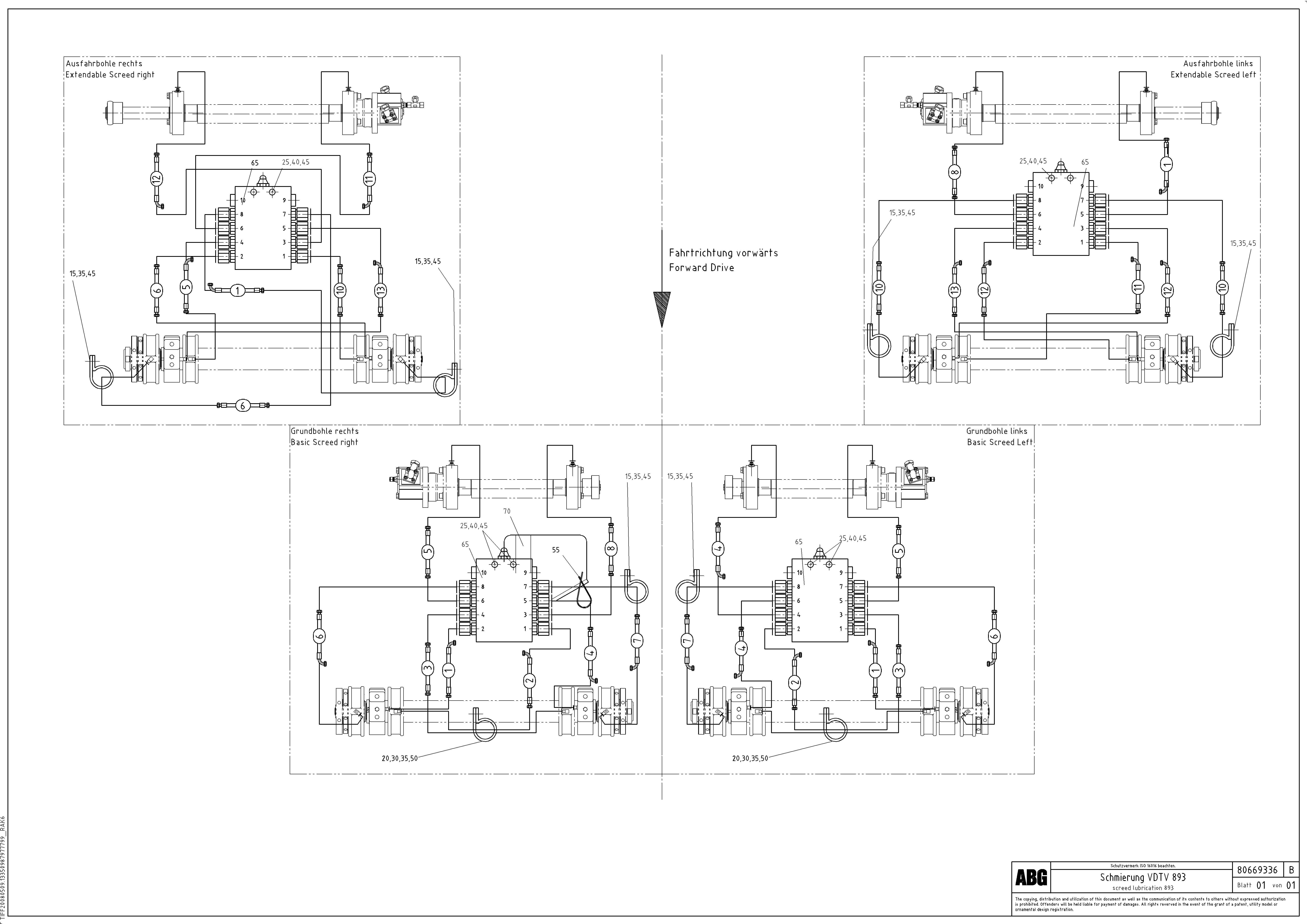
Запчасти Volvo ABG7820B 62816 Screed lubrication for basic and extandable screed VDT-V 89 ETC ATT. SCREEDS 3,0 - 9,0M ABG7820, ABG7820B

Схема запчастей Volvo ABG7820B - 62816 Screed lubrication for basic and extandable screed VDT-V 89 ETC ATT. SCREEDS 3,0 - 9,0M ABG7820, ABG7820B
FIT
1:1
100%

Артикул

Название

Примечание

Количество

1

RM 54624721

Шланг

80669310, 80669328

1шт.

10

RM 87974341

Шланг

80669328

1шт.

11

RM 54589510

Шланг

80669328

1шт.

12

RM 54507710

Шланг

80669328

1шт.

13

RM 87974358

Шланг

80669328

1шт.

15

RM 13938337

Зажим

1шт.

15

RM 13938337

Зажим

1шт.

2

RM 54522495

Шланг

80669310

1шт.

20

RM 13938147

Зажим

1шт.

20

RM 13938147

Зажим

1шт.

25

RM 96712781

Hexagon nut

1шт.

25

RM 96712781

Hexagon nut

1шт.

3

RM 54624739

Шланг

80669310

1шт.

30

RM 14083448

Hexagon nut

1шт.

30

RM 14083448

Hexagon nut

1шт.

35

RM 96714241

Винт шестигранник

1шт.

35

RM 96714241

Винт шестигранник

1шт.

4

RM 54507736

Шланг

80669310

1шт.

40

RM 96718721

Винт шестигранник

1шт.

40

RM 96718721

Винт шестигранник

1шт.

45

RM 58832916

Стопорная шайба (кольцо)

1шт.

45

RM 58832916

Стопорная шайба (кольцо)

1шт.

5

RM 54507652

Шланг

80669310

1шт.

50

RM 96712880

Шайба

1шт.

50

RM 96712880

Шайба

1шт.

55

RM 13909932

Tape

1шт.

55

RM 13909932

Tape

1шт.

6

RM 87974333

Шланг

80669310

1шт.

60

RM 80669310

Hose Kit

VDTV 893 GB

1шт.

61

RM 80669328

Hose Kit

VDTV 893 AFB

1шт.

65

RM 87900247

Корпус клапана (коллектор)

S/N 51 - 17265

1шт.

65

RM 80736002

Корпус клапана (коллектор)

S/N 17266 -

1шт.

7

RM 87968541

Шланг

80669310

1шт.

70

RM 14324826

Hose Guide

1шт.

71

RM 14324834

Кронштейн

1шт.

8

RM 54522453

Шланг

80669310, 80669328

1шт.

Выбрано товаров: 36