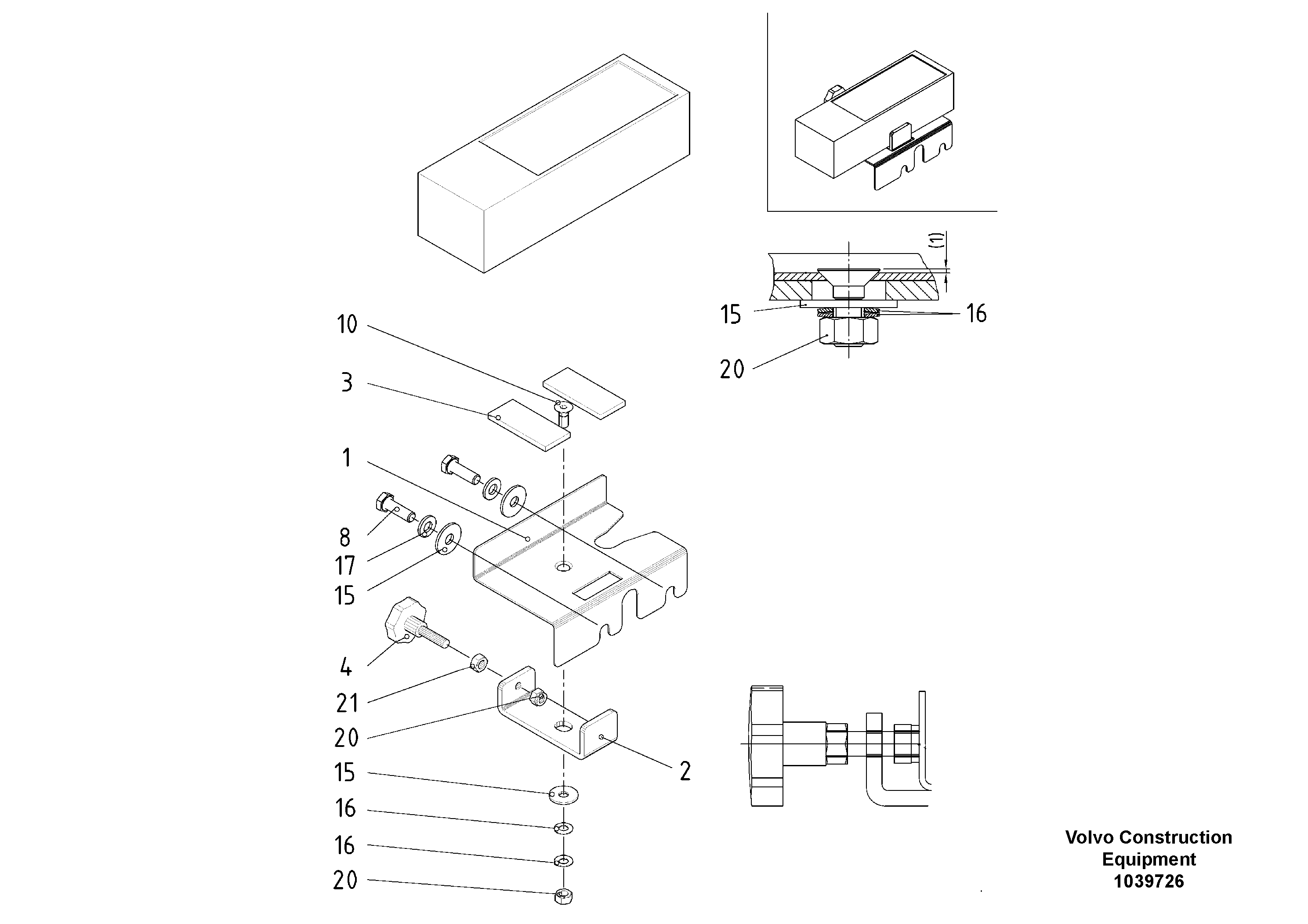
Запчасти Volvo ABG7820B 44618 Control Support ABG7820/ABG7820B ABG7820 S/N 21064-23058 ABG7820B S/N 23059 -

Схема запчастей Volvo ABG7820B - 44618 Control Support ABG7820/ABG7820B ABG7820 S/N 21064-23058 ABG7820B S/N 23059 -
FIT
1:1
100%

Артикул

Название

Примечание

Количество

1

RM 80630353

Support plate

S/N 14389-

1шт.

10

RM 96712930

Болт

S/N 16135-

1шт.

15

RM 58867052

Шайба

S/N -21602

1шт.

15

RM 58867052

Шайба

S/N -21602

1шт.

15

RM 58867052

Шайба

S/N 21603-

1шт.

15

RM 58867052

Шайба

S/N 21603-

1шт.

16

RM 14141071

Шайба пружинная

1шт.

16

RM 14141071

Шайба пружинная

1шт.

17

RM 58854316

Стопорная шайба (кольцо)

S/N 21603-

1шт.

17

RM 58854316

Стопорная шайба (кольцо)

S/N 21603-

1шт.

2

RM 14321376

Angle plate

1шт.

20

RM 14083455

Hexagon nut

1шт.

20

RM 14083455

Hexagon nut

1шт.

21

RM 96712799

Hexagon nut

1шт.

21

RM 96712799

Hexagon nut

1шт.

3

RM 14329155

Rubber plate

1шт.

4

RM 10644250

Болт

1шт.

8

RM 96713185

Винт шестигранник

S/N 21603-

1шт.

8

RM 96713185

Винт шестигранник

S/N 21603-

1шт.

Выбрано товаров: 19