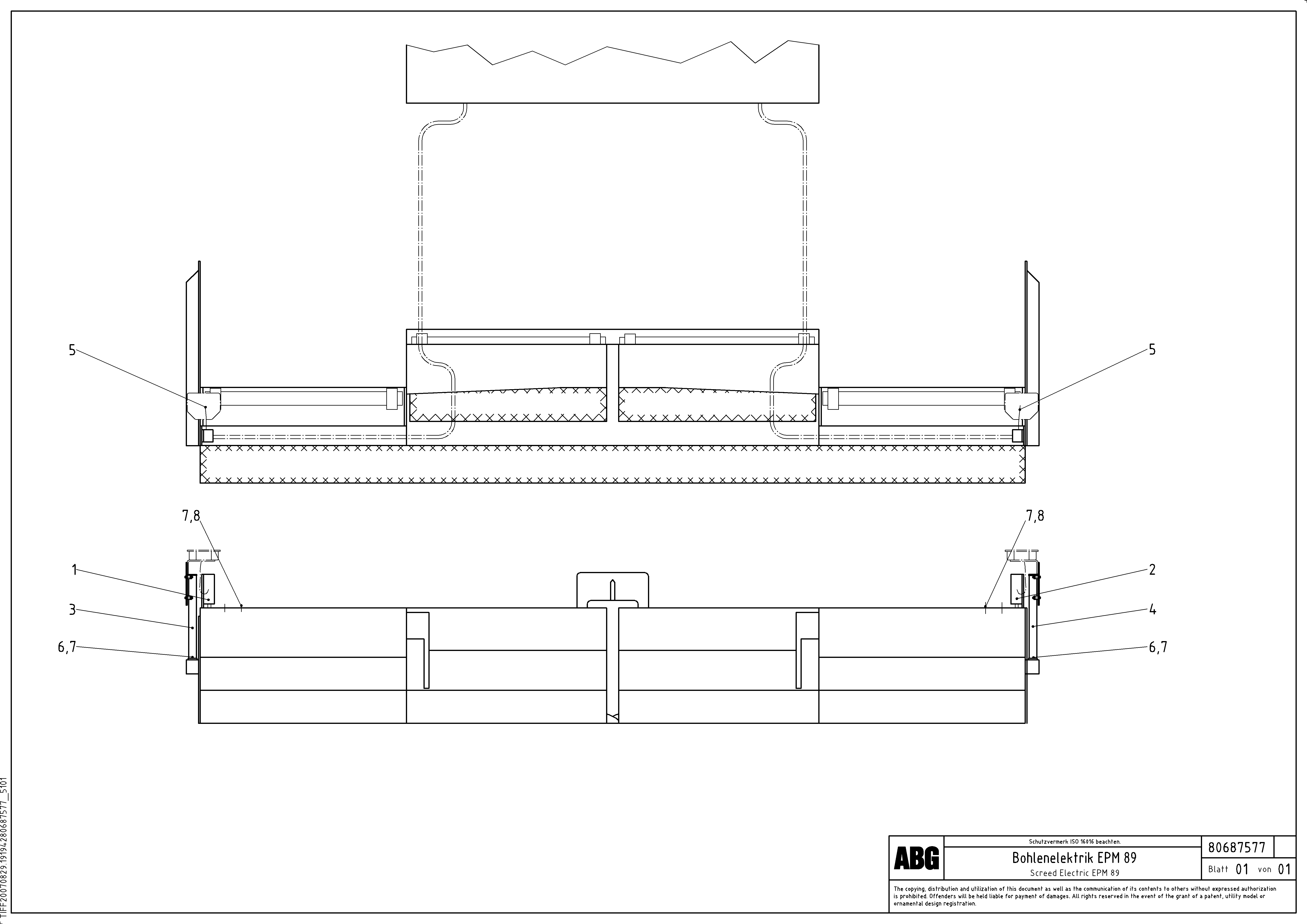
Запчасти Volvo ABG8820B 64527 Electric installation on screed for Epm VDT-V 89 ETC ATT. SCREEDS 3,0 - 9,0M ABG8820, ABG8820B

Схема запчастей Volvo ABG8820B - 64527 Electric installation on screed for Epm VDT-V 89 ETC ATT. SCREEDS 3,0 - 9,0M ABG8820, ABG8820B
FIT
1:1
100%

Артикул

Название

Примечание

Количество

1

RM 87937082

Distribution Box

1шт.

2

RM 87937090

Distribution Box

1шт.

3

RM 80675887

Опора

1шт.

4

RM 80675861

Опора

1шт.

5

RM 54636105

Cable

1шт.

6

RM 96713318

Винт шестигранник

1шт.

6

RM 96713318

Винт шестигранник

1шт.

7

RM 13907761

Стопорная шайба (кольцо)

1шт.

7

RM 13907761

Стопорная шайба (кольцо)

1шт.

8

RM 96718838

Винт шестигранник

1шт.

8

RM 96718838

Винт шестигранник

1шт.

Выбрано товаров: 11