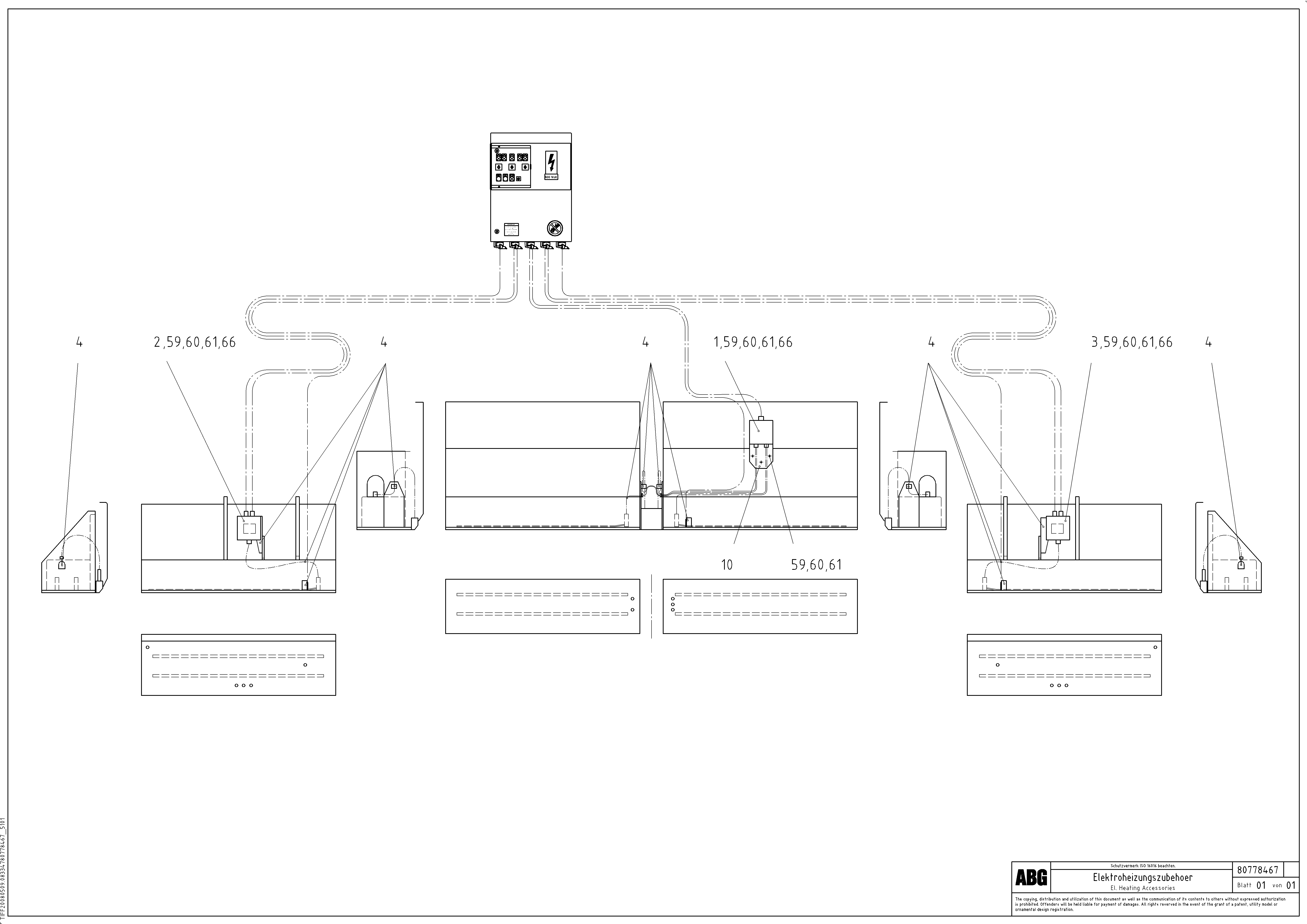
Запчасти Volvo ABG9820 69620 Electrical heating accessories for basic and extandable screed VB 89 ETC ATT. SCREEDS 3,0 - 9,0M ABG9820

Схема запчастей Volvo ABG9820 - 69620 Electrical heating accessories for basic and extandable screed VB 89 ETC ATT. SCREEDS 3,0 - 9,0M ABG9820
FIT
1:1
100%

Артикул

Название

Примечание

Количество

1

RM 80778475

Distribution Box

1шт.

10

RM 54414123

Пластина

1шт.

2

RM 80778483

Distribution Box

LH

1шт.

3

RM 80778491

Distribution Box

RH

1шт.

4

RM 87936993

Отопитель

1шт.

59

RM 96713193

Винт шестигранник

1шт.

59

RM 96713193

Винт шестигранник

1шт.

60

RM 58854316

Стопорная шайба (кольцо)

1шт.

60

RM 58854316

Стопорная шайба (кольцо)

1шт.

61

RM 58833898

Hexagon nut

1шт.

61

RM 58833898

Hexagon nut

1шт.

66

RM 87906228

Tube Insulation

1шт.

Выбрано товаров: 12