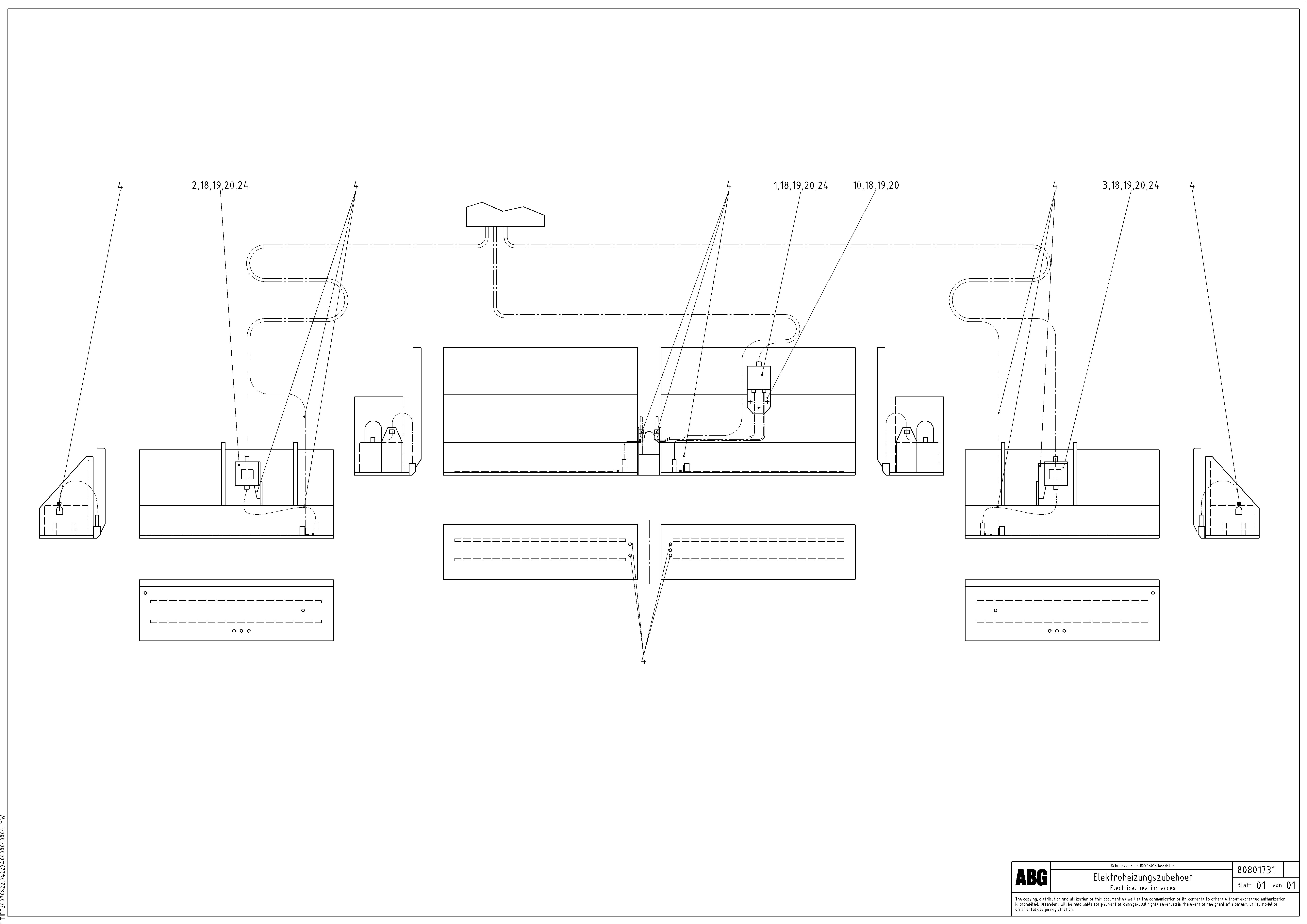
Запчасти Volvo ABG9820 64508 Electrical heating accessories for basic and extandable screed VDT-V 89 ETC ATT. SCREEDS 3,0 - 9,0M ABG9820

Схема запчастей Volvo ABG9820 - 64508 Electrical heating accessories for basic and extandable screed VDT-V 89 ETC ATT. SCREEDS 3,0 - 9,0M ABG9820
FIT
1:1
100%

Артикул

Название

Примечание

Количество

1

RM 80801764

Distribution Box

1шт.

10

RM 54414123

Пластина

1шт.

18

RM 96713193

Винт шестигранник

1шт.

18

RM 96713193

Винт шестигранник

1шт.

19

RM 58854316

Стопорная шайба (кольцо)

1шт.

19

RM 58854316

Стопорная шайба (кольцо)

1шт.

2

RM 54636246

Distribution Box

LH

1шт.

20

RM 58833898

Hexagon nut

1шт.

20

RM 58833898

Hexagon nut

1шт.

24

RM 87906228

Tube Insulation

S/N 12105 -

1шт.

3

RM 54636238

Distribution Box

RH

1шт.

4

RM 87906251

Отопитель

S/N 12067 -

1шт.

Выбрано товаров: 0