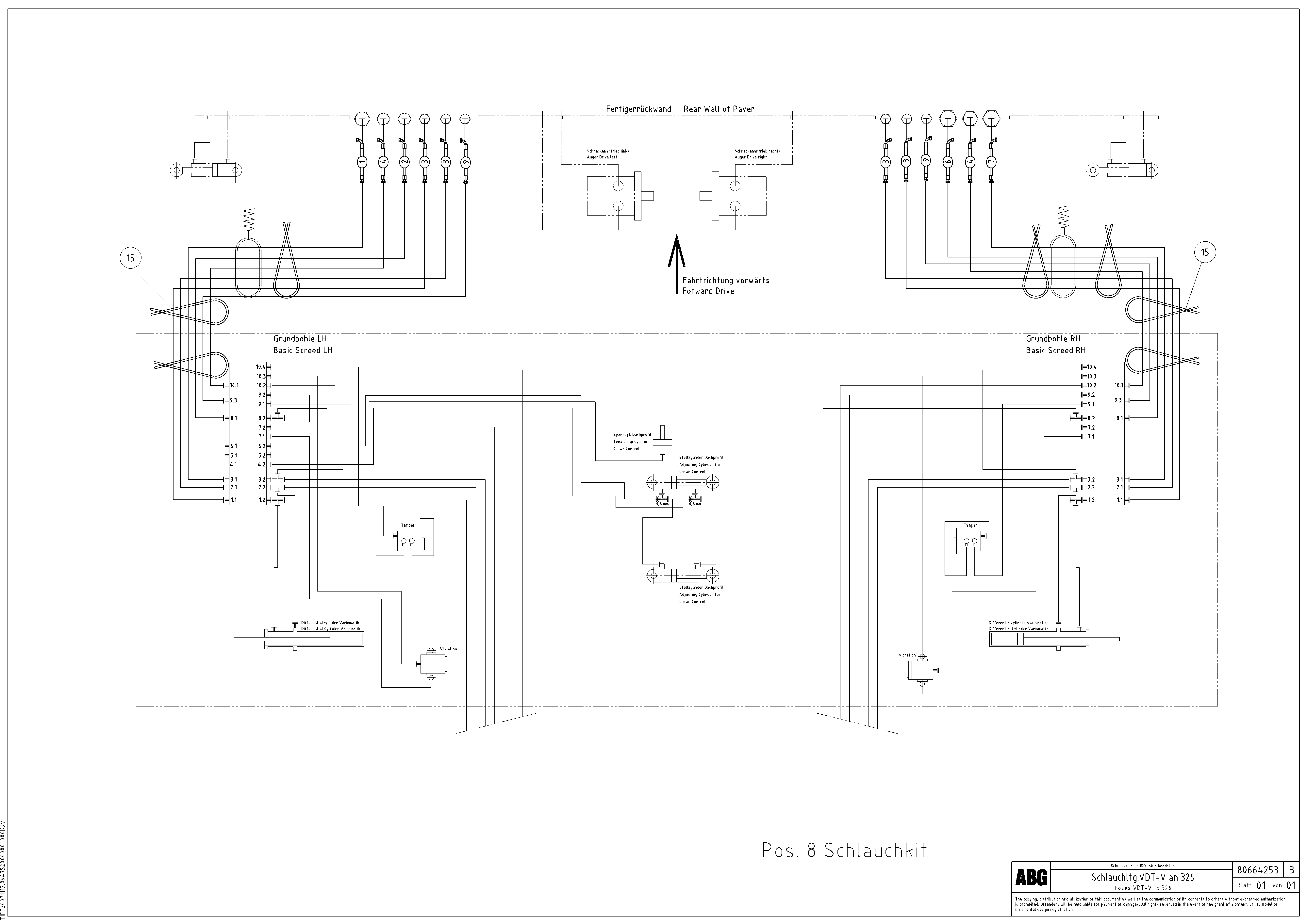
Запчасти Volvo ABG9820 79821 Hose-kit, for basic screed VDT-V 88 GTC ATT. SCREEDS 3,0 - 9,0M ABG9820

Схема запчастей Volvo ABG9820 - 79821 Hose-kit, for basic screed VDT-V 88 GTC ATT. SCREEDS 3,0 - 9,0M ABG9820
FIT
1:1
100%

Артикул

Название

Примечание

Количество

1

RM 13936372

Шланг

1шт.

15

RM 13910864

Tape

1шт.

15

RM 13910864

Tape

1шт.

2

RM 14235600

Шланг

1шт.

3

RM 80614258

Шланг

1шт.

4

RM 54544176

Шланг

1шт.

6

RM 87984860

Шланг

1шт.

7

RM 87984878

Шланг

1шт.

8

RM 80664162

Hose assembly

1шт.

9

RM 80845720

Шланг

S/N 21000 -

1шт.

Выбрано товаров: 10