Запчасти Volvo ABG9820 78974 Auger extensions Variomatic VDT-V 88 GTC ATT. SCREEDS 3,0 - 9,0M ABG9820

Схема запчастей Volvo ABG9820 - 78974 Auger extensions Variomatic VDT-V 88 GTC ATT. SCREEDS 3,0 - 9,0M ABG9820
FIT
1:1
100%

Артикул

Название

Примечание

Количество

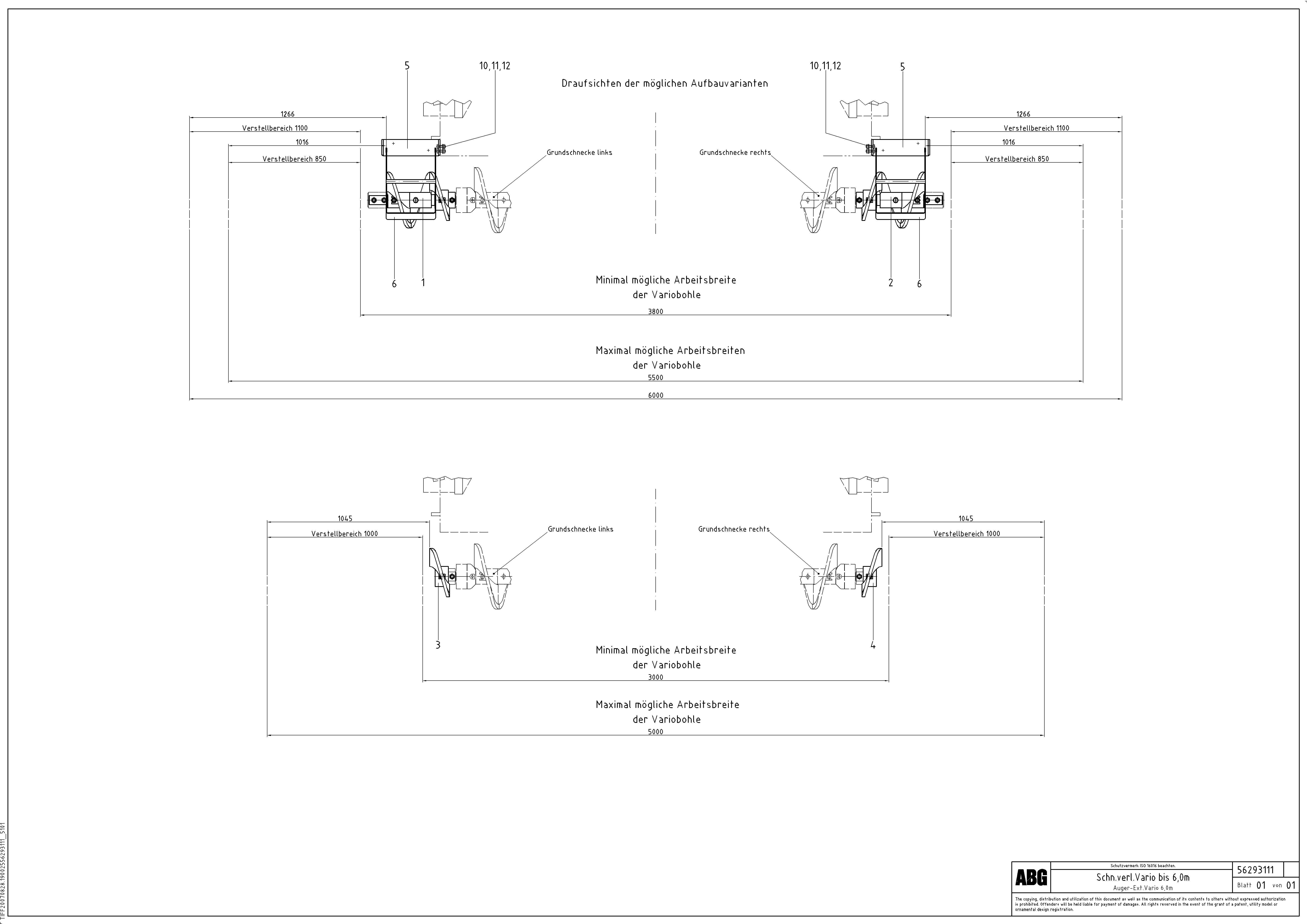
1

RM 13965686

Auger

442 LH

1шт.

10

RM 96720677

Винт шестигранник

1шт.

10

RM 96720677

Винт шестигранник

1шт.

11

RM 96719182

Hexagon nut

1шт.

11

RM 96719182

Hexagon nut

1шт.

12

RM 14261028

Стопорная шайба (кольцо)

1шт.

12

RM 14261028

Стопорная шайба (кольцо)

1шт.

2

RM 13965694

Auger

442 RH

1шт.

3

RM 58833146

Auger

140?RH

1шт.

4

RM 58833153

Auger

140?RH

1шт.

5

RM 56279169

Tunnel

EXT. 375

1шт.

6

RM 56264542

Protecting grating

1шт.

Выбрано товаров: 12