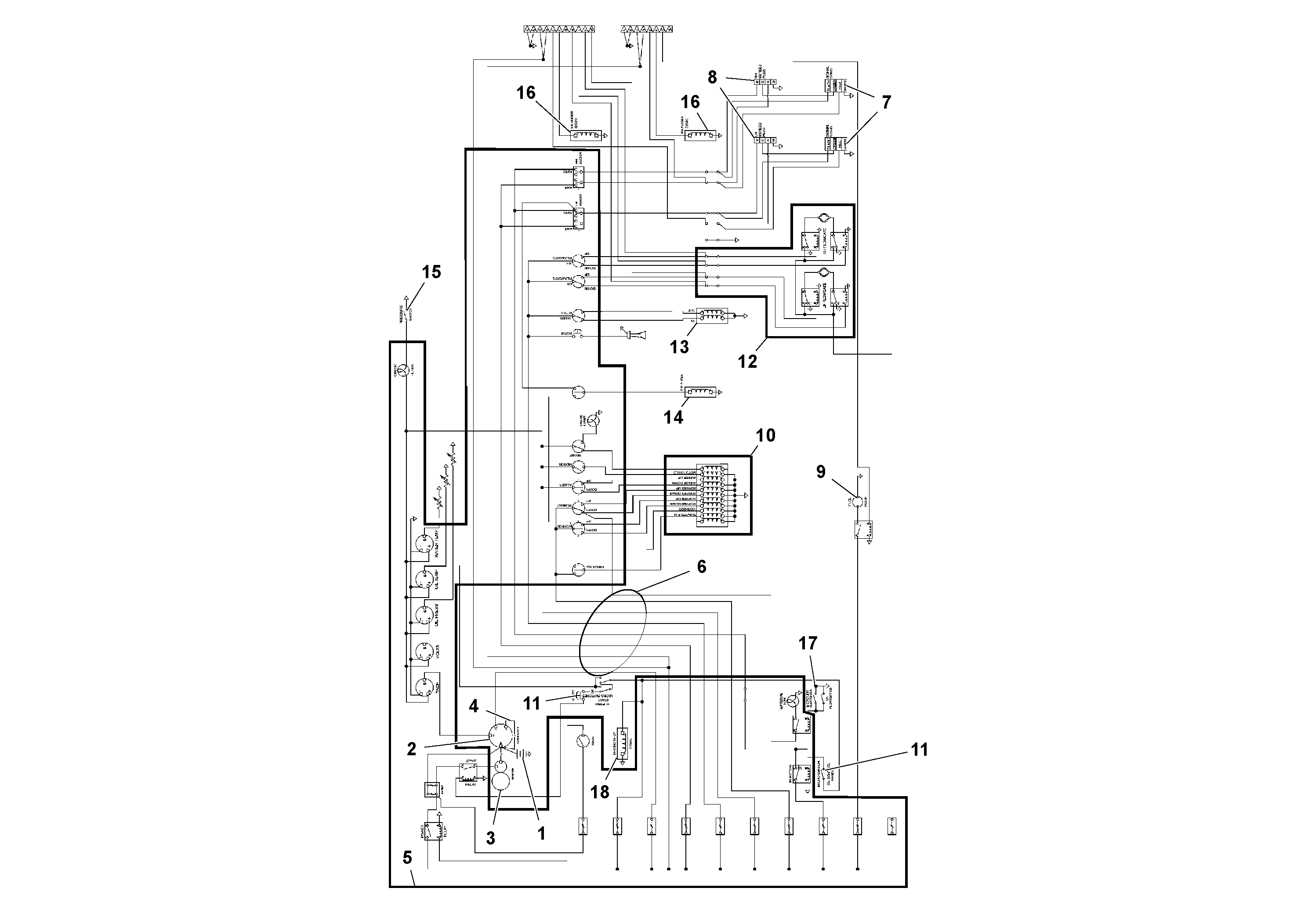
Запчасти Volvo PF4410 36706 Wiring diagram PF4410 S/N 197449-

Схема запчастей Volvo PF4410 - 36706 Wiring diagram PF4410 S/N 197449-
FIT
1:1
100%

Артикул

Название

Примечание

Количество

1

RM 15505365

Батарея аккумуляторная

1шт.

11

RM 20934212

Переключатель

1шт.

11

RM 20934212

Переключатель

1шт.

14

RM 20303855

Hydraulic valve

1шт.

15

RM 20929931

Переключатель

1шт.

2

RM 13788039

Alternator

1шт.

3

RM 13366620

Starter motor

1шт.

4

RM 13598883

Cable harness

1шт.

6

RM 15624547

Electrical inst

1шт.

8

RM 20933834

Receptacle

1шт.

Выбрано товаров: 10