Запчасти Volvo ABG4371 S/N 0847503049- 93979 Auger Extension Assembly 3.5 m

Схема запчастей Volvo ABG4371 S/N 0847503049- - 93979 Auger Extension Assembly 3.5 m
FIT
1:1
100%

Артикул

Название

Примечание

Количество

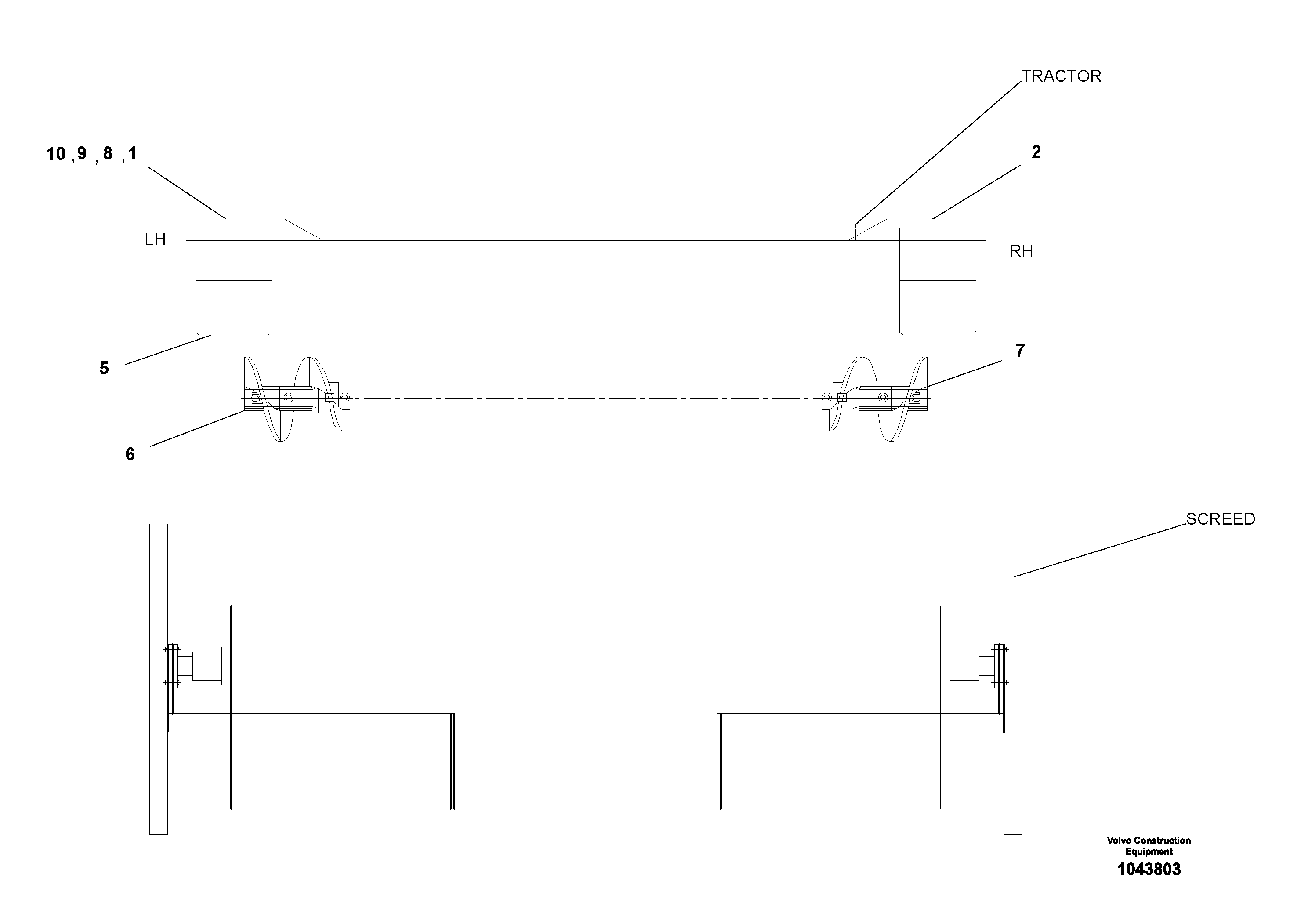
1

RM 56265259

Пластина

LH

1шт.

10

RM 14261028

Стопорная шайба (кольцо)

1шт.

10

RM 14261028

Стопорная шайба (кольцо)

1шт.

2

RM 56265267

Пластина

RH

1шт.

5

RM 56264542

Protecting grating

1шт.

6

RM 70828066

Auger

LH

1шт.

7

RM 70828074

Auger

RH

1шт.

8

RM 96753454

Винт шестигранник (торцевой ключ)

1шт.

9

RM 96719182

Hexagon nut

1шт.

9

RM 96719182

Hexagon nut

1шт.

Выбрано товаров: 10