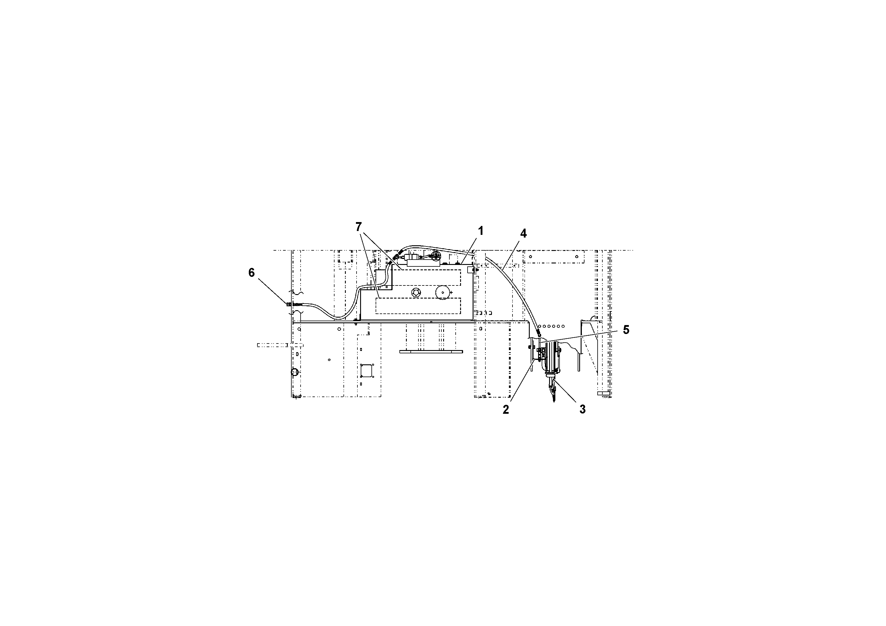
Запчасти Volvo PF2181 92279 Fuel Tank/Wash-down Arrangement PF2181 S/N 197473-

Схема запчастей Volvo PF2181 - 92279 Fuel Tank/Wash-down Arrangement PF2181 S/N 197473-
FIT
1:1
100%

Артикул

Название

Примечание

Количество

RM 20204418

Гайка

1шт.

RM 59918540

Адаптер

1шт.

RM 59918540

Адаптер

1шт.

RM 20932505

Шайба

1шт.

RM 59922427

Адаптер

1шт.

RM 59922427

Адаптер

1шт.

RM 95920708

Винт шестигранник

1шт.

RM 95920708

Винт шестигранник

1шт.

RM 20951133

Hexagon nut

1шт.

RM 15596505

Топливный бак (бензобак)

WASHDOWN

1шт.

RM 15512569

Фиттинг

NOT ILLUSTRATED

1шт.

RM 95920674

Винт шестигранник

1шт.

RM 95920674

Винт шестигранник

1шт.

RM 15512551

Фиттинг

NOT ILLUSTRATED

1шт.

RM 95958989

Винт шестигранник

1шт.

RM 95958989

Винт шестигранник

1шт.

RM 95922233

Шайба

1шт.

RM 95922233

Шайба

1шт.

RM 95264776

Зажим

NOT ILLUSTRATED

1шт.

2

RM 15596075

Кронштейн

1шт.

4

RM 20200788

Hose assembly

1шт.

4

RM 20200788

Hose assembly

1шт.

5

RM 13610688

Трубка

1шт.

6

RM 59961839

Адаптер

1шт.

6

RM 59961839

Адаптер

1шт.

7

RM 20960597

Rubber plate

1шт.

Выбрано товаров: 26