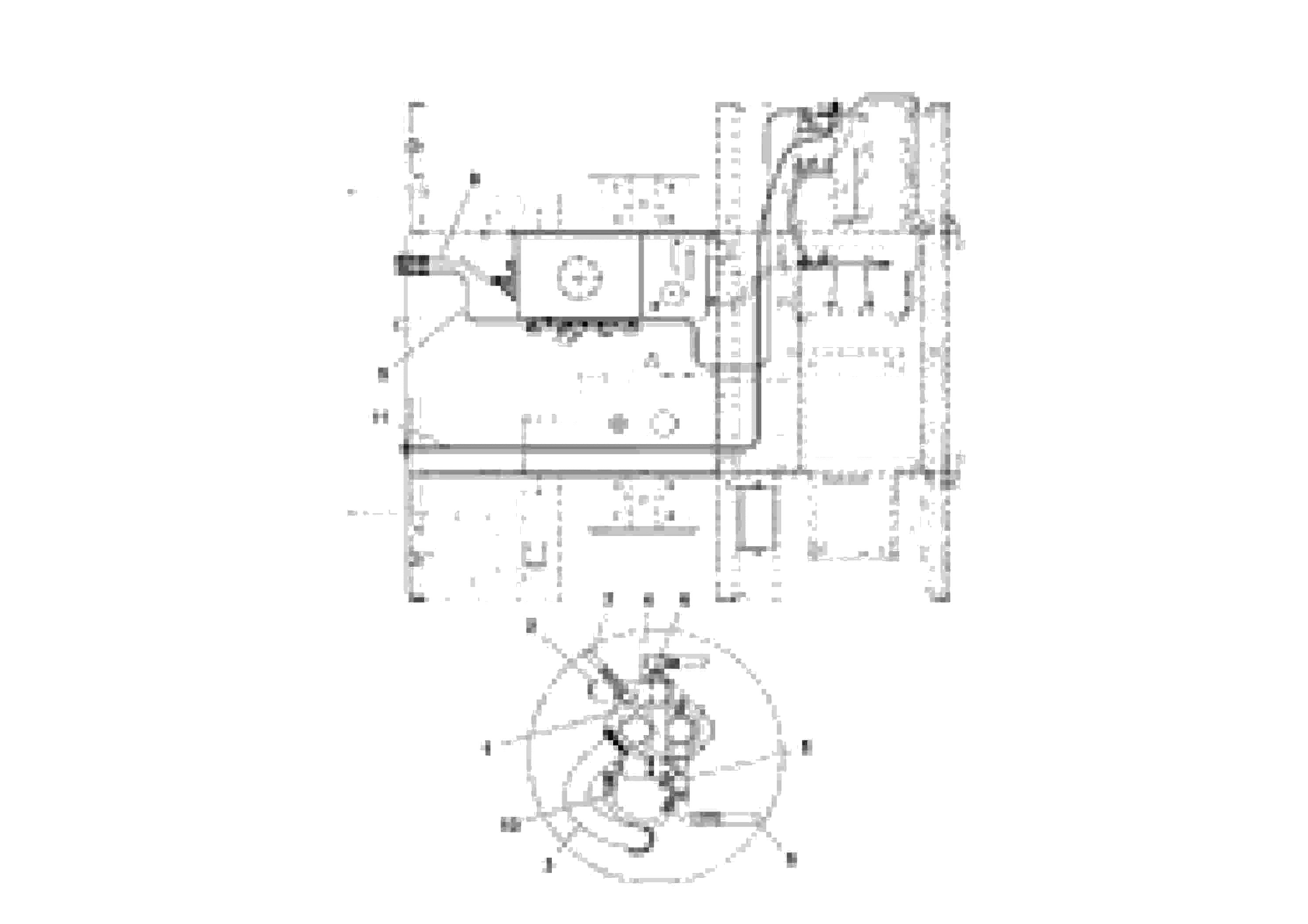
Запчасти Volvo PF2181 102991 Гидравлическая система PF2181 S/N 197473-

Схема запчастей Volvo PF2181 - 102991 Гидравлическая система PF2181 S/N 197473-
FIT
1:1
100%

Артикул

Название

Примечание

Количество

RM 20945572

Elbow

1шт.

RM 20197612

Coupling piece

1шт.

RM 95139986

Зажим

1шт.

RM 20945671

Coupling piece

1шт.

RM 95934659

Винт шестигранник

1шт.

RM 95934659

Винт шестигранник

1шт.

RM 20197646

Гайка

1шт.

RM 20318846

Шайба

1шт.

RM 21059902

Elbow

1шт.

RM 20242426

Фиттинг

1шт.

RM 95922183

Плоская шайба

1шт.

RM 95922183

Плоская шайба

1шт.

RM 95934816

Винт шестигранник

1шт.

RM 95934816

Винт шестигранник

1шт.

RM 20946000

Фиттинг

1шт.

RM 20946000

Фиттинг

1шт.

RM 20951018

Elbow

1шт.

RM 20951018

Elbow

1шт.

RM 20197604

Disconnector

1шт.

RM 95943262

Lock nut

1шт.

RM 95943262

Lock nut

1шт.

RM 20197638

Гайка

1шт.

RM 59923961

Reducer

1шт.

10

RM 20948469

Hose assembly

1шт.

12

RM 20927240

Service kit

NOT SHOWN

1шт.

2

RM 20928487

Соленоид (электромагнитная катушка)

1шт.

2

RM 20928487

Соленоид (электромагнитная катушка)

1шт.

3

RM 15509912

Suction hose

1шт.

4

RM 95939856

Пробка (заглушка)

1шт.

4

RM 95939856

Пробка (заглушка)

1шт.

5

RM 20242418

T-nipple

1шт.

6

RM 20289302

Шланг

1шт.

7

RM 20200424

Hose assembly

1шт.

8

RM 13636147

Шланг

1шт.

9

RM 20318812

Hose assembly

1шт.

Выбрано товаров: 35