Запчасти Volvo PF2181 79726 Flood Light Installation PF2181 S/N 200987-

Схема запчастей Volvo PF2181 - 79726 Flood Light Installation PF2181 S/N 200987-
FIT
1:1
100%

Артикул

Название

Примечание

Количество

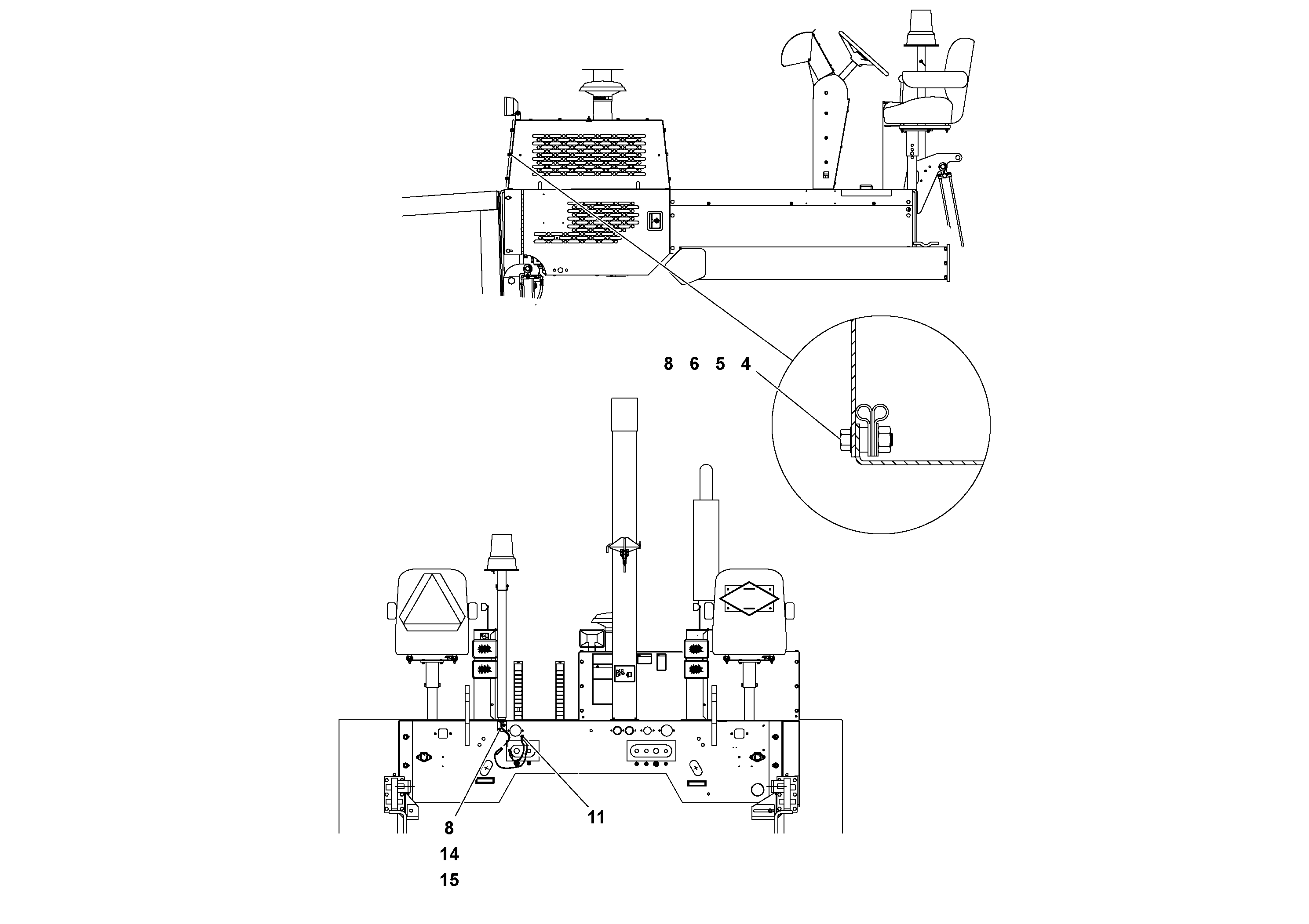
10

RM 20307914

Lamp

1шт.

11

RM 20182739

Hose protection

1шт.

14

RM 95958989

Винт шестигранник

1шт.

14

RM 95958989

Винт шестигранник

1шт.

15

RM 95931432

Стопорная шайба (кольцо)

1шт.

15

RM 95931432

Стопорная шайба (кольцо)

1шт.

17

RM 20933636

Lock nut

1шт.

8

RM 95922894

Hexagon nut

1шт.

8

RM 95922894

Hexagon nut

1шт.

Выбрано товаров: 9