Запчасти Volvo PF3172/PF3200 S/N 197507- 75532 Flood Light Installation

Схема запчастей Volvo PF3172/PF3200 S/N 197507- - 75532 Flood Light Installation
FIT
1:1
100%

Артикул

Название

Примечание

Количество

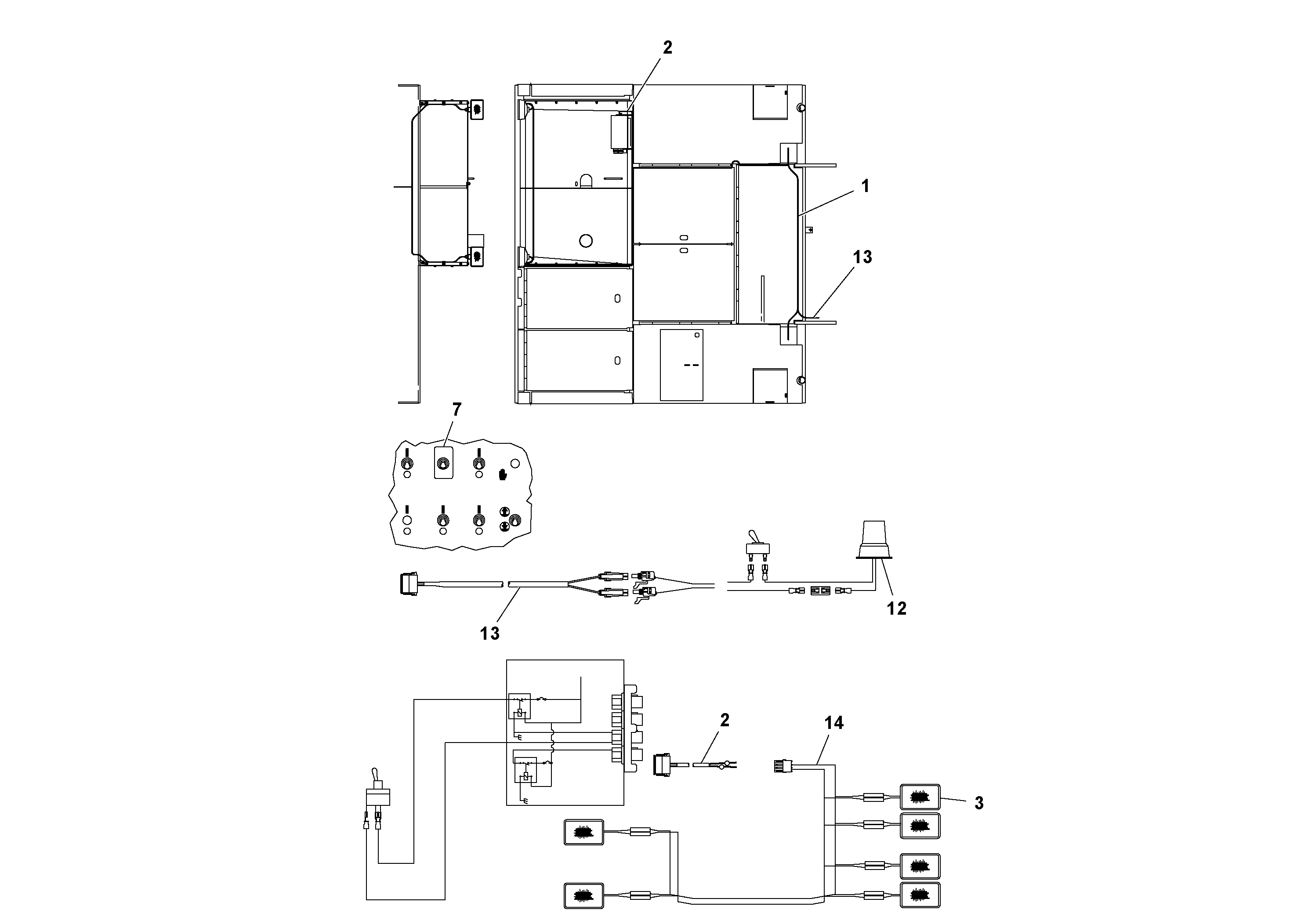
RM 20370938

Lamp

1шт.

RM 20933685

Cable tie

For Beacon Light

1шт.

RM 20933685

Cable tie

For Beacon Light

1шт.

1

RM 20353918

Cable harness

1шт.

11

RM 20182739

Hose protection

1шт.

12

RM 20933685

Cable tie

For Flood Lights

1шт.

12

RM 20933685

Cable tie

For Flood Lights

1шт.

13

RM 20373502

Beacon Harness

1шт.

14

RM 95958989

Винт шестигранник

1шт.

14

RM 95958989

Винт шестигранник

1шт.

3

RM 20353876

Headlamp

1шт.

7

RM 20359816

Decal

1шт.

Выбрано товаров: 12