Запчасти Volvo PF6170 89292 Basic paving width reduction 0.5 m on lateral limitation OMNI 1021 ATT. SCREEDS 3,0 - 9,0M PF6110 PF6160/PF6170

Схема запчастей Volvo PF6170 - 89292 Basic paving width reduction 0.5 m on lateral limitation OMNI 1021 ATT. SCREEDS 3,0 - 9,0M PF6110 PF6160/PF6170
FIT
1:1
100%

Артикул

Название

Примечание

Количество

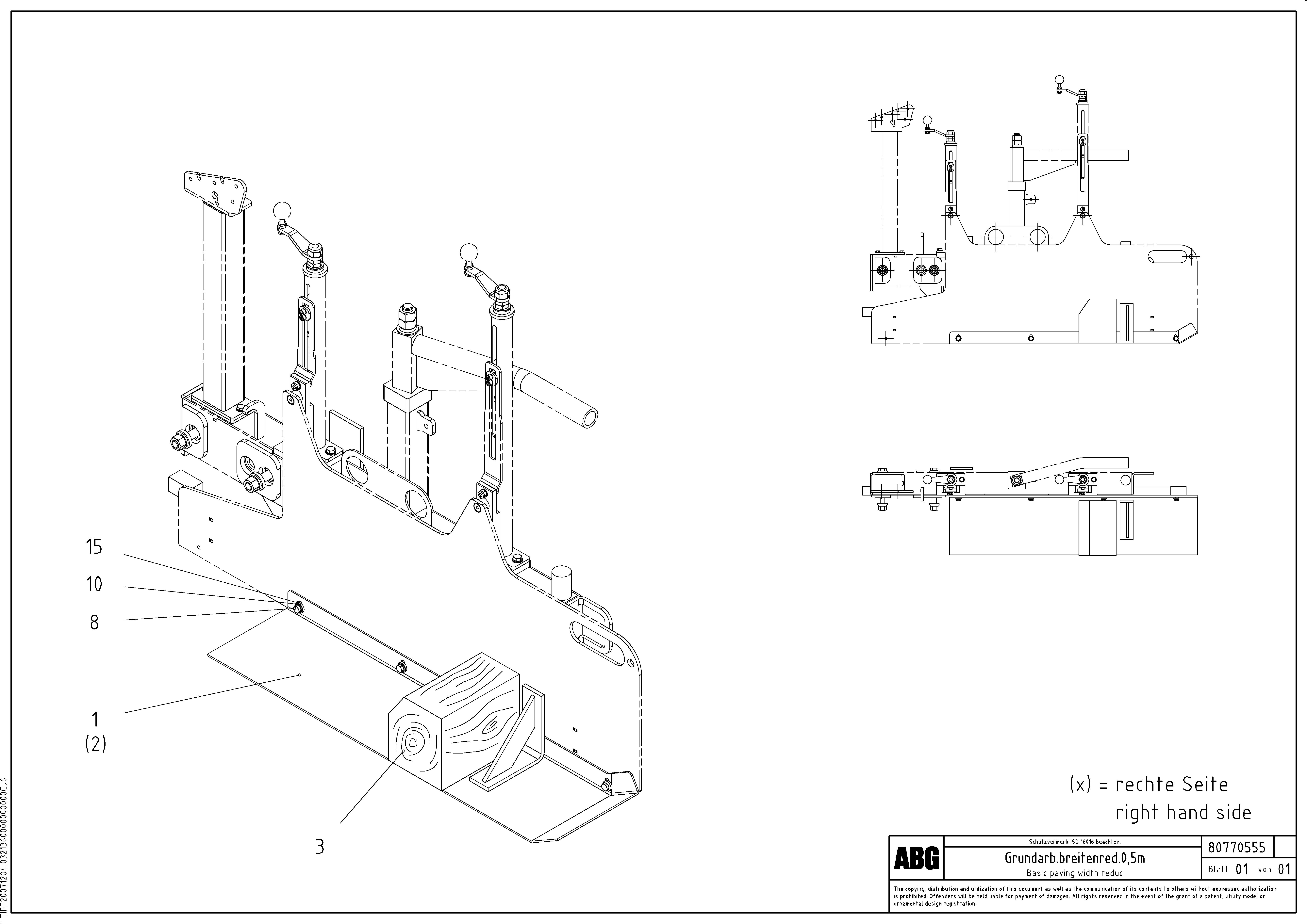
1

RM 13965744

Пластина

LH

1шт.

10

RM 13907761

Стопорная шайба (кольцо)

1шт.

10

RM 13907761

Стопорная шайба (кольцо)

1шт.

15

RM 96712849

Шайба

1шт.

15

RM 96712849

Шайба

1шт.

2

RM 13965751

Пластина

RH

1шт.

3

RM 80770563

Корпус клапана

1шт.

8

RM 96720701

Винт шестигранник

1шт.

8

RM 96720701

Винт шестигранник

1шт.

Выбрано товаров: 9