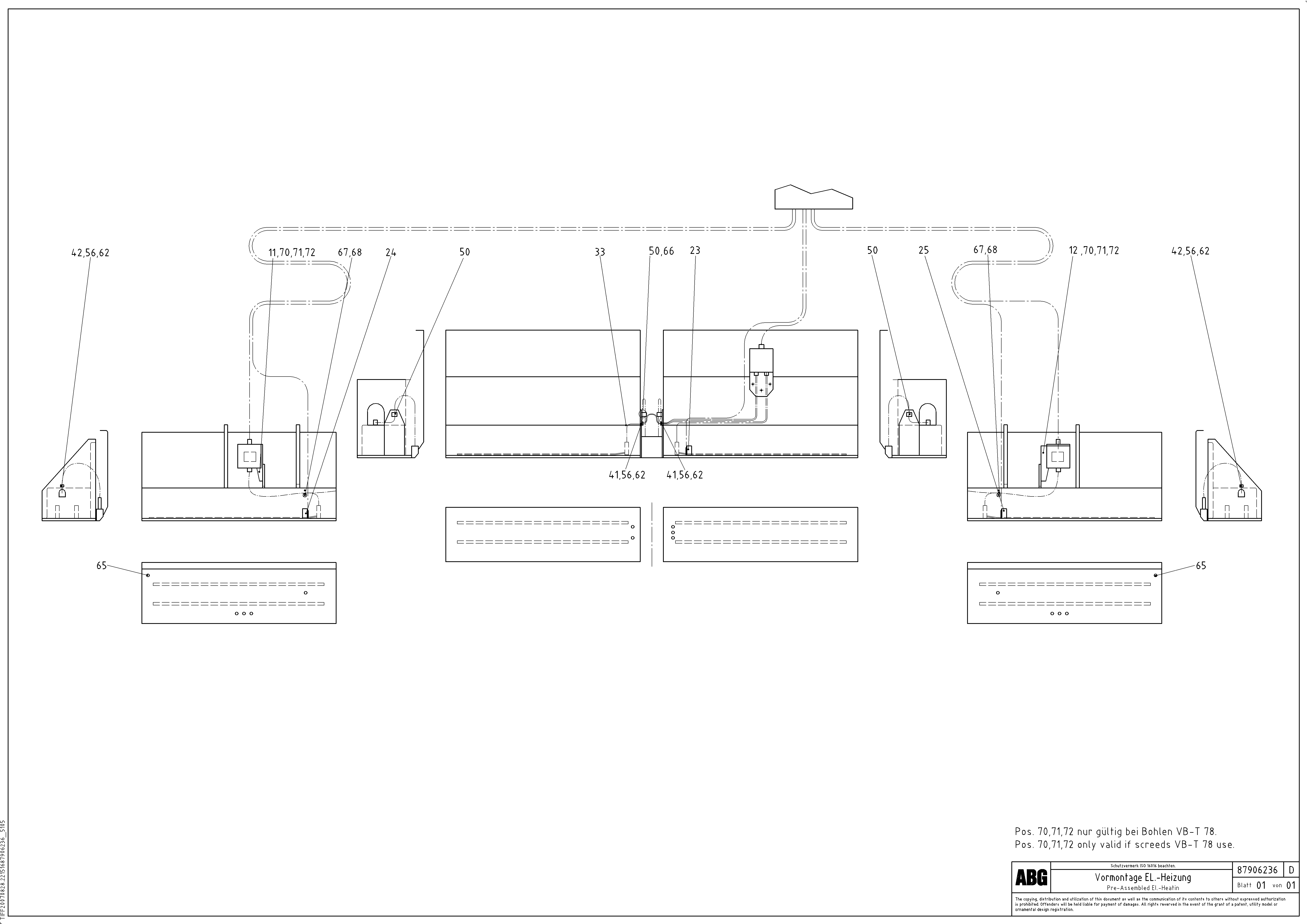
Запчасти Volvo VB-T 78 ETC 68981 Pre-assembled El.-heating for basic and extandable screed VB-T 78 ETC ATT. SCREEDS 2,5 - 7,5M ABG5820

Схема запчастей Volvo VB-T 78 ETC - 68981 Pre-assembled El.-heating for basic and extandable screed VB-T 78 ETC ATT. SCREEDS 2,5 - 7,5M ABG5820
FIT
1:1
100%

Артикул

Название

Примечание

Количество

11

RM 54396874

Тарелка клапана

LH

1шт.

12

RM 54396882

Тарелка клапана

RH

1шт.

23

RM 54434998

Electronic unit

RH

1шт.

24

RM 54435003

Screed

LH

1шт.

25

RM 54435011

Indicator

1шт.

33

RM 54443197

Соединитель

1шт.

33

RM 54443197

Соединитель

1шт.

41

RM 80627607

Зажим

S/N 15885 -

1шт.

41

RM 13938147

Зажим

S/N 51 - 14861

1шт.

41

RM 13938147

Зажим

S/N 51 - 14861

1шт.

41

RM 80627607

Зажим

S/N 14862 - 15884

1шт.

42

RM 13938337

Зажим

S/N 51 - 14861

1шт.

42

RM 13938337

Зажим

S/N 51 - 14861

1шт.

42

RM 14144158

Hose clamp

S/N 14862 -

1шт.

42

RM 14144158

Hose clamp

S/N 14862 -

1шт.

50

RM 13909320

Зажим

S/N 14862 -

1шт.

50

RM 13909320

Зажим

S/N 14862 -

1шт.

50

RM 13909874

Зажим

S/N 51 - 14861

1шт.

50

RM 13909874

Зажим

S/N 51 - 14861

1шт.

56

RM 58832916

Стопорная шайба (кольцо)

S/N 51 - 15884

1шт.

56

RM 58832916

Стопорная шайба (кольцо)

S/N 51 - 15884

1шт.

56

RM 58832916

Стопорная шайба (кольцо)

S/N 15885 -

1шт.

56

RM 58832916

Стопорная шайба (кольцо)

S/N 15885 -

1шт.

62

RM 96714233

Винт шестигранник

1шт.

62

RM 96714233

Винт шестигранник

1шт.

63

RM 96714258

Винт шестигранник

S/N 51 - 15884

1шт.

63

RM 96714258

Винт шестигранник

S/N 51 - 15884

1шт.

64

RM 14141097

Hexagon nut

S/N 51 - 15884

1шт.

64

RM 14141097

Hexagon nut

S/N 51 - 15884

1шт.

65

RM 54714688

Пробка (заглушка)

S/N 12105 -

1шт.

66

RM 96714274

Винт шестигранник

1шт.

66

RM 96714274

Винт шестигранник

1шт.

67

RM 80637945

Трубка

S/N 15885 -

1шт.

68

RM 80680366

Tape

S/N 15885 -

1шт.

70

RM 96722236

Винт шестигранник

S/N 17000 -

1шт.

70

RM 96722236

Винт шестигранник

S/N 17000 -

1шт.

71

RM 14261028

Стопорная шайба (кольцо)

S/N 17000 -

1шт.

71

RM 14261028

Стопорная шайба (кольцо)

S/N 17000 -

1шт.

72

RM 14200992

Hexagon nut

S/N 17000 -

1шт.

72

RM 14200992

Hexagon nut

S/N 17000 -

1шт.

Выбрано товаров: 0