Запчасти Volvo VDT-V 88 GTC 74785 Distribution box on screed for EPM (Electronic Paver Management) VDT-V 88 GTC ATT. SCREEDS 3,0 - 9,0M ABG9820

Схема запчастей Volvo VDT-V 88 GTC - 74785 Distribution box on screed for EPM (Electronic Paver Management) VDT-V 88 GTC ATT. SCREEDS 3,0 - 9,0M ABG9820
FIT
1:1
100%

Артикул

Название

Примечание

Количество

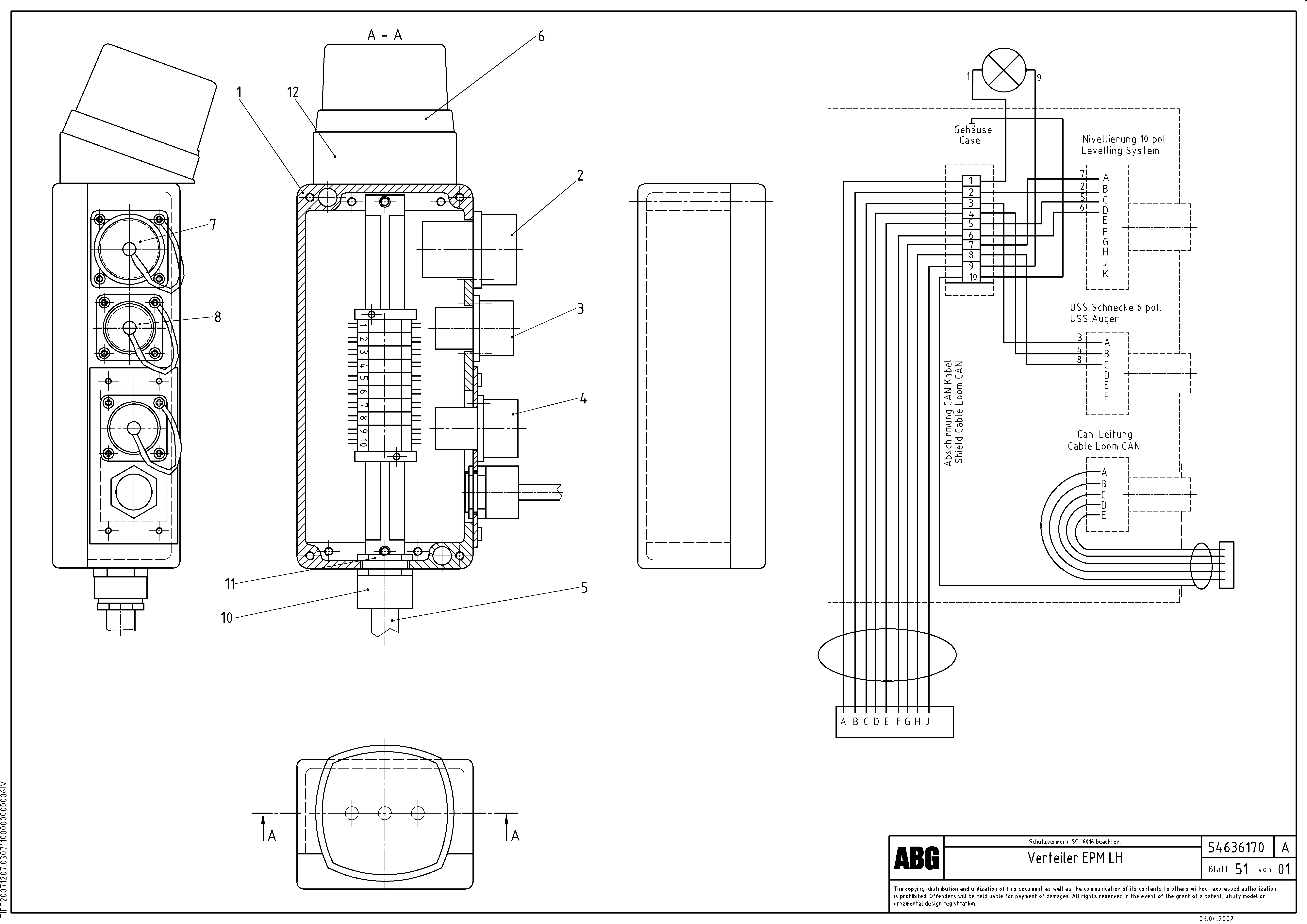
1

RM 54430509

Distribution Box

1шт.

1

RM 54430574

Distribution Box

1шт.

10

RM 13912944

Cable grommet

1шт.

11

RM 14106900

Гайка

1шт.

11

RM 14106900

Гайка

1шт.

12

RM 87982427

Опора

S/N 13449 -

1шт.

2

RM 54426689

Socket

1шт.

3

RM 54426663

Socket

1шт.

3

RM 54426663

Socket

1шт.

4

RM 54636139

Cable harness

1шт.

4

RM 54636147

Cable harness

1шт.

5

RM 54636113

Cable harness

1шт.

5

RM 54636121

Cable harness

1шт.

6

RM 13967880

Flasher

1шт.

7

RM 58832577

Protecting cap

1шт.

7

RM 58832577

Protecting cap

1шт.

8

RM 58854373

Protecting cap

CA02COM-E-14S

1шт.

8

RM 58854373

Protecting cap

CA02COM-E-14S

1шт.

Выбрано товаров: 18