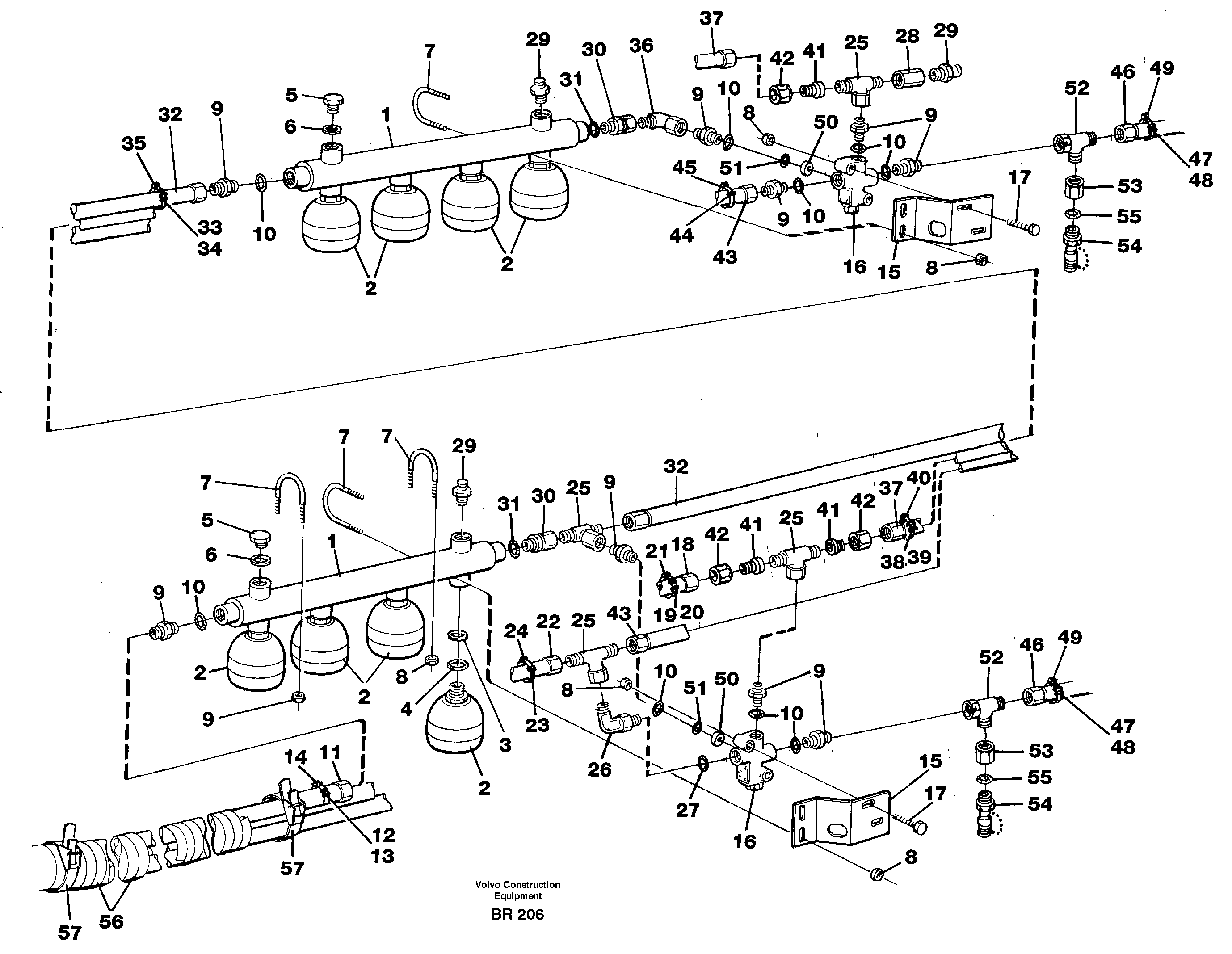
Запчасти Volvo A40 97739 Hydraulic brake system, load unit A40 SER NO 1201-, SER NO USA 60101-

Схема запчастей Volvo A40 - 97739 Hydraulic brake system, load unit A40 SER NO 1201-, SER NO USA 60101-
FIT
1:1
100%

Артикул

Название

Примечание

Количество

VOE 931209

Кольцо уплотнительное (О-кольцо)

1шт.

VOE 931209

Кольцо уплотнительное (О-кольцо)

1шт.

VOE 11034256

Protecting cap

1шт.

VOE 11034256

Protecting cap

1шт.

VOE 931216

Back-up ring

1шт.

VOE 931216

Back-up ring

1шт.

1

VOE 11061913

Трубка

1шт.

10

VOE 11993537

Кольцо уплотнительное (О-кольцо)

1шт.

10

VOE 11993537

Кольцо уплотнительное (О-кольцо)

1шт.

11

VOE 13932565

Hose assembly

1шт.

12

VOE 4881457

Marking sleeve

Green

1шт.

12

VOE 4881457

Marking sleeve

Green

1шт.

13

VOE 4881455

Marking sleeve

Red

1шт.

13

VOE 4881455

Marking sleeve

Red

1шт.

14

VOE 4821292

Cable tie

1шт.

14

VOE 4821292

Cable tie

1шт.

15

VOE 11061706

Кронштейн

1шт.

17

VOE 955299

Винт шестигранник

1шт.

17

VOE 955299

Винт шестигранник

1шт.

18

VOE 11062288

Шланг

1шт.

19

VOE 4881457

Marking sleeve

Green

1шт.

19

VOE 4881457

Marking sleeve

Green

1шт.

2

VOE 4872235

Гидроаккумулятор

1шт.

20

VOE 4881452

Marking sleeve

White

1шт.

20

VOE 4881452

Marking sleeve

White

1шт.

21

VOE 4821292

Cable tie

1шт.

21

VOE 4821292

Cable tie

1шт.

22

VOE 13933559

Hose assembly

1шт.

23

VOE 4881459

Marking sleeve

Blue

1шт.

23

VOE 4881459

Marking sleeve

Blue

1шт.

24

VOE 4821292

Cable tie

1шт.

24

VOE 4821292

Cable tie

1шт.

25

VOE 4881256

Clutch

1шт.

26

VOE 4881171

Nipple

1шт.

26

VOE 4881171

Nipple

1шт.

27

VOE 11993537

Кольцо уплотнительное (О-кольцо)

1шт.

27

VOE 11993537

Кольцо уплотнительное (О-кольцо)

1шт.

28

VOE 11061912

Nipple

1шт.

29

VOE 4871469

Air vent valve

1шт.

29

VOE 4871469

Air vent valve

1шт.

3

VOE 13964110

Прокладка

1шт.

3

VOE 13964110

Прокладка

1шт.

30

VOE 11061799

Nipple

1шт.

31

VOE 967750

Кольцо уплотнительное (О-кольцо)

1шт.

31

VOE 967750

Кольцо уплотнительное (О-кольцо)

1шт.

32

VOE 13932840

Hose assembly

1шт.

33

VOE 4881457

Marking sleeve

Green

1шт.

33

VOE 4881457

Marking sleeve

Green

1шт.

34

VOE 4881455

Marking sleeve

Red

1шт.

34

VOE 4881455

Marking sleeve

Red

1шт.

35

VOE 4821292

Cable tie

1шт.

35

VOE 4821292

Cable tie

1шт.

36

VOE 4897257

Elbow nipple

1шт.

36

VOE 4897257

Elbow nipple

1шт.

37

VOE 11063352

Шланг

1шт.

38

VOE 4881457

Marking sleeve

Green

1шт.

38

VOE 4881457

Marking sleeve

Green

1шт.

39

VOE 4881452

Marking sleeve

White

1шт.

39

VOE 4881452

Marking sleeve

White

1шт.

4

VOE 955994

Кольцо уплотнительное (О-кольцо)

1шт.

4

VOE 955994

Кольцо уплотнительное (О-кольцо)

1шт.

40

VOE 4821292

Cable tie

1шт.

40

VOE 4821292

Cable tie

1шт.

41

VOE 4881315

Reduction

1шт.

42

VOE 4785905

Гайка

1шт.

42

VOE 4785905

Гайка

1шт.

43

VOE 928189

Hose assembly

1шт.

44

VOE 4881459

Marking sleeve

Blue

1шт.

44

VOE 4881459

Marking sleeve

Blue

1шт.

45

VOE 4821292

Cable tie

1шт.

45

VOE 4821292

Cable tie

1шт.

46

VOE 928185

Hose assembly

1шт.

47

VOE 4881457

Marking sleeve

Green

1шт.

47

VOE 4881457

Marking sleeve

Green

1шт.

48

VOE 4881452

Marking sleeve

White

1шт.

48

VOE 4881452

Marking sleeve

White

1шт.

49

VOE 4821292

Cable tie

1шт.

49

VOE 4821292

Cable tie

1шт.

5

VOE 960631

Пробка (заглушка)

1шт.

50

VOE 11062276

Restricting washer

1шт.

51

VOE 13955985

Кольцо уплотнительное (О-кольцо)

1шт.

51

VOE 13955985

Кольцо уплотнительное (О-кольцо)

1шт.

52

VOE 4821862

Tee

1шт.

53

VOE 4881314

Test nipple

1шт.

53

VOE 4881314

Test nipple

1шт.

54

VOE 930032

Testing nipple

1шт.

54

VOE 930032

Testing nipple

1шт.

55

VOE 13945653

Plane gasket

1шт.

55

VOE 13945653

Plane gasket

1шт.

56

VOE 4941461

Cable Spiral

REQ L=300

1шт.

57

VOE 11104606

Retaining strap

1шт.

57

VOE 11104606

Retaining strap

1шт.

6

VOE 948883

Plane gasket

1шт.

6

VOE 948883

Plane gasket

1шт.

7

VOE 11050965

Brace

1шт.

7

VOE 11050965

Brace

1шт.

8

VOE 13945408

Гайка

1шт.

8

VOE 13945408

Гайка

1шт.

9

VOE 4881644

Nipple

1шт.

9

VOE 4881644

Nipple

1шт.

Выбрано товаров: 100