Запчасти Volvo EC230 ?KERMAN ?KERMAN EC230 SER NO - 4368 42298 Overspeed guard

Схема запчастей Volvo EC230 ?KERMAN ?KERMAN EC230 SER NO - 4368 - 42298 Overspeed guard
FIT
1:1
100%

Артикул

Название

Примечание

Количество

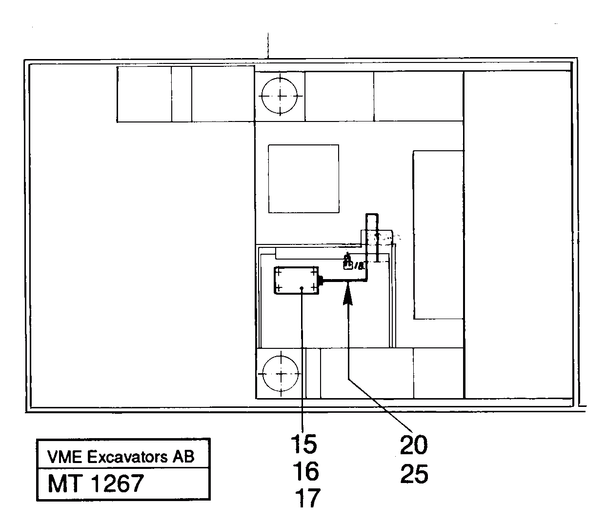
15

VOE 14246161

Overspeed protection

1шт.

16

VOE 14014814

Болт

1шт.

16

VOE 14014814

Болт

1шт.

17

VOE 955779

Hexagon nut

1шт.

17

VOE 955779

Hexagon nut

1шт.

20

VOE 14245946

14245946

1шт.

25

VOE 14016673

Strip clamp

1шт.

25

VOE 14016673

Strip clamp

1шт.

Выбрано товаров: 8