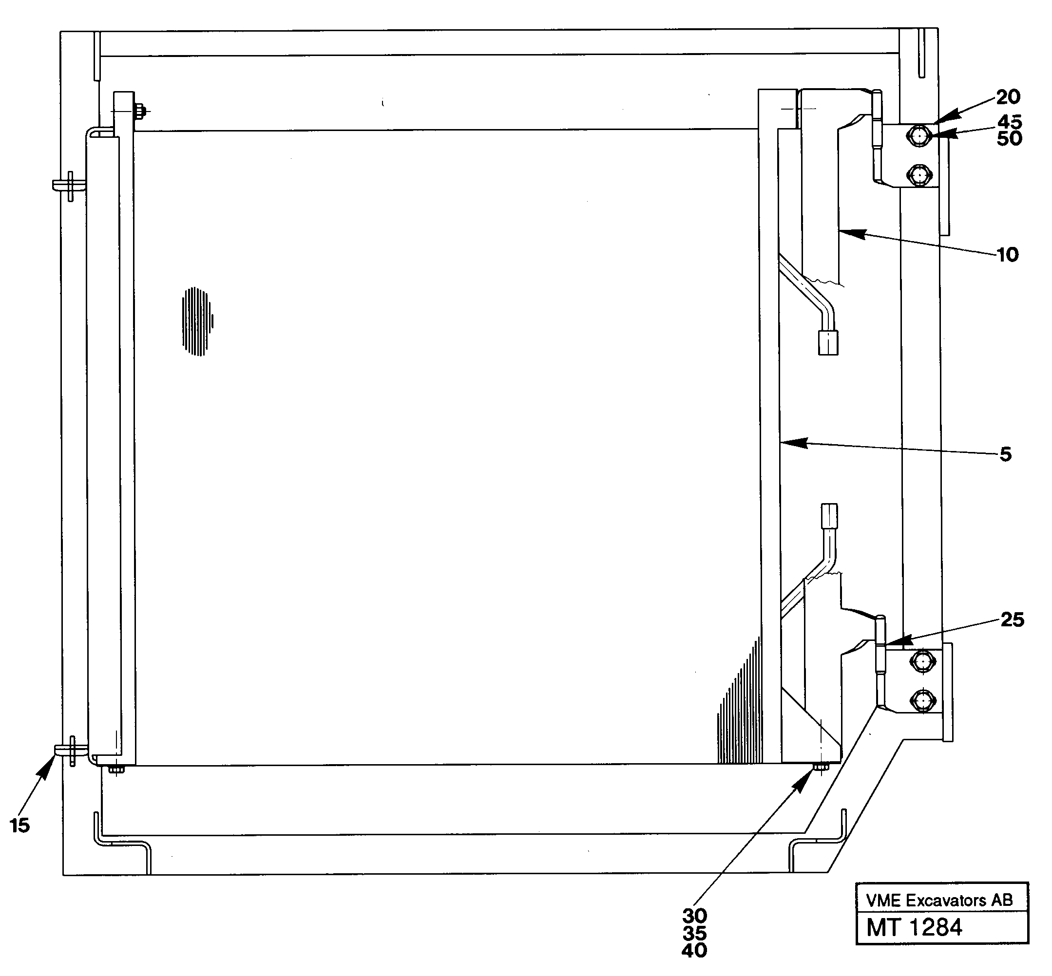
Запчасти Volvo EC230 ?KERMAN ?KERMAN EC230 SER NO - 4368 44223 Condenser installation

Схема запчастей Volvo EC230 ?KERMAN ?KERMAN EC230 SER NO - 4368 - 44223 Condenser installation
FIT
1:1
100%

Артикул

Название

Примечание

Количество

10

VOE 14255344

End plate

RH

1шт.

10

VOE 14255344

End plate

RH

1шт.

15

VOE 14255299

End plate

LH

1шт.

15

VOE 14255299

End plate

LH

1шт.

20

VOE 14255343

Attachment

1шт.

25

VOE 14214748

Шайба

1шт.

25

VOE 14214748

Шайба

1шт.

30

VOE 13955294

Болт

1шт.

30

VOE 13955294

Болт

1шт.

35

VOE 955782

Hexagon nut

1шт.

35

VOE 955782

Hexagon nut

1шт.

40

VOE 13955894

Шайба

1шт.

40

VOE 13955894

Шайба

1шт.

45

VOE 970945

Винт шестигранник

1шт.

45

VOE 970945

Винт шестигранник

1шт.

5

VOE 14346573

Condenser

1шт.

5

VOE 14346573

Condenser

1шт.

50

VOE 14015134

Шайба

1шт.

50

VOE 14015134

Шайба

1шт.

Выбрано товаров: 19