Запчасти Volvo EC230 ?KERMAN ?KERMAN EC230 SER NO - 4368 36771 Engine heater, Lpg 2440

Схема запчастей Volvo EC230 ?KERMAN ?KERMAN EC230 SER NO - 4368 - 36771 Engine heater, Lpg 2440
FIT
1:1
100%

Артикул

Название

Примечание

Количество

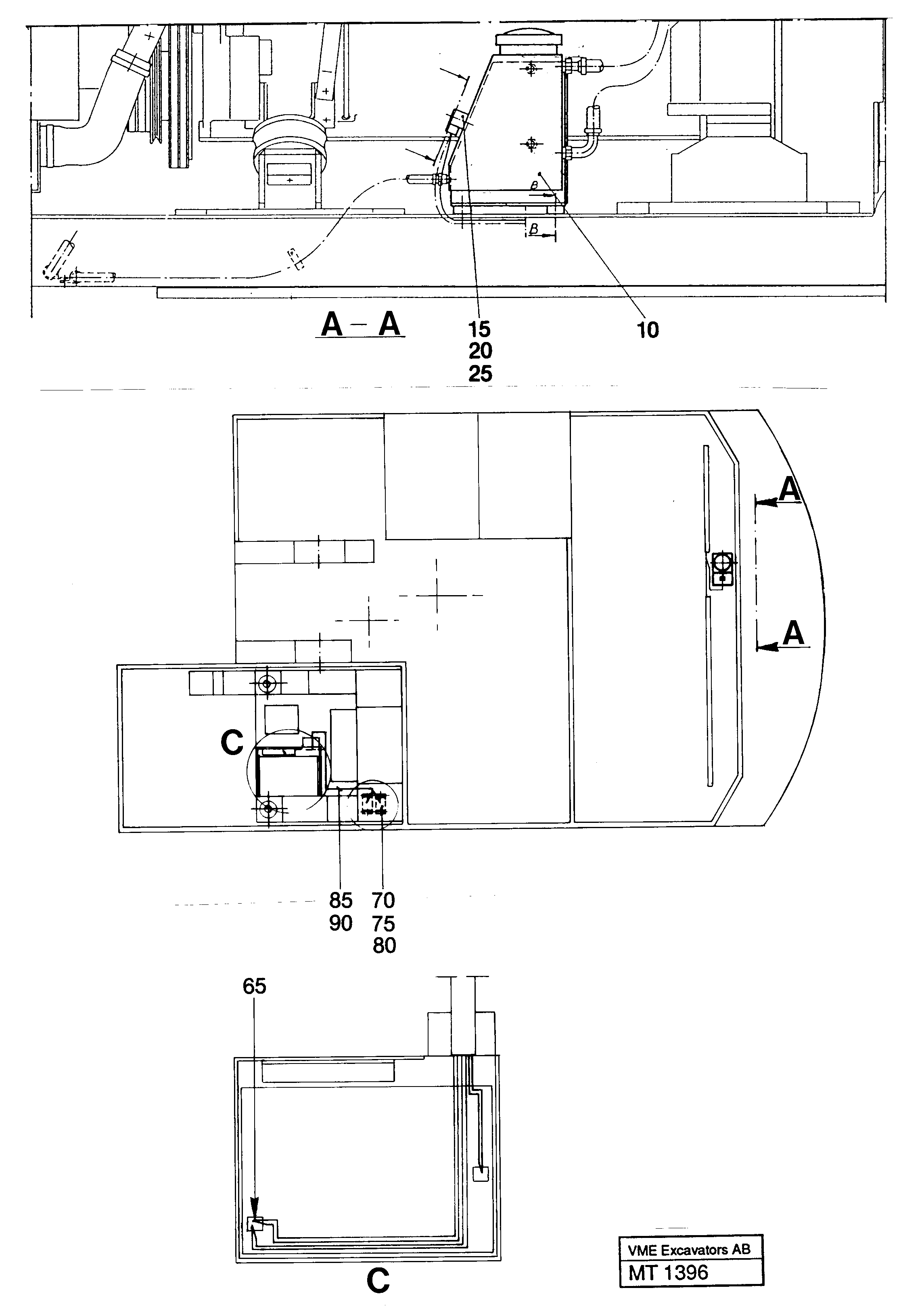
VOE 14023198

Fuse

1шт.

VOE 14023079

Glow plug

1шт.

VOE 14214607

Electrode

1шт.

VOE 14214608

Встроенный клапан в сборе

1шт.

VOE 14214609

Nozzle

1шт.

VOE 14023195

Термостат

1шт.

10

VOE 14214161

Engine heater

1шт.

15

VOE 14213999

Сальник

1шт.

20

VOE 14214197

Cable Contact

1шт.

25

VOE 14214000

Болт

1шт.

25

VOE 14214000

Болт

1шт.

65

VOE 949583

Housing

1шт.

65

VOE 949583

Картер (корпус)

1шт.

70

VOE 14214098

Voltage Divider

1шт.

75

VOE 14015093

Шайба

1шт.

75

VOE 14015093

Шайба

1шт.

80

VOE 956060

Cross recessed screw

1шт.

80

VOE 956060

Cross recessed screw

1шт.

85

VOE 14254259

14254259

1шт.

90

VOE 14016673

Strip clamp

1шт.

90

VOE 14016673

Strip clamp

1шт.

Выбрано товаров: 21