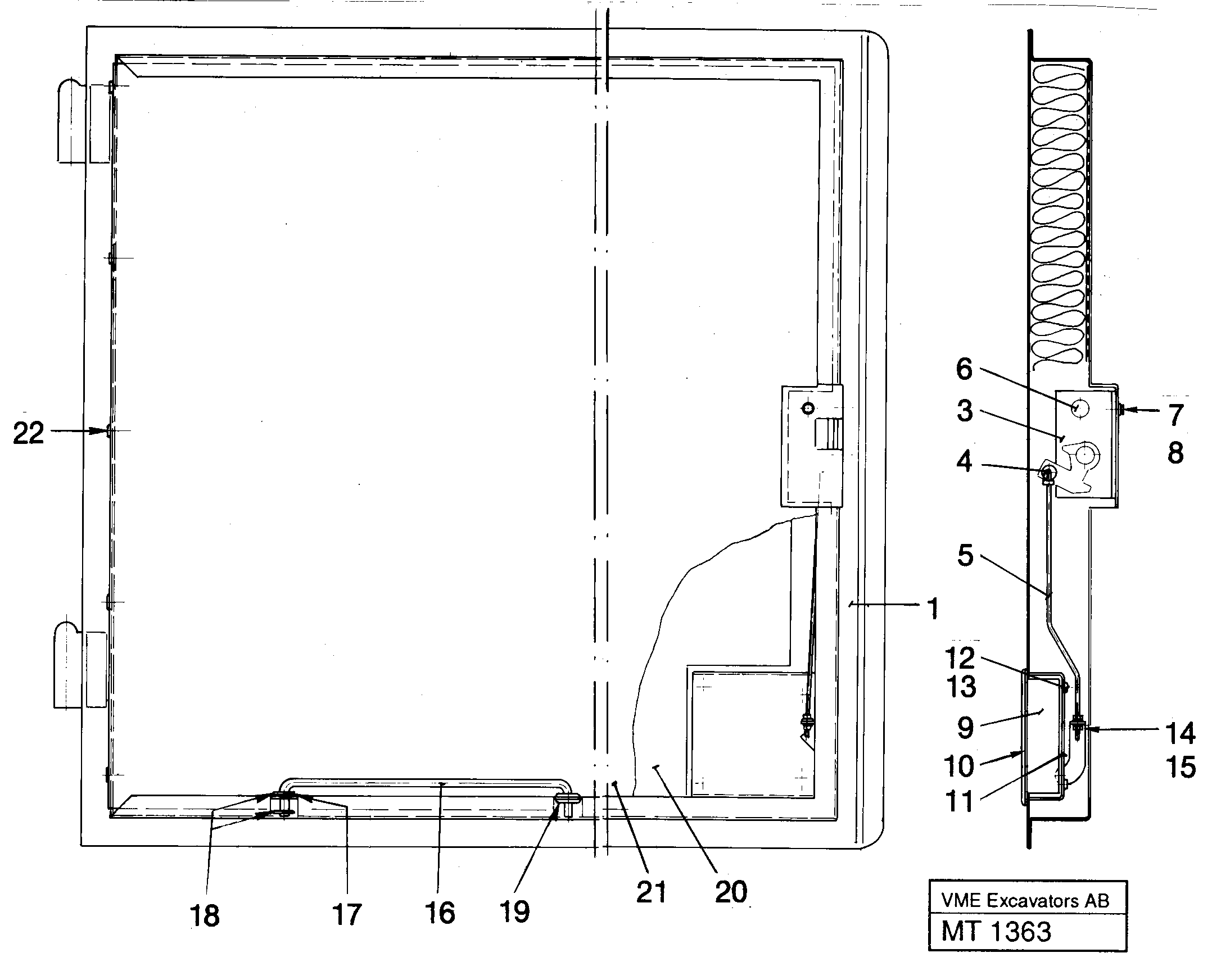
Запчасти Volvo EC230 ?KERMAN ?KERMAN EC230 SER NO - 4368 33486 Door, rear Rh

Схема запчастей Volvo EC230 ?KERMAN ?KERMAN EC230 SER NO - 4368 - 33486 Door, rear Rh
FIT
1:1
100%

Артикул

Название

Примечание

Количество

1

VOE 14249611

Door

1шт.

10

VOE 14212994

Прокладка

1шт.

11

VOE 14346379

14346379

1шт.

12

VOE 956092

Cross recessed screw

1шт.

12

VOE 956092

Cross recessed screw

1шт.

13

VOE 955893

Шайба

1шт.

13

VOE 955893

Шайба

1шт.

14

VOE 955779

Hexagon nut

1шт.

14

VOE 955779

Hexagon nut

1шт.

15

VOE 14015093

Шайба

1шт.

15

VOE 14015093

Шайба

1шт.

16

VOE 14047548

Опора

1шт.

16

VOE 14047548

Опора

1шт.

17

VOE 13955894

Шайба

1шт.

17

VOE 13955894

Шайба

1шт.

18

VOE 14213904

Шайба

1шт.

18

VOE 14213904

Шайба

1шт.

19

VOE 14213386

Уплотнительная втулка

1шт.

19

VOE 14213386

Уплотнительная втулка

1шт.

20

VOE 6627669

Insulating mat

1шт.

20

VOE 6627669

Insulating mat

1шт.

21

VOE 14278579

Article

1шт.

22

VOE 14211258

Болт

1шт.

22

VOE 14211258

Болт

1шт.

3

VOE 14214141

Lock

1шт.

4

VOE 14213203

Скоба (хомут)

1шт.

5

VOE 14212997

Bar

1шт.

6

VOE 14023442

Болт

1шт.

6

VOE 14023442

Болт

1шт.

7

VOE 955269

Винт шестигранник

1шт.

7

VOE 955269

Винт шестигранник

1шт.

8

VOE 955893

Шайба

1шт.

8

VOE 955893

Шайба

1шт.

9

VOE 14212993

14212993

1шт.

Выбрано товаров: 34