Запчасти Volvo EC280 89468 Cable harnesses, Hydraulic system EC280 SER NO 1001-

Схема запчастей Volvo EC280 - 89468 Cable harnesses, Hydraulic system EC280 SER NO 1001-
FIT
1:1
100%

Артикул

Название

Примечание

Количество

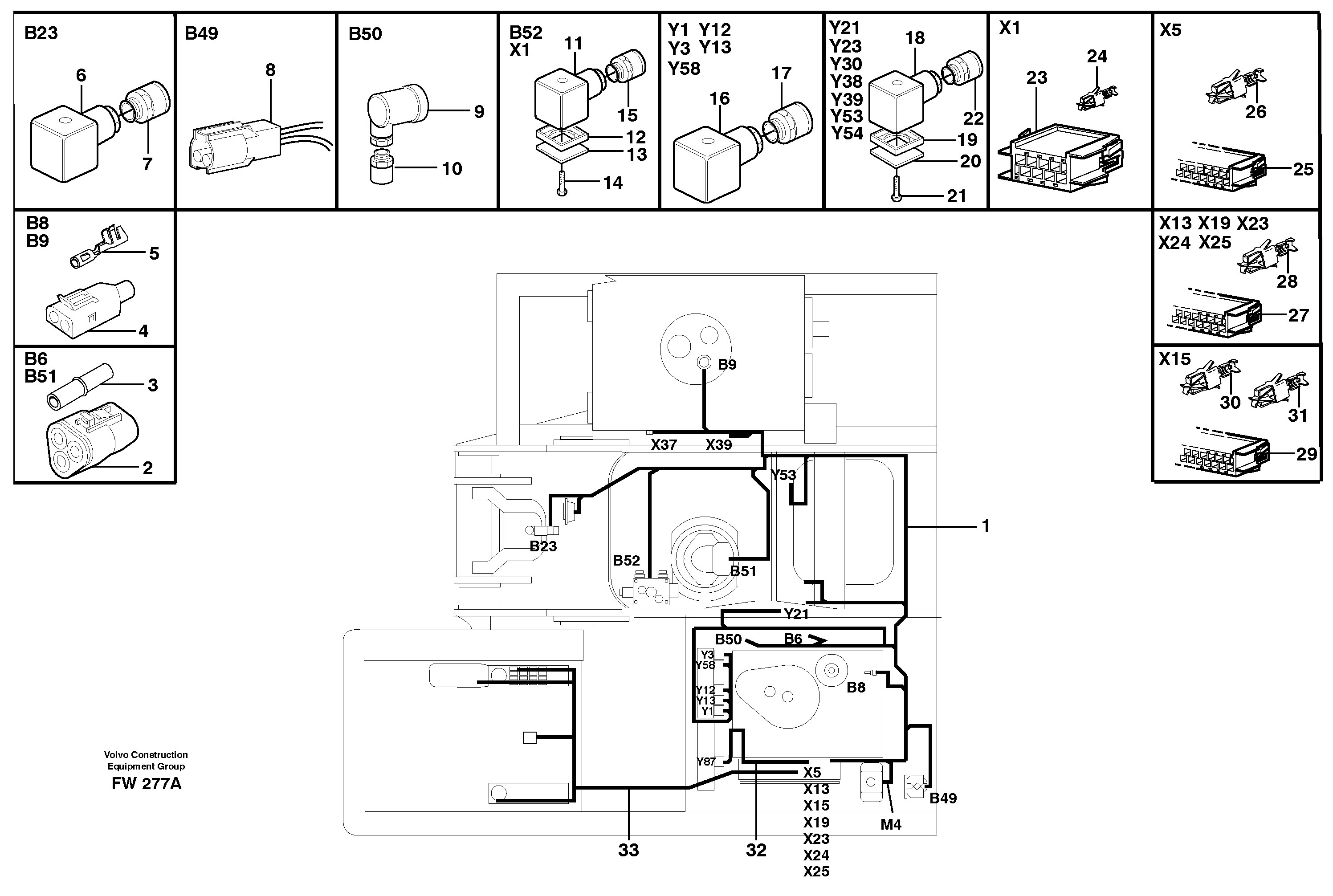
1

VOE 14345340

14345340

1шт.

10

VOE 14340974

14340974

1шт.

11

VOE 14340985

Соединитель

B52, PRESSURE LIMIT

1шт.

12

VOE 14213999

Сальник

1шт.

13

VOE 14341221

Крышка

1шт.

14

VOE 14214000

Болт

1шт.

14

VOE 14214000

Болт

1шт.

15

VOE 14340974

14340974

1шт.

16

VOE 14341218

Соединитель

Y1, CONTROL CATCH

1шт.

17

VOE 14340974

14340974

1шт.

18

VOE 14341218

Соединитель

Y21, QUICK ATTACHMENT

1шт.

19

VOE 14213999

Сальник

1шт.

2

VOE 14345278

Socket housing

B6, FLOAT SWITCH, .OIL

1шт.

20

VOE 14341221

Крышка

1шт.

21

VOE 14214000

Болт

1шт.

21

VOE 14214000

Болт

1шт.

22

VOE 14340974

14340974

1шт.

23

VOE 1096618

Receptacle housing

1шт.

23

VOE 1096618

Receptacle housing

1шт.

24

VOE 970776

Terminal

1шт.

25

VOE 1096619

Картер (корпус)

1шт.

25

VOE 1096619

Изолятор

1шт.

26

VOE 970777

Terminal

1шт.

27

VOE 1096619

Картер (корпус)

1шт.

27

VOE 1096619

Изолятор

1шт.

28

VOE 970776

Terminal

1шт.

29

VOE 1096619

Картер (корпус)

1шт.

29

VOE 1096619

Изолятор

1шт.

3

VOE 14340956

Cable terminal

1шт.

30

VOE 970776

Terminal

1шт.

31

VOE 970777

Terminal

1шт.

32

VOE 14346894

14346894

1шт.

33

VOE 14346893

14346893

1шт.

4

VOE 1624477

Receptacle housing

B8, TEMP. HYDR.OIL

1шт.

4

VOE 1624477

Receptacle housing

B8, TEMP. HYDR.OIL

1шт.

5

VOE 965822

Cable terminal

1шт.

5

VOE 965822

Cable terminal

1шт.

6

VOE 14340985

Соединитель

1шт.

7

VOE 14340974

14340974

1шт.

8

VOE 14341217

Skt Connector

1шт.

9

VOE 14341445

Соединитель

1шт.

Выбрано товаров: 41