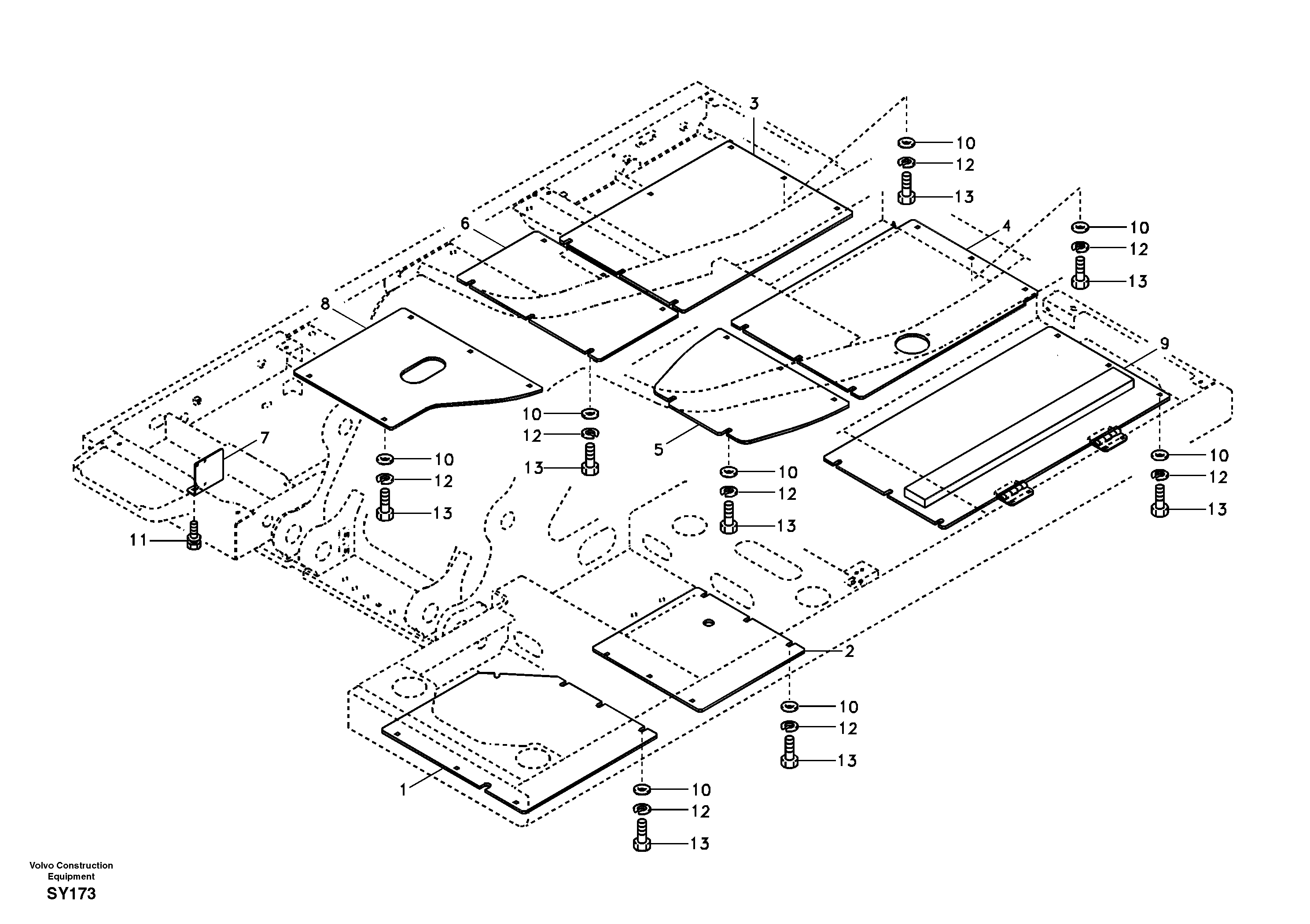
Запчасти Volvo EC290B 25956 Hatches under engine, hydr.pumps, cooler, m.valve and fuel tank EC290B SER NO INT 13562- EU & NA 80001-

Схема запчастей Volvo EC290B - 25956 Hatches under engine, hydr.pumps, cooler, m.valve and fuel tank EC290B SER NO INT 13562- EU & NA 80001-
FIT
1:1
100%

Артикул

Название

Примечание

Количество

VOE 14502144

Крышка

1шт.

VOE 14527189

Крышка

SER NO 12276-

1шт.

VOE 14502145

Крышка

1шт.

VOE 14502148

Крышка

1шт.

VOE 14515640

Крышка

1шт.

VOE 14502149

Крышка

1шт.

VOE 14514237

Крышка

1шт.

1

VOE 14514246

Крышка

1шт.

10

VOE 14532477

Шайба

1шт.

10

VOE 14532477

Шайба

1шт.

11

VOE 946471

Flange screw

1шт.

11

VOE 946471

Flange screw

1шт.

12

VOE 955923

Шайба пружинная

1шт.

12

VOE 955923

Шайба пружинная

1шт.

13

VOE 978932

Болт

1шт.

13

VOE 978932

Винт шестигранник

1шт.

2

VOE 14500979

Крышка

SER NO 10001-12275

1шт.

3

VOE 14500982

Крышка

1шт.

4

VOE 14515645

Крышка

1шт.

5

VOE 14514208

Крышка

1шт.

6

VOE 14500983

Крышка

1шт.

7

VOE 14514062

Пластина

1шт.

8

VOE 14514209

Крышка

1шт.

9

VOE 14514205

Крышка

1шт.

Выбрано товаров: 24