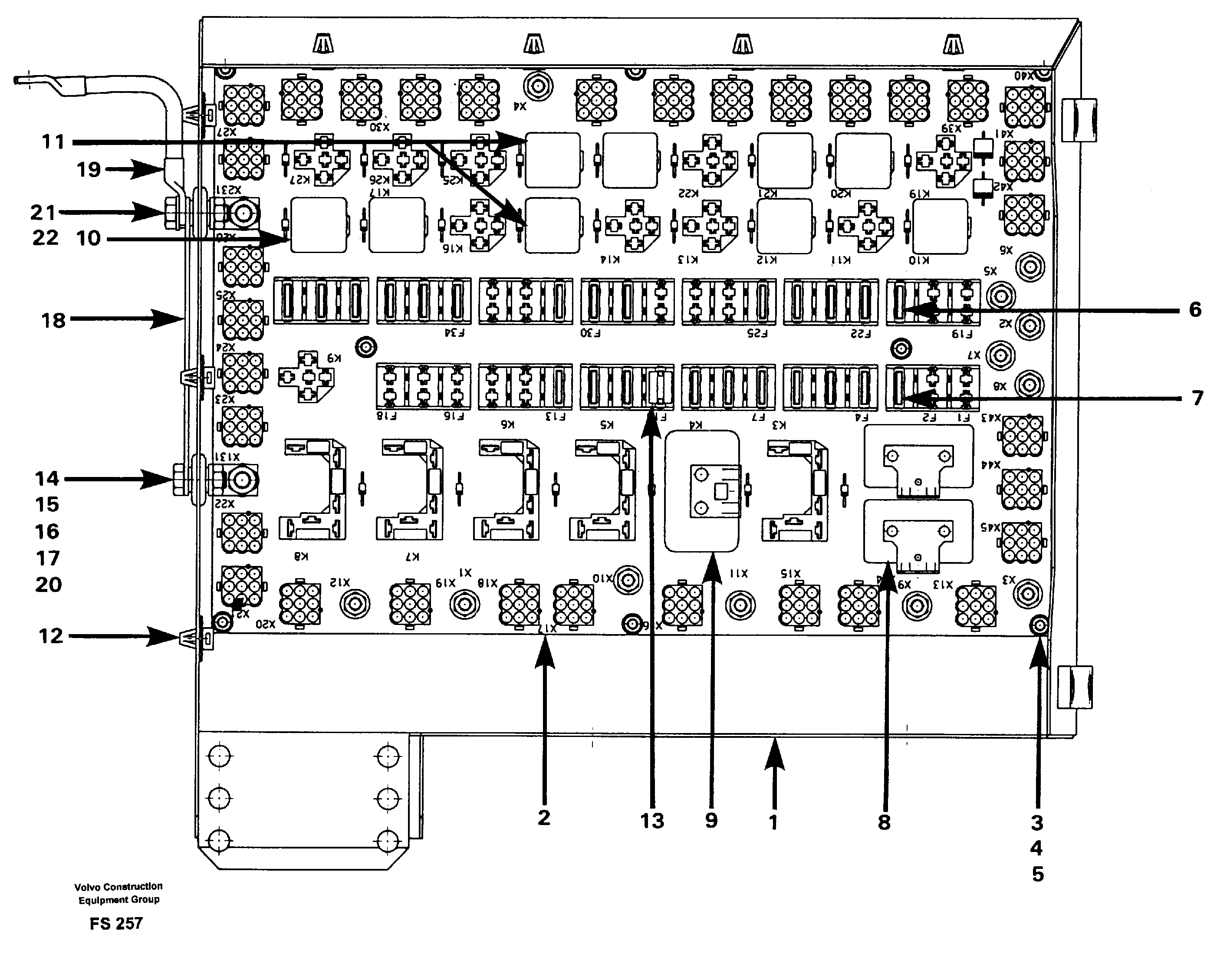
Запчасти Volvo EC420 103719 Electrical distribution box EC420 ?KERMAN ?KERMAN EC420 SER NO - 1550

Схема запчастей Volvo EC420 - 103719 Electrical distribution box EC420 ?KERMAN ?KERMAN EC420 SER NO - 1550
FIT
1:1
100%

Артикул

Название

Примечание

Количество

VOE 14024153

Adhesive

LOC-TITE 401/3 GR

1шт.

VOE 14024153

Adhesive

LOC-TITE 401/3 GR

1шт.

VOE 14252491

El Distr Unit

1шт.

1

VOE 14248716

14248716

1шт.

10

VOE 11000132

Реле

1шт.

10

VOE 11000132

Реле

1шт.

11

VOE 11000132

Реле

1шт.

11

VOE 11000132

Реле

1шт.

12

VOE 14213259

Attachment

1шт.

13

VOE 14214727

Fuse Tool

1шт.

14

VOE 14254864

Current bar

1шт.

15

VOE 14216013

Гайка

1шт.

16

VOE 14216006

Уплотнительная втулка

1шт.

17

VOE 14252073

Вставка

1шт.

18

VOE 14251988

Current bar

1шт.

19

VOE 14346666

Battery cable

1шт.

2

VOE 14344860

Electronic unit

1шт.

20

VOE 13955295

Болт

1шт.

20

VOE 13955295

Болт

1шт.

21

VOE 13955894

Шайба

1шт.

21

VOE 13955894

Шайба

1шт.

22

VOE 955297

Винт шестигранник

1шт.

22

VOE 955297

Винт шестигранник

1шт.

3

VOE 14257464

Болт

1шт.

4

VOE 14216030

Nylon Washer

1шт.

5

VOE 14216029

Гайка с нейлоновой вставкой

1шт.

6

VOE 13980555

Fuse

1шт.

6

VOE 13980555

Fuse

1шт.

7

VOE 13969162

Fuse

1шт.

7

VOE 13969162

Fuse

1шт.

8

VOE 14212961

Intermittent relay

1шт.

9

VOE 14212257

Step relay

1шт.

9

VOE 14212257

Step relay

1шт.

Выбрано товаров: 33