Запчасти Volvo EC450 43533 Hatch, slewing gear box EC450 SER NO 1782-1909

Схема запчастей Volvo EC450 - 43533 Hatch, slewing gear box EC450 SER NO 1782-1909
FIT
1:1
100%

Артикул

Название

Примечание

Количество

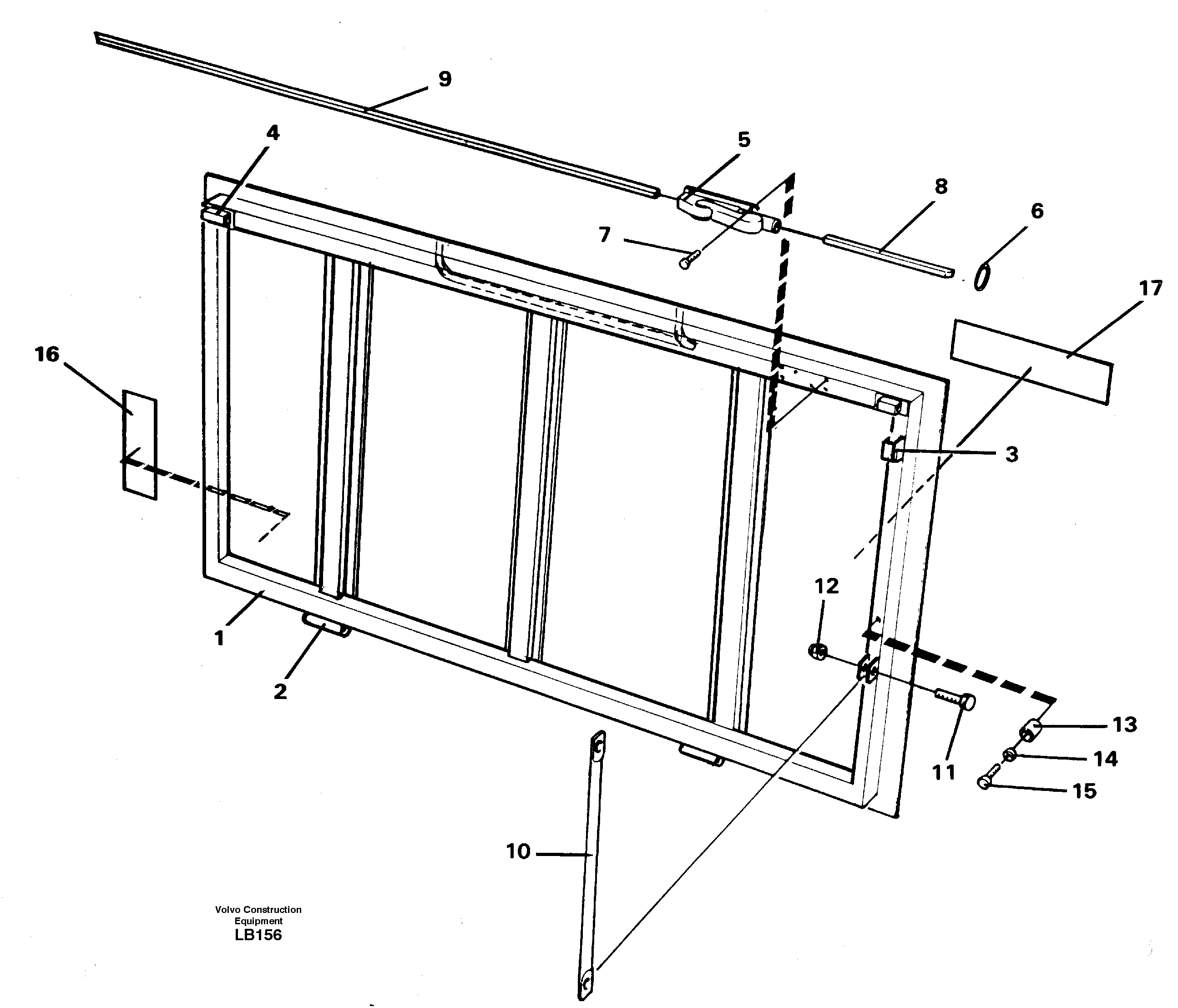
VOE 14263386

Hatch

1шт.

10

VOE 14255132

Опора

1шт.

11

VOE 13970948

Винт шестигранник

1шт.

11

VOE 13970948

Винт шестигранник

1шт.

12

VOE 13971089

Lock nut

1шт.

12

VOE 13971089

Lock nut

1шт.

13

VOE 14215373

Rubber block

1шт.

13

VOE 14215373

Rubber block

1шт.

14

VOE 13940090

Шайба

1шт.

14

VOE 13940090

Шайба

1шт.

15

VOE 14210397

Болт

1шт.

15

VOE 14210397

Болт

1шт.

16

VOE 11091424

Slip protection

1шт.

16

VOE 11091424

Slip protection

1шт.

17

VOE 14055525

Slip protection

1шт.

17

VOE 14055525

Slip protection

1шт.

2

VOE 14014290

Hinge flange

1шт.

2

VOE 14014290

Hinge flange

1шт.

3

VOE 14074987

Latch

1шт.

4

VOE 14014116

Guide

1шт.

5

VOE 14014118

14014118

1шт.

6

VOE 14213421

Кольцо уплотнительное (О-кольцо)

1шт.

7

VOE 955119

Cross recessed screw

1шт.

7

VOE 955119

Cross recessed screw

1шт.

8

VOE 14261390

Pull rod

1шт.

9

VOE 14048021

Pull rod

1шт.

Выбрано товаров: 26