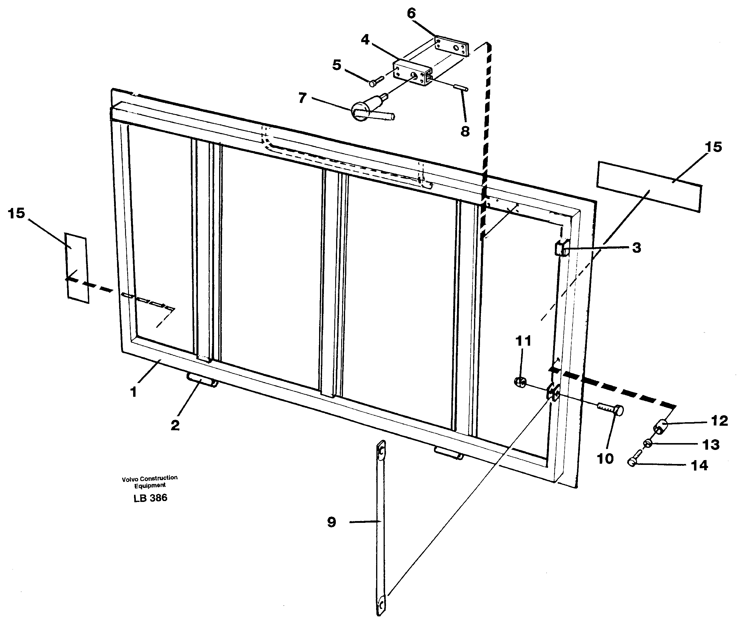
Запчасти Volvo EC450 43534 Hatch, slewing gear box EC450 SER NO 1782-1909

Схема запчастей Volvo EC450 - 43534 Hatch, slewing gear box EC450 SER NO 1782-1909
FIT
1:1
100%

Артикул

Название

Примечание

Количество

VOE 14342502

Hatch

1шт.

10

VOE 13970948

Винт шестигранник

1шт.

10

VOE 13970948

Винт шестигранник

1шт.

11

VOE 13971089

Lock nut

1шт.

11

VOE 13971089

Lock nut

1шт.

12

VOE 14215373

Rubber block

1шт.

12

VOE 14215373

Rubber block

1шт.

13

VOE 13940090

Шайба

1шт.

13

VOE 13940090

Шайба

1шт.

14

VOE 14210397

Болт

1шт.

14

VOE 14210397

Болт

1шт.

15

VOE 11091424

Slip protection

1шт.

15

VOE 11091424

Slip protection

1шт.

2

VOE 14014290

Hinge flange

1шт.

2

VOE 14014290

Hinge flange

1шт.

3

VOE 14074987

Latch

1шт.

4

VOE 14025506

Lock

1шт.

5

VOE 13972413

Винт шестигранник (торцевой ключ)

1шт.

6

VOE 14054944

Вставка

1шт.

7

VOE 14340848

14340848

1шт.

8

VOE 968745

Spring pin

1шт.

9

VOE 14255132

Опора

1шт.

Выбрано товаров: 0