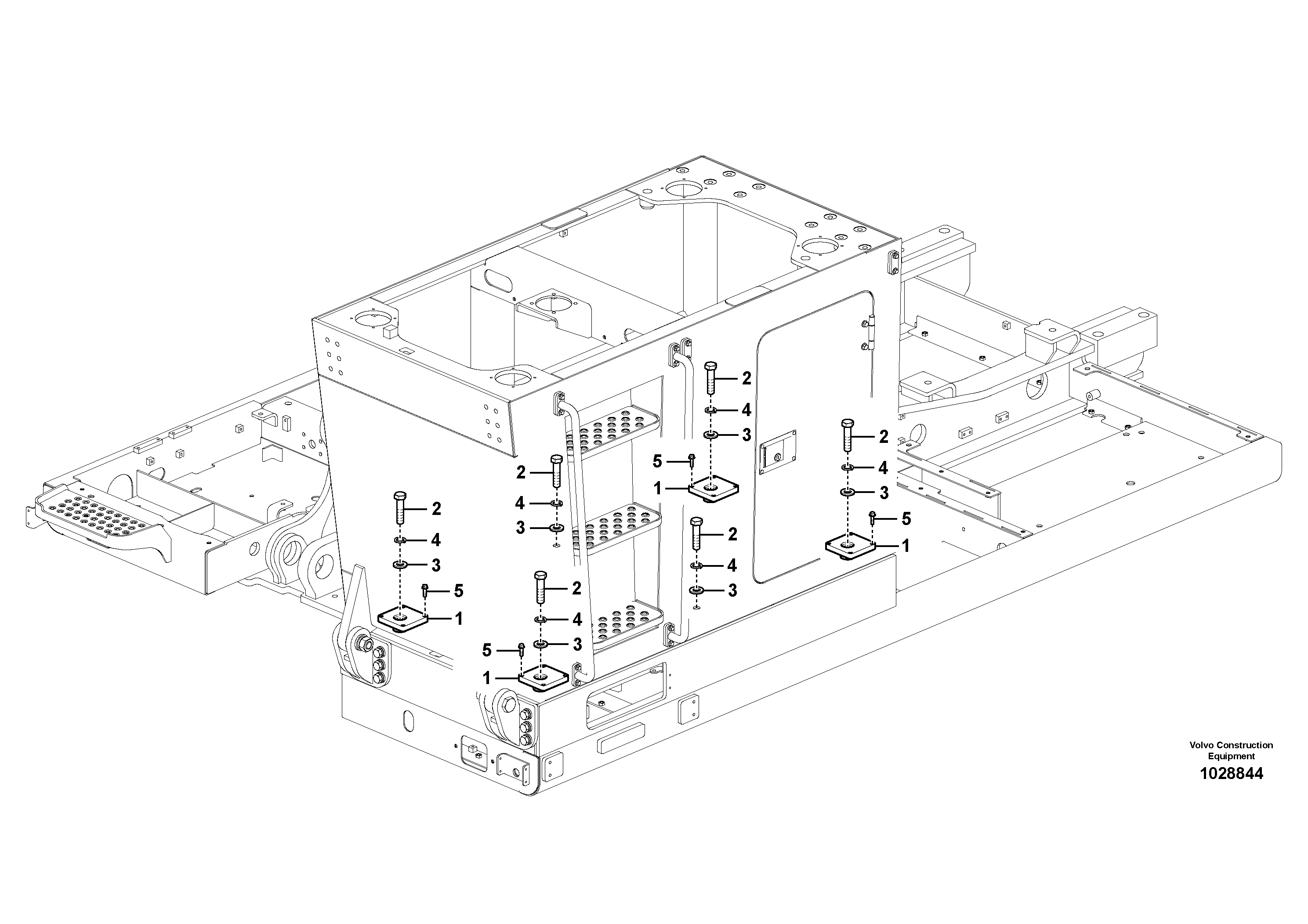
Запчасти Volvo EC460C 10896 Cab elevation on superstructure EC460C

Схема запчастей Volvo EC460C - 10896 Cab elevation on superstructure EC460C
FIT
1:1
100%

Артикул

Название

Примечание

Количество

1

VOE 14534294

Base

1шт.

1

VOE 14534294

Base

1шт.

2

SA 9011-22418

Болт

1шт.

2

SA 9011-22418

Винт шестигранник

1шт.

3

SA 9211-24000

Шайба

1шт.

4

SA 9213-24000

Шайба

1шт.

5

VOE 13946752

Болт

1шт.

5

VOE 13946752

Болт

1шт.

Выбрано товаров: 8