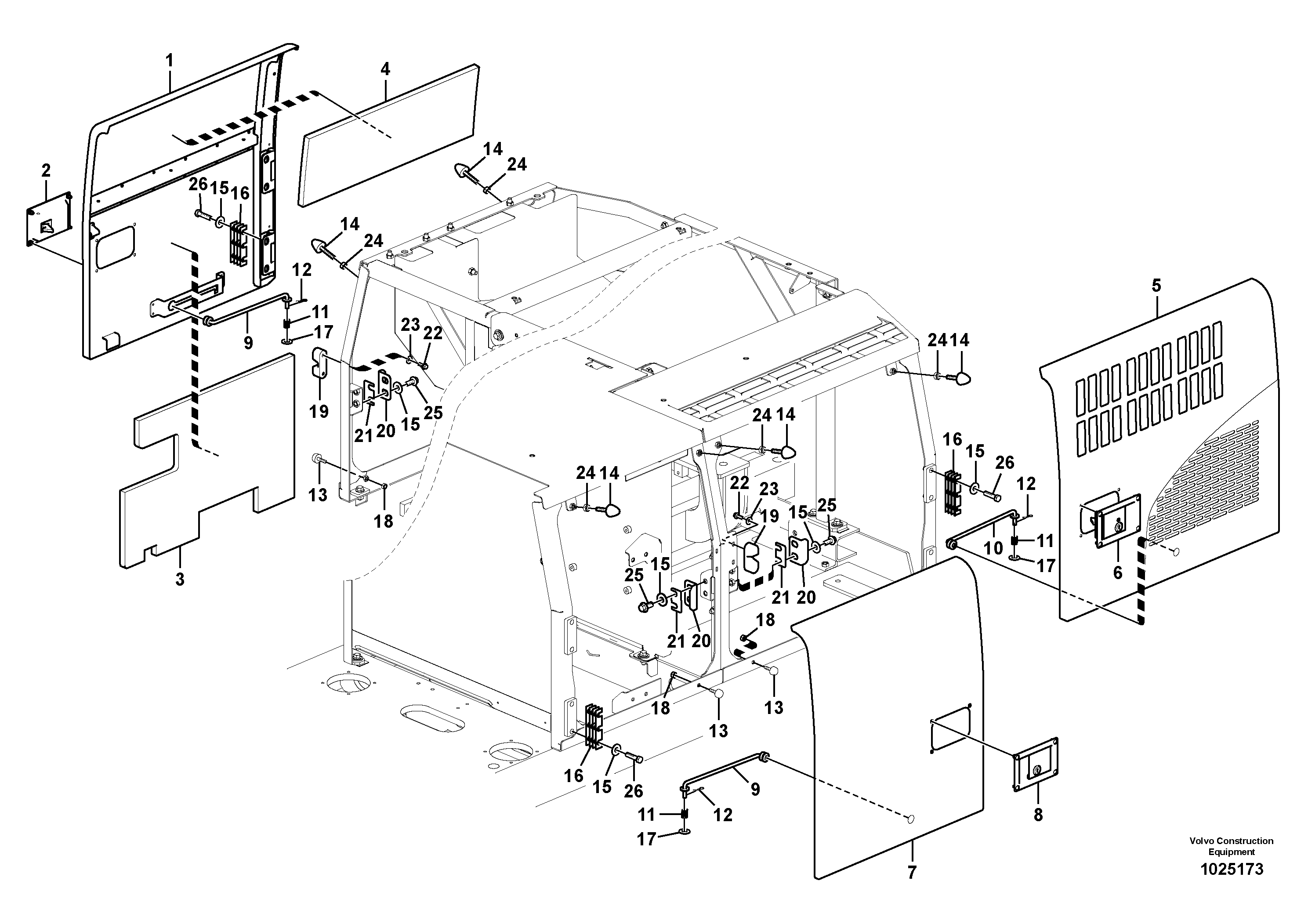
Запчасти Volvo EW140C 90151 Door, side EW140C

Схема запчастей Volvo EW140C - 90151 Door, side EW140C
FIT
1:1
100%

Артикул

Название

Примечание

Количество

1

VOE 14385379

Door

1шт.

10

VOE 14511974

Щуп

1шт.

10

VOE 14511974

Щуп

1шт.

11

VOE 14517154

Пружина

1шт.

12

SA 9326-10000

Палец

1шт.

13

VOE 14508848

Bumper

1шт.

13

VOE 14508848

Bumper

1шт.

14

VOE 14527458

Болт

1шт.

14

VOE 14527458

Болт

1шт.

15

VOE 13960145

Шайба

1шт.

15

VOE 13960145

Шайба

1шт.

16

VOE 14881062

Прокладка

1шт.

16

VOE 14881062

Прокладка

1шт.

17

VOE 976945

Шайба

1шт.

17

VOE 976945

Шайба

1шт.

18

VOE 983303

Гайка

1шт.

18

VOE 983303

Hexagon nut

1шт.

19

VOE 14607228

Bump Stop

1шт.

2

VOE 14508850

Latch

1шт.

2

VOE 14508850

Latch

1шт.

20

VOE 14517770

Пластина

1шт.

21

VOE 14514515

Пластина

1шт.

21

VOE 14514515

Пластина

1шт.

22

VOE 13945444

Болт

1шт.

22

VOE 13945444

Screw

1шт.

23

VOE 13960141

Шайба

1шт.

23

VOE 13960141

Шайба

1шт.

24

VOE 983304

Hexagon nut

1шт.

24

VOE 983304

Hexagon nut

1шт.

25

VOE 13965191

Screw

1шт.

25

VOE 13965191

Болт

1шт.

26

VOE 978933

Винт шестигранник

1шт.

26

VOE 978933

Винт шестигранник

1шт.

3

VOE 14387253

Insulation

1шт.

4

VOE 14387254

Insulation

1шт.

5

VOE 14387296

Door

1шт.

6

VOE 14508854

Latch

1шт.

7

VOE 14387300

Door

1шт.

8

VOE 14508850

Latch

1шт.

8

VOE 14508850

Latch

1шт.

9

VOE 14511975

Щуп

1шт.

Выбрано товаров: 41