Запчасти Volvo EW230 ?KERMAN ?KERMAN EW230 SER NO - 1447 51011 Hutch over engine

Схема запчастей Volvo EW230 ?KERMAN ?KERMAN EW230 SER NO - 1447 - 51011 Hutch over engine
FIT
1:1
100%

Артикул

Название

Примечание

Количество

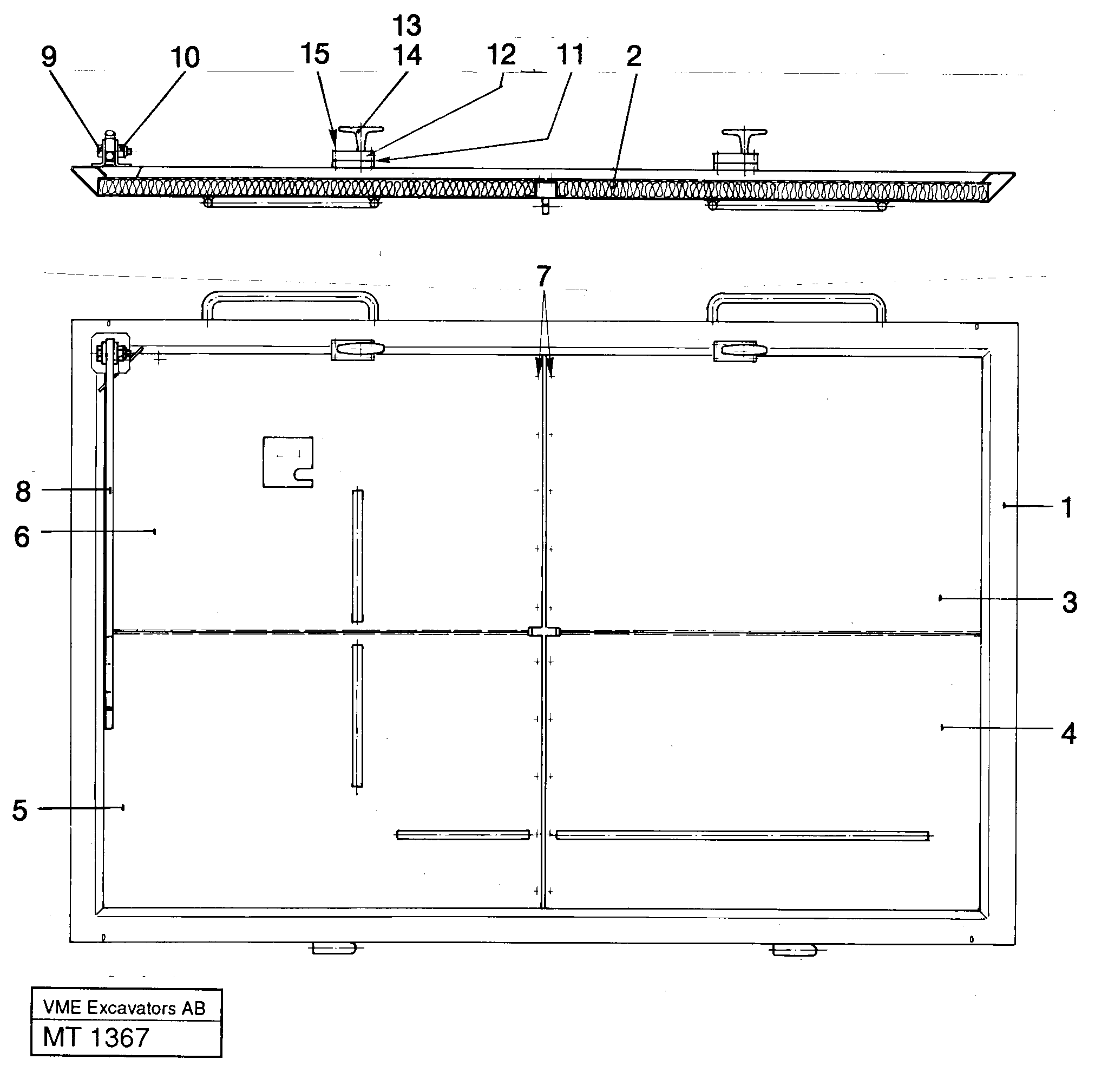
10

VOE 963110

Гайка

1шт.

10

VOE 963110

Lock nut

1шт.

11

VOE 14054944

Вставка

1шт.

12

VOE 14025506

Lock

1шт.

13

VOE 14340848

14340848

1шт.

14

VOE 14102979

Spring pin

1шт.

15

VOE 14210397

Болт

1шт.

15

VOE 14210397

Болт

1шт.

2

VOE 14280886

Insulation

1шт.

3

VOE 14251727

Шайба

1шт.

4

VOE 14251728

Шайба

1шт.

5

VOE 14251729

Шайба

1шт.

6

VOE 14251730

Шайба

1шт.

7

VOE 14211258

Болт

1шт.

7

VOE 14211258

Болт

1шт.

8

VOE 14040048

Опора

1шт.

9

VOE 13955366

Болт

1шт.

9

VOE 13955366

Болт

1шт.

Выбрано товаров: 18