Запчасти Volvo G700 MODELS S/N 33000 - 39242 Single lock valve

Схема запчастей Volvo G700 MODELS S/N 33000 - - 39242 Single lock valve
FIT
1:1
100%

Артикул

Название

Примечание

Количество

CH 63075

Sealing Kit

PCS 1 per, for 63173

1шт.

CH 63075

Sealing Kit

PCS 1 per, for 75978

1шт.

CH 63075

Sealing Kit

PCS 1 per, for 63192

1шт.

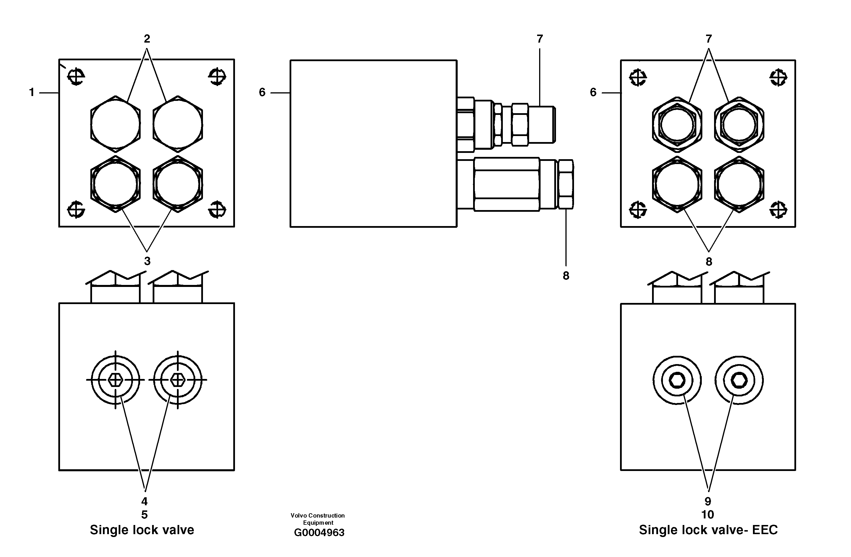
1

CH 81046

Клапан

CPL, INCL ITEM NO 2 - 5

1шт.

1

CH 97145

Клапан

CPL, INCL ITEM NO 2 - 5

1шт.

10

CH 42232

Кольцо уплотнительное (О-кольцо)

1шт.

2

CH 63173

Клапан

1шт.

3

CH 63192

Cartridge

1шт.

4

CH 76094

Пробка (заглушка)

1шт.

5

CH 42232

Кольцо уплотнительное (О-кольцо)

1шт.

6

CH 74531

Клапан

CPL, EEC INCL ITEM NO 7 -

1шт.

7

CH 75978

Клапан обратный

1шт.

8

CH 63192

Cartridge

1шт.

9

CH 76094

Пробка (заглушка)

1шт.

Выбрано товаров: 14