Качественные детали и логистика
Оригинальные и аналоговые запчасти с доставкой по России, Казахстану и Беларуси
©2022 PartSell ООО "Система" ИНН 2463123282 ОГРН 1212400004838
Центральный офис: г. Красноярск, Академика Киренского, д.87, пом.4
Телефон: 8 (800) 777-65-74 Email: zakaz@partsell.ru
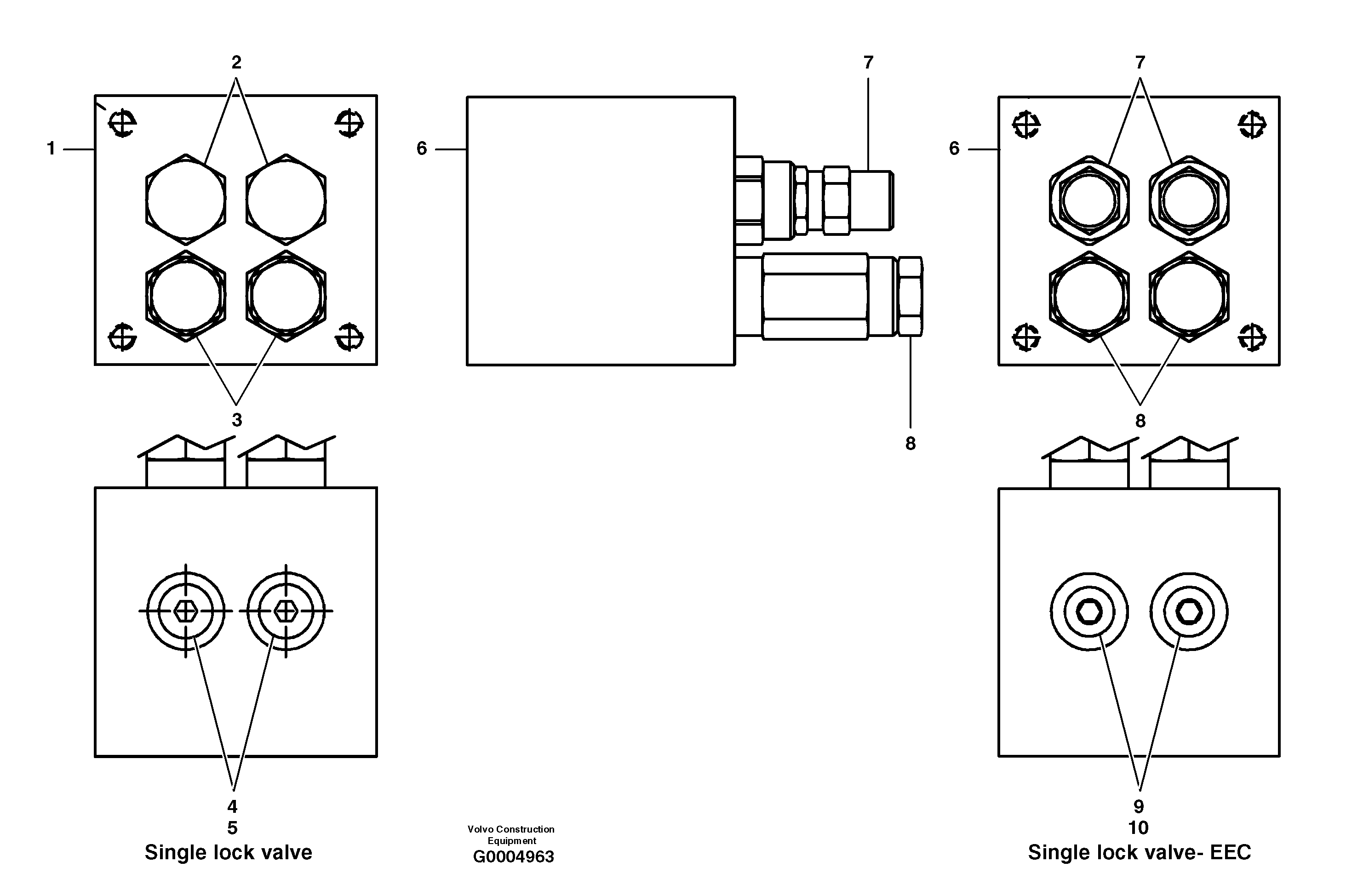
39484 Blocking valve
№
Артикул
Название
Примечание
Количество
CH 63075
Sealing Kit
PCS 1 per, for 63173
1шт.
1
CH 81047
Клапан
CPL, INCL ITEM NO 2 - 5
2
CH 63173
3
CH 63192
Cartridge
4
CH 76094
Пробка (заглушка)
5
CH 42232
Кольцо уплотнительное (О-кольцо)
Выбрано товаров: 0