Запчасти Volvo G700 MODELS S/N 33000 - 7742 Датчик

Схема запчастей Volvo G700 MODELS S/N 33000 - - 7742 Датчик
FIT
1:1
100%

Артикул

Название

Примечание

Количество

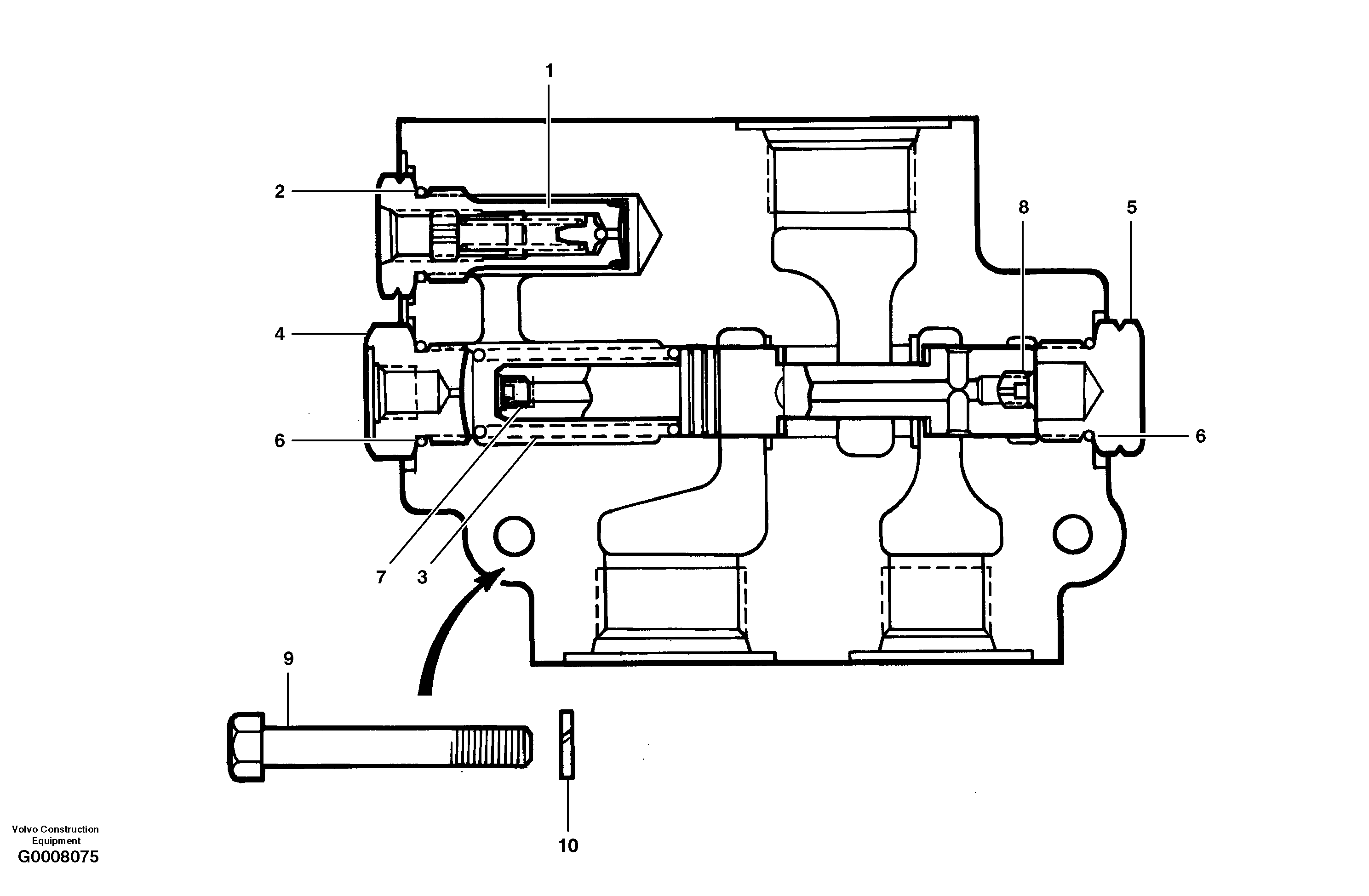
CH 405002

Датчик

CPL, INCL ITEM NO 1 - 8

1шт.

1

CH 81409

Cartridge

INCL ITEM NO 2

1шт.

10

VOE 12727853

Шайба

1шт.

2

CH 116A-08

Кольцо уплотнительное (О-кольцо)

1шт.

2

CH 116A-08

Кольцо уплотнительное (О-кольцо)

1шт.

3

CH 89188

Пружина

1шт.

4

CH 81419

Пробка (заглушка)

1шт.

5

CH 81420

Пробка (заглушка)

1шт.

6

CH 116A-10

Кольцо уплотнительное (О-кольцо)

1шт.

7

CH 89187

установочный винт

1шт.

8

CH 405050

установочный винт

1шт.

9

CH 50A-0524ZI

Винт шестигранник

1шт.

Выбрано товаров: 12