Качественные детали и логистика
Оригинальные и аналоговые запчасти с доставкой по России, Казахстану и Беларуси
©2022 PartSell ООО "Система" ИНН 2463123282 ОГРН 1212400004838
Центральный офис: г. Красноярск, Академика Киренского, д.87, пом.4
Телефон: 8 (800) 777-65-74 Email: zakaz@partsell.ru
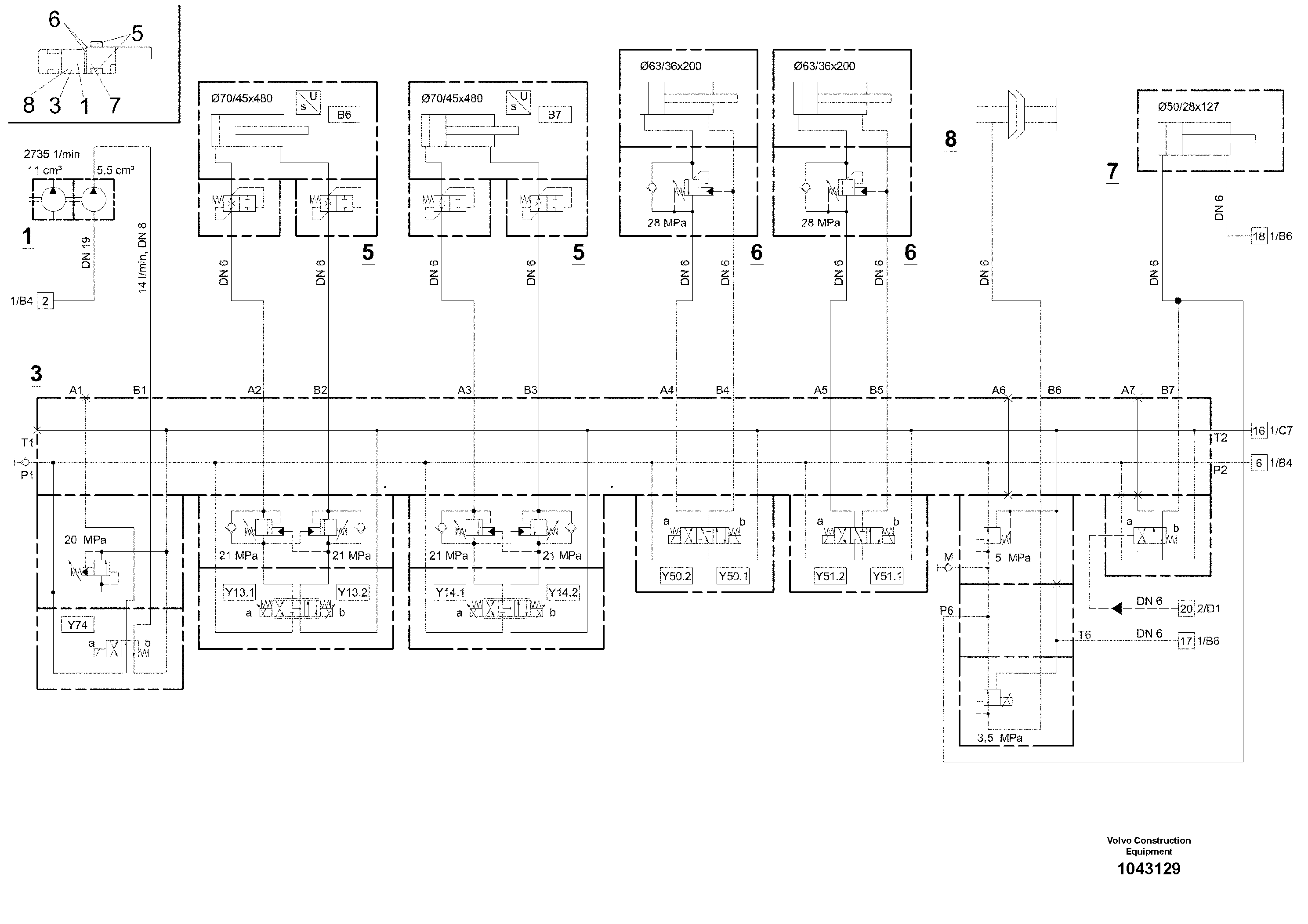
100879 Hydraulic diagram
№
Артикул
Название
Примечание
Количество
1
RM 80820079
Пилотный (шестерёнчатый) насос
DOUBLE
1шт.
3
RM 80722101
Valve block
4
RM 14102537
Non-return Valve
S/N -19202
5
RM 80717721
Гидроцилиндр
6
RM 80721590
7
RM 80730096
8
RM 80712847
Planox-clutch
Выбрано товаров: 0