Запчасти Volvo MW500 S/N 20591 - 95552 Hydraulic diagram

Схема запчастей Volvo MW500 S/N 20591 - - 95552 Hydraulic diagram
FIT
1:1
100%

Артикул

Название

Примечание

Количество

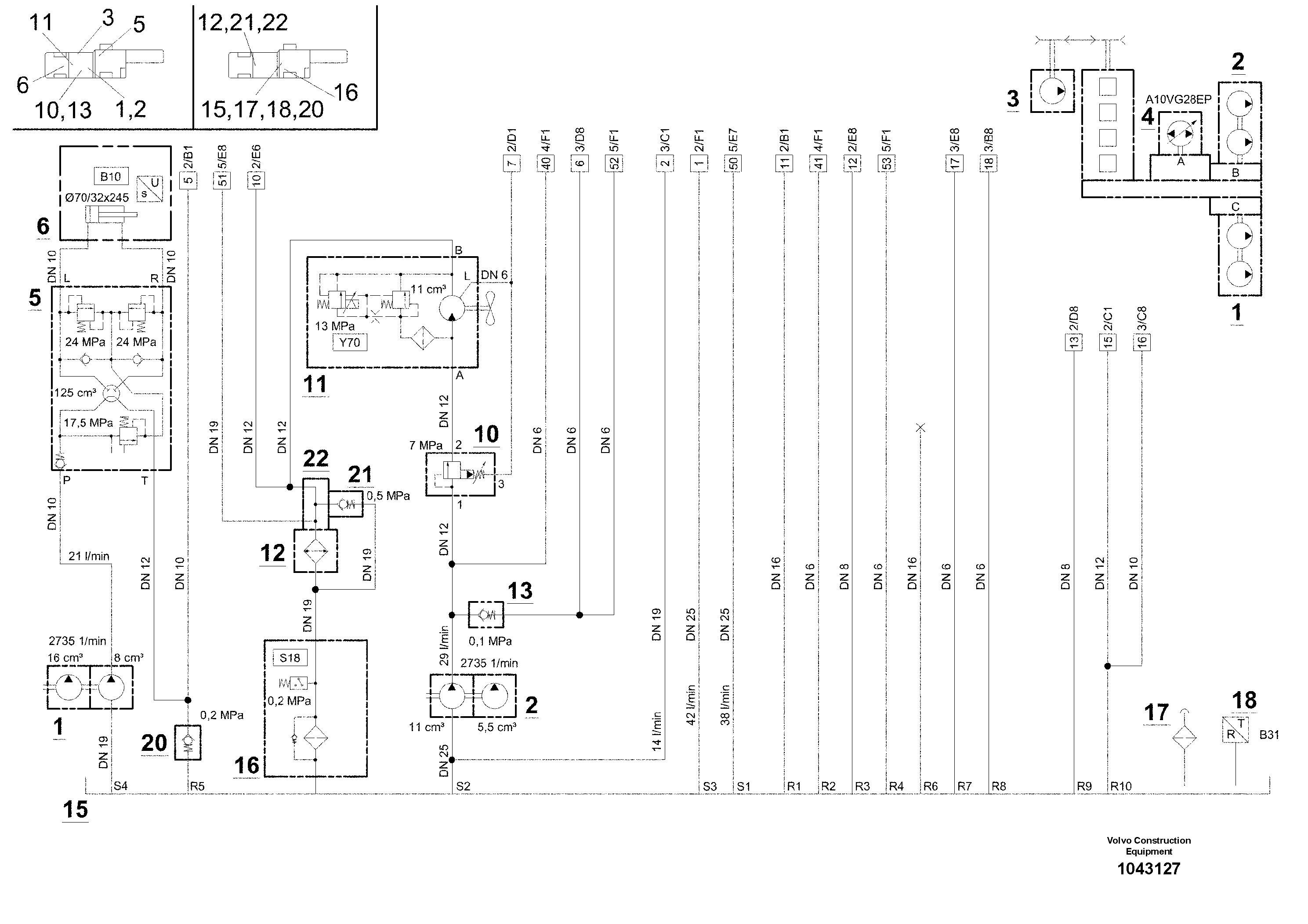
1

RM 80820061

Пилотный (шестерёнчатый) насос

DOUBLE

1шт.

10

RM 80710148

Sequence valve

1шт.

10

RM 80710148

Sequence valve

1шт.

11

RM 80767387

Gear motor

1шт.

12

RM 80825490

Combi-cooler

1шт.

13

RM 80802267

Клапан

S/N 19203-

1шт.

15

RM 80720873

Гидробак

1шт.

16

RM 80728173

Filter Return Line

1шт.

17

RM 80740731

Фильтр топливный

1шт.

17

RM 80740731

Фильтр топливный

1шт.

18

RM 87985305

Temperature sensor

NI1000

1шт.

18

RM 87985305

Temperature sensor

NI1000

1шт.

2

RM 80820079

Пилотный (шестерёнчатый) насос

DOUBLE

1шт.

20

RM 58865593

Клапан

1шт.

21

RM 80800469

Клапан

1шт.

21

RM 80800469

Клапан

1шт.

22

RM 80754237

Return Line Collector

1шт.

3

RM 80722093

Пилотный (шестерёнчатый) насос

1шт.

4

RM 80699614

Гидронасос (основной насос)

S/N 20589-, A10VG28EP4

1шт.

5

RM 80877566

Рулевая система

S/N 20589-

1шт.

5

RM 80724875

Рулевая система

S/N -20588

1шт.

6

RM 80725286

Гидроцилиндр

1шт.

Выбрано товаров: 22