Качественные детали и логистика
Оригинальные и аналоговые запчасти с доставкой по России, Казахстану и Беларуси
©2022 PartSell ООО "Система" ИНН 2463123282 ОГРН 1212400004838
Центральный офис: г. Красноярск, Академика Киренского, д.87, пом.4
Телефон: 8 (800) 777-65-74 Email: zakaz@partsell.ru
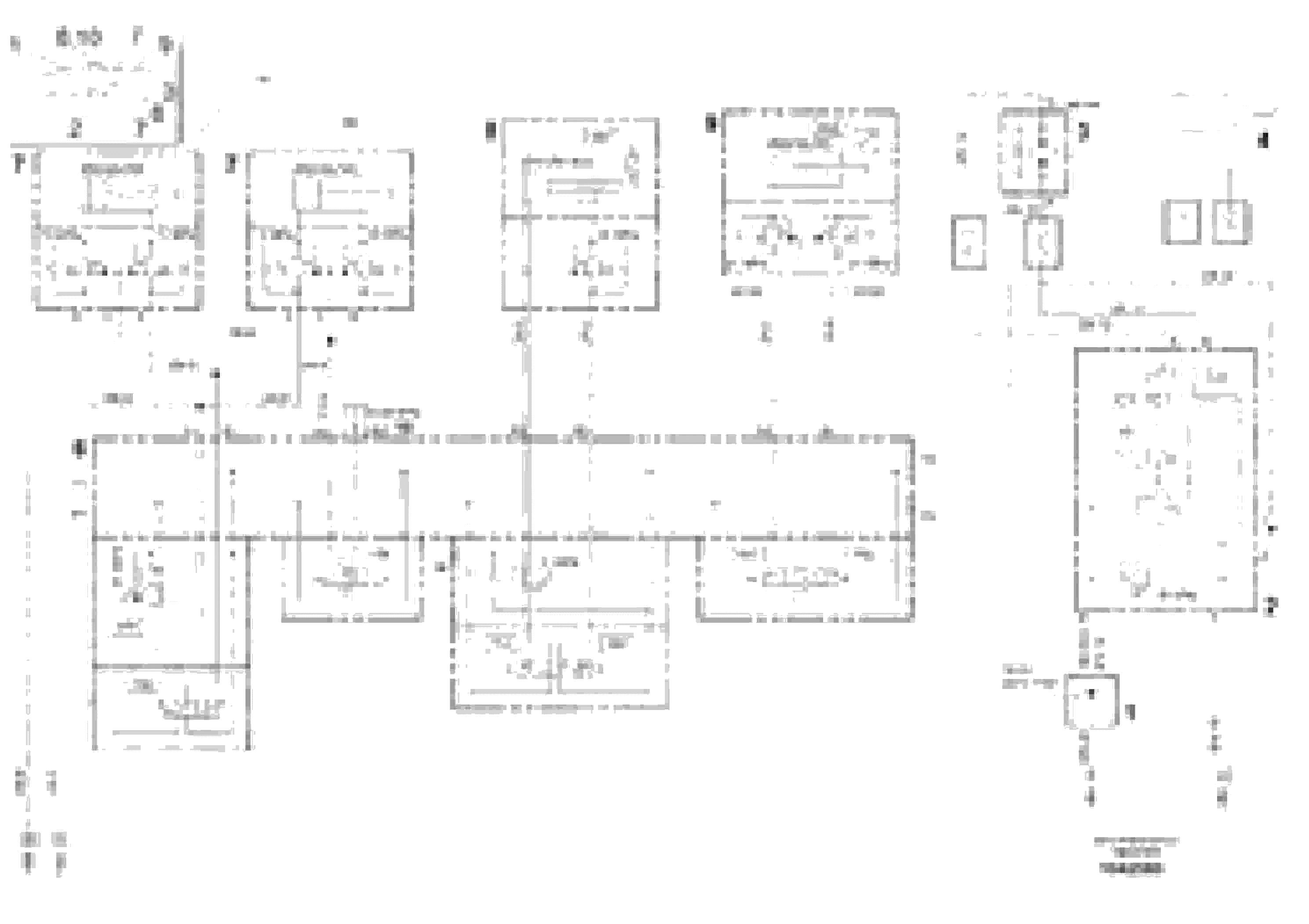
91587 Hydraulic diagram
№
Артикул
Название
Примечание
Количество
1
RM 80722093
Пилотный (шестерёнчатый) насос
1шт.
10
RM 80778814
Клапан
2
RM 80782584
Valve block
3
RM 80732472
Гидромотор
6
RM 80729742
7
RM 80761273
Гидроцилиндр
8
RM 80725765
9
RM 80738511
Выбрано товаров: 0