Запчасти Volvo EC14 TYPE 246, 271 25857 Hydr. circuit ( controls attachment )

Схема запчастей Volvo EC14 TYPE 246, 271 - 25857 Hydr. circuit ( controls attachment )
FIT
1:1
100%

Артикул

Название

Примечание

Количество

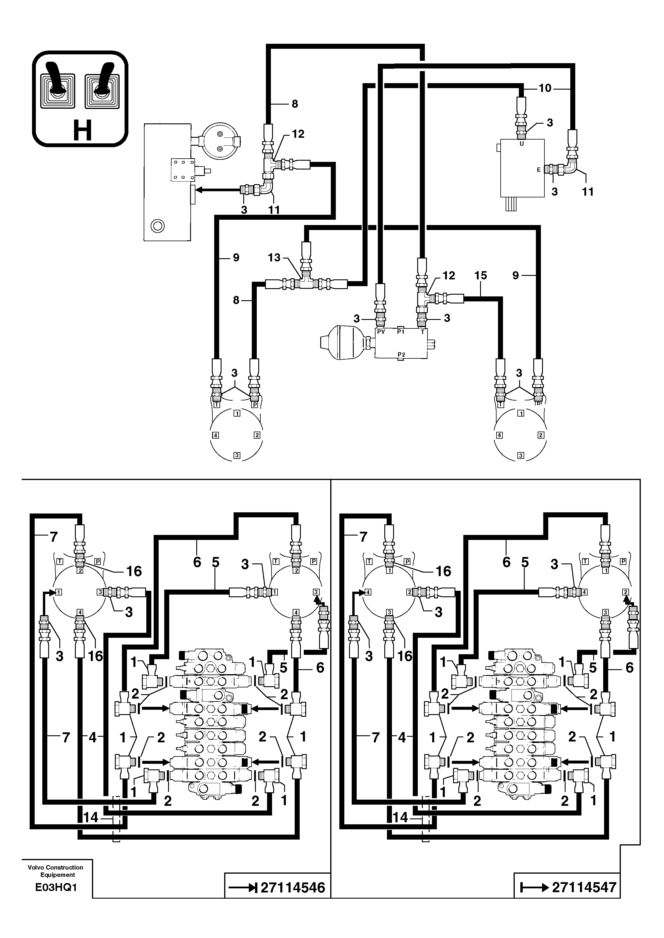
1

PJ 4770042

Hollow Screw

1шт.

10

PJ 4190205

Шланг

1/4''

1шт.

11

PJ 4700015

Elbow

1шт.

12

PJ 4720008

Tee

1шт.

13

PJ 4720018

Tee

1шт.

14

VOE 11804752

Shield Coil

1шт.

15

PJ 4190225

Шланг

1/4''

1шт.

16

PJ 4770575

Restricting valve

ID = 0,6mm/0.0236in

1шт.

2

PJ 5600041

Сальник

1шт.

3

PJ 4750055

Переходник масляного фильтра

1шт.

4

PJ 4190291

Шланг

1/4''

1шт.

5

PJ 4190219

Шланг

1/4''

1шт.

6

PJ 4190221

Шланг

1/4''

1шт.

7

PJ 4190222

Шланг

1/4''

1шт.

8

PJ 4190224

Шланг

1/4''

1шт.

9

PJ 4190225

Шланг

1/4''

1шт.

Выбрано товаров: 16