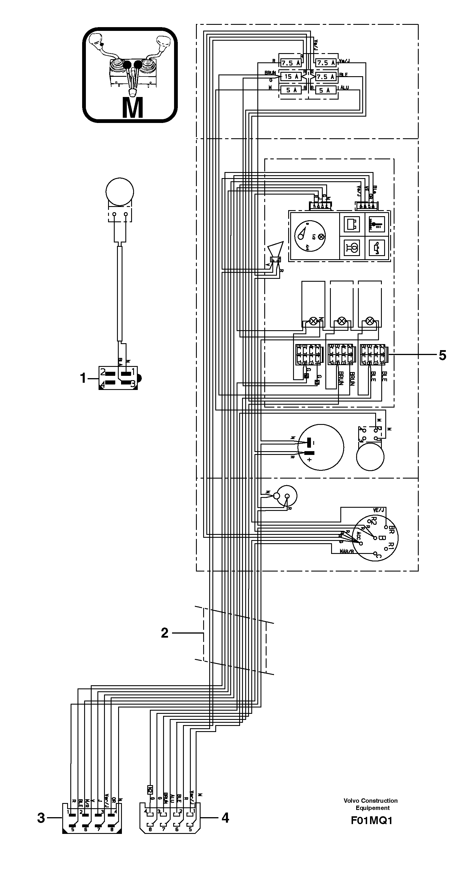
Запчасти Volvo EC14 TYPE 246, 271 24607 Electrical system ( front )

Схема запчастей Volvo EC14 TYPE 246, 271 - 24607 Electrical system ( front )
FIT
1:1
100%

Артикул

Название

Примечание

Количество

1

PJ 5080026

Plug connector

1шт.

2

PJ 5720190

Wire harness

1шт.

3

PJ 5080014

Plug connector

1шт.

4

PJ 5080015

Plug connector

1шт.

5

PJ 5080030

Plug connector

1шт.

Выбрано товаров: 5