Запчасти Volvo EC20B TYPE 272 XT/XTV 34236 Hydr. circuit.( boom / dipper arm / bucket )

Схема запчастей Volvo EC20B TYPE 272 XT/XTV - 34236 Hydr. circuit.( boom / dipper arm / bucket )
FIT
1:1
100%

Артикул

Название

Примечание

Количество

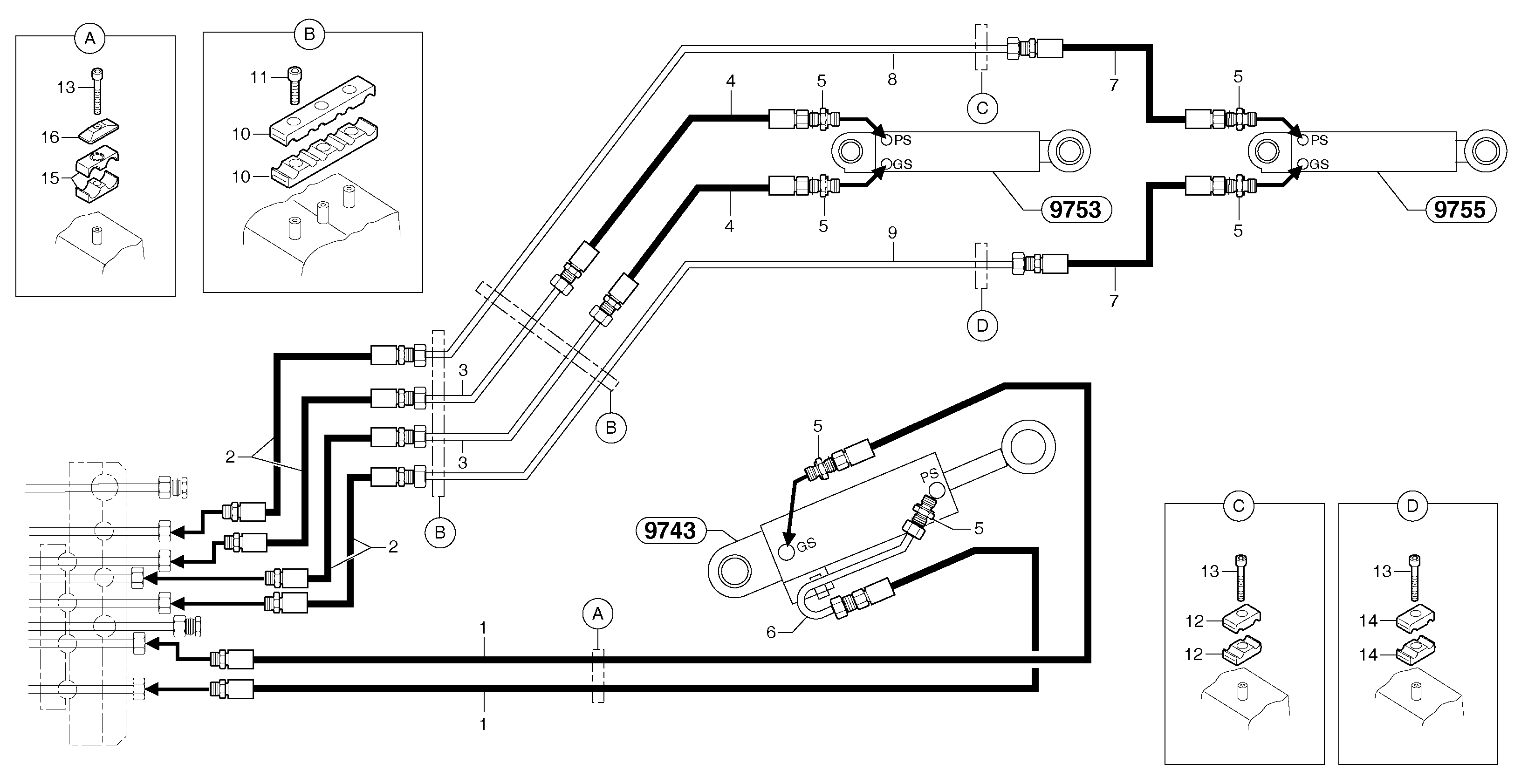
1

VOE 11800924

Шланг

1/4"

1шт.

10

VOE 11800387

Фланец

1шт.

11

VOE 946440

Flange screw

M8x16

1шт.

11

VOE 946440

Flange screw

M8x16

1шт.

12

VOE 11800386

Фланец

1шт.

13

VOE 965179

Flange screw

H M8x50

1шт.

14

VOE 11806244

Фланец

1шт.

15

VOE 11806230

Зажим

1шт.

16

VOE 11806180

Protecting plate

1шт.

2

VOE 11800389

Шланг

1/4"

1шт.

3

VOE 11800370

Трубка

1шт.

4

VOE 11806008

Шланг

5/16"

1шт.

5

VOE 11806380

Переходник масляного фильтра

1шт.

7

PJ 4190312

High pressure hose

L = 540 mm / 21,2598in

1шт.

7

PJ 4193111

High pressure hose

L = 760 mm / 29,9212 in

1шт.

8

VOE 11800379

Трубка

1шт.

9

VOE 11800378

Трубка

1шт.

Выбрано товаров: 17