Качественные детали и логистика
Оригинальные и аналоговые запчасти с доставкой по России, Казахстану и Беларуси
©2022 PartSell ООО "Система" ИНН 2463123282 ОГРН 1212400004838
Центральный офис: г. Красноярск, Академика Киренского, д.87, пом.4
Телефон: 8 (800) 777-65-74 Email: zakaz@partsell.ru
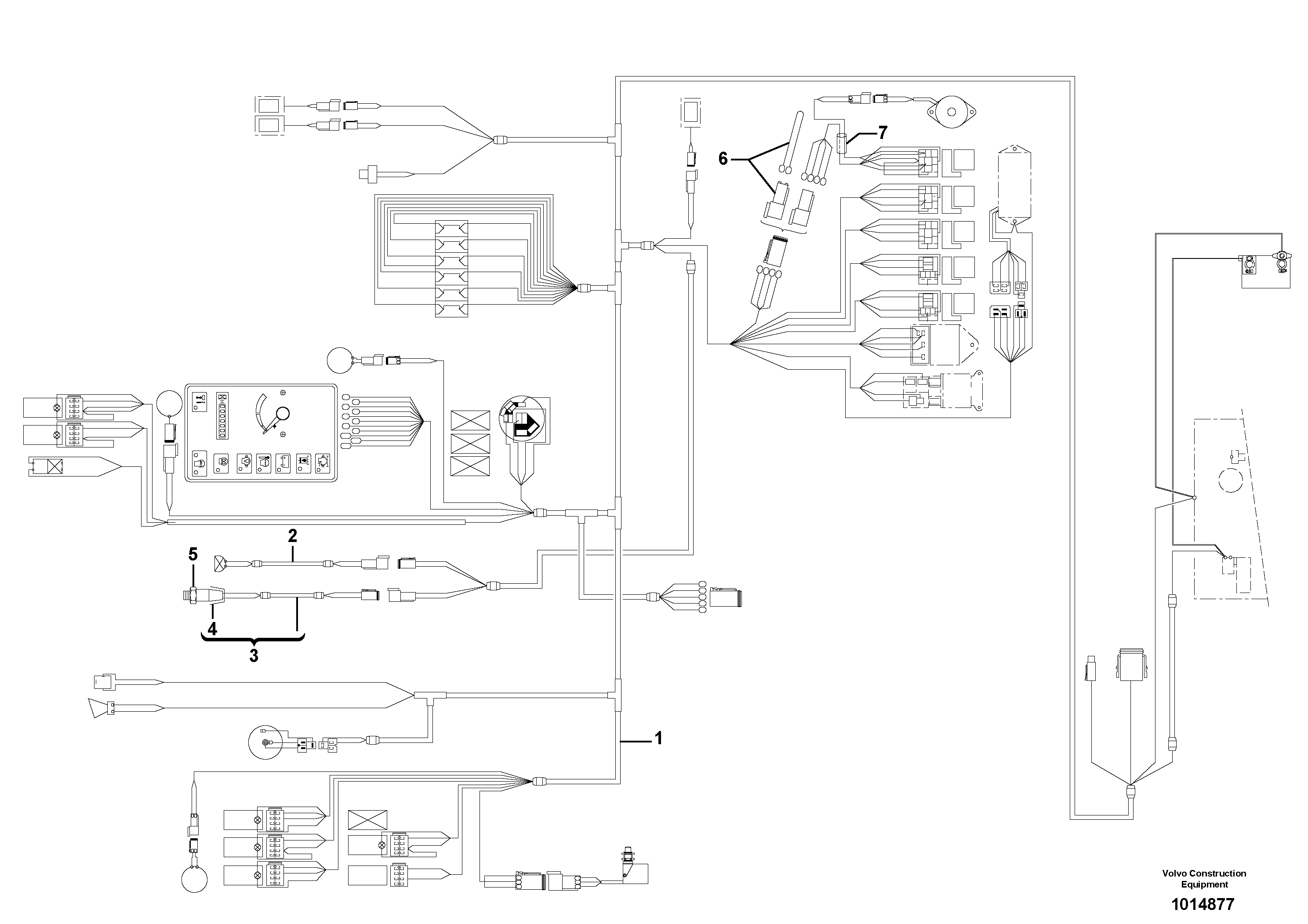
11766 Electrical system (front) / without Puma
№
Артикул
Название
Примечание
Количество
1
PJ 5720639
Wire harness
1шт.
3
VOE 11805633
Cable harness
4
VOE 11802913
Крышка
5
PJ 5130078
Датчик давления (переключатель, реле)
6
VOE 11805639
11805639
7
VOE 11805636
Выбрано товаров: 0