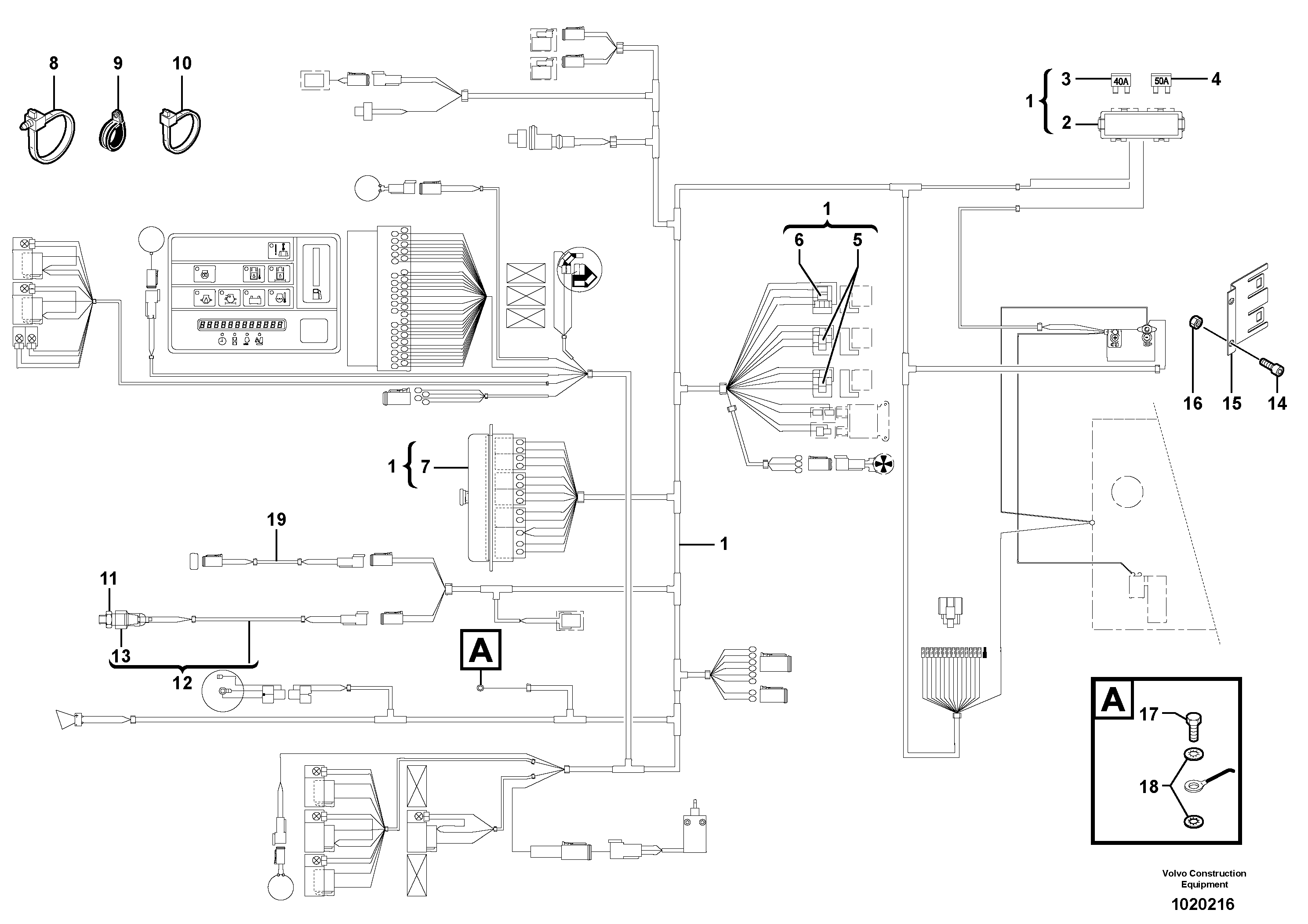
Запчасти Volvo EC35 TYPE 283 8456 Electrical system (front) / with Puma

Схема запчастей Volvo EC35 TYPE 283 - 8456 Electrical system (front) / with Puma
FIT
1:1
100%

Артикул

Название

Примечание

Количество

1

VOE 11807693

Wire harness

1шт.

10

VOE 11806170

Cable clamp

1шт.

10

VOE 11806170

Cable clamp

1шт.

11

VOE 11803151

Датчик давления (переключатель, реле)

1шт.

12

VOE 11805634

11805634

1шт.

13

VOE 11802913

Крышка

1шт.

14

VOE 969405

Винт шестигранник (торцевой ключ)

1шт.

14

VOE 969405

Винт шестигранник (торцевой ключ)

1шт.

15

VOE 11807626

Пластина

1шт.

16

VOE 13965483

Nut

1шт.

16

VOE 13965483

Гайка

1шт.

17

VOE 946173

Flange screw

1шт.

17

VOE 946173

Flange screw

1шт.

18

VOE 942767

Toothed washer

1шт.

18

VOE 942767

Toothed washer

1шт.

3

PJ 5120037

Fuse

1шт.

4

VOE 979009

Fuse

1шт.

5

PJ 5080042

Plug connector

1шт.

6

PJ 5080146

Plug connector

1шт.

7

PJ 5080122

Fuse central

1шт.

8

VOE 11803840

Strip clamp

1шт.

8

VOE 11803840

Strip clamp

1шт.

9

VOE 11806209

Зажим

1шт.

Выбрано товаров: 23