Запчасти Volvo EC45 TYPE 284 58172 Electrical system / Air preheater (us)

Схема запчастей Volvo EC45 TYPE 284 - 58172 Electrical system / Air preheater (us)
FIT
1:1
100%

Артикул

Название

Примечание

Количество

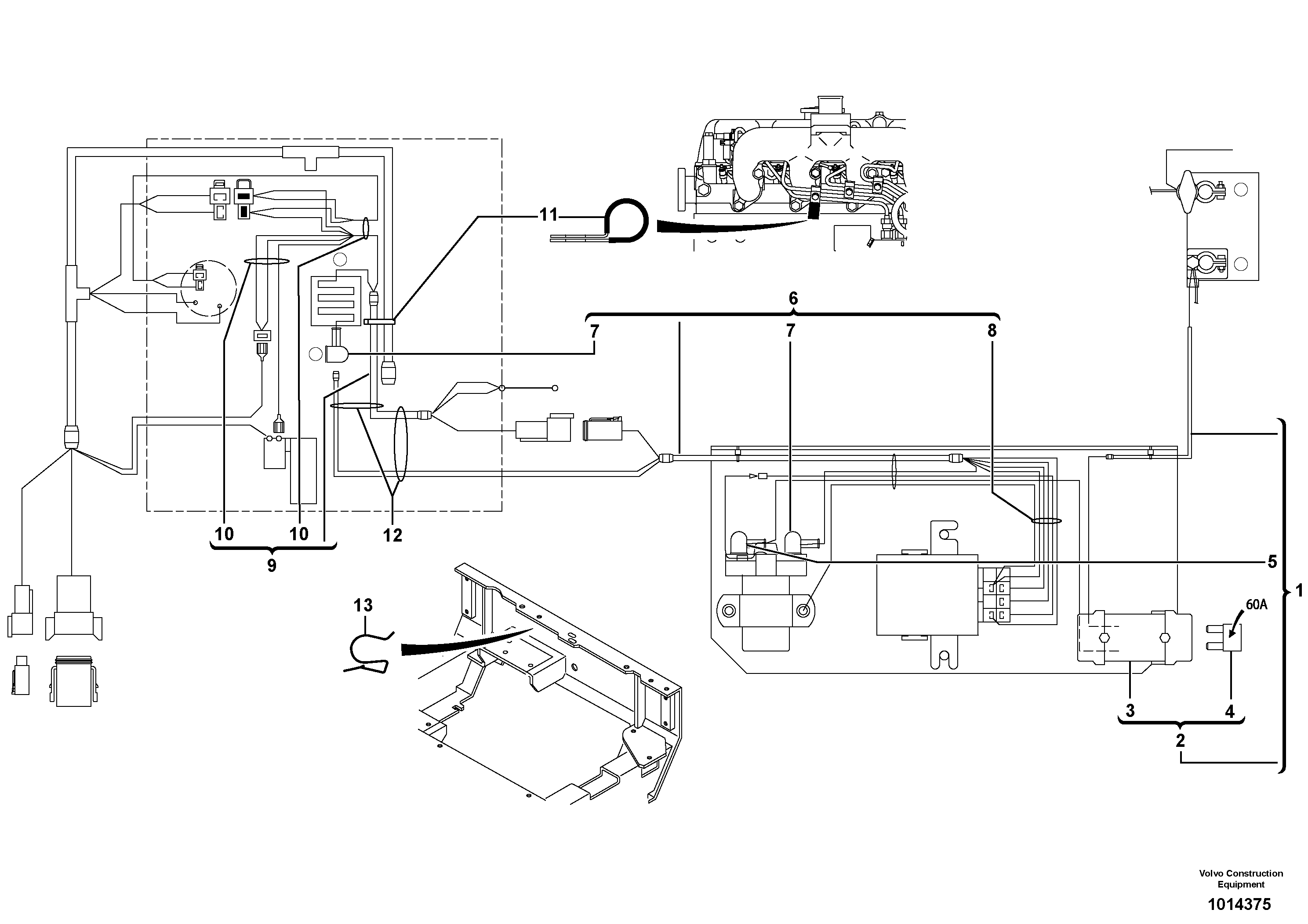
1

PJ 5720706

Wire harness

1шт.

10

VOE 11806169

Cable clamp

1шт.

11

VOE 11806276

Зажим

1шт.

12

VOE 11806170

Cable clamp

1шт.

12

VOE 11806170

Cable clamp

1шт.

13

PJ 4690199

Fastener

1шт.

2

PJ 5120035

Fuse Holder

1шт.

3

PJ 5120033

Fuse Holder

1шт.

4

PJ 5120032

Fuse

1шт.

5

PJ 5140345

Втулка (распорная)

1шт.

6

PJ 5720707

Wire harness

1шт.

7

PJ 5140345

Втулка (распорная)

1шт.

8

VOE 11806169

Cable clamp

1шт.

9

VOE 11805627

Cable harness

1шт.

Выбрано товаров: 14