Запчасти Volvo EC50 6700 Handling operations Ce / with Puma EC50 TYPE 247

Схема запчастей Volvo EC50 - 6700 Handling operations Ce / with Puma EC50 TYPE 247
FIT
1:1
100%

Артикул

Название

Примечание

Количество

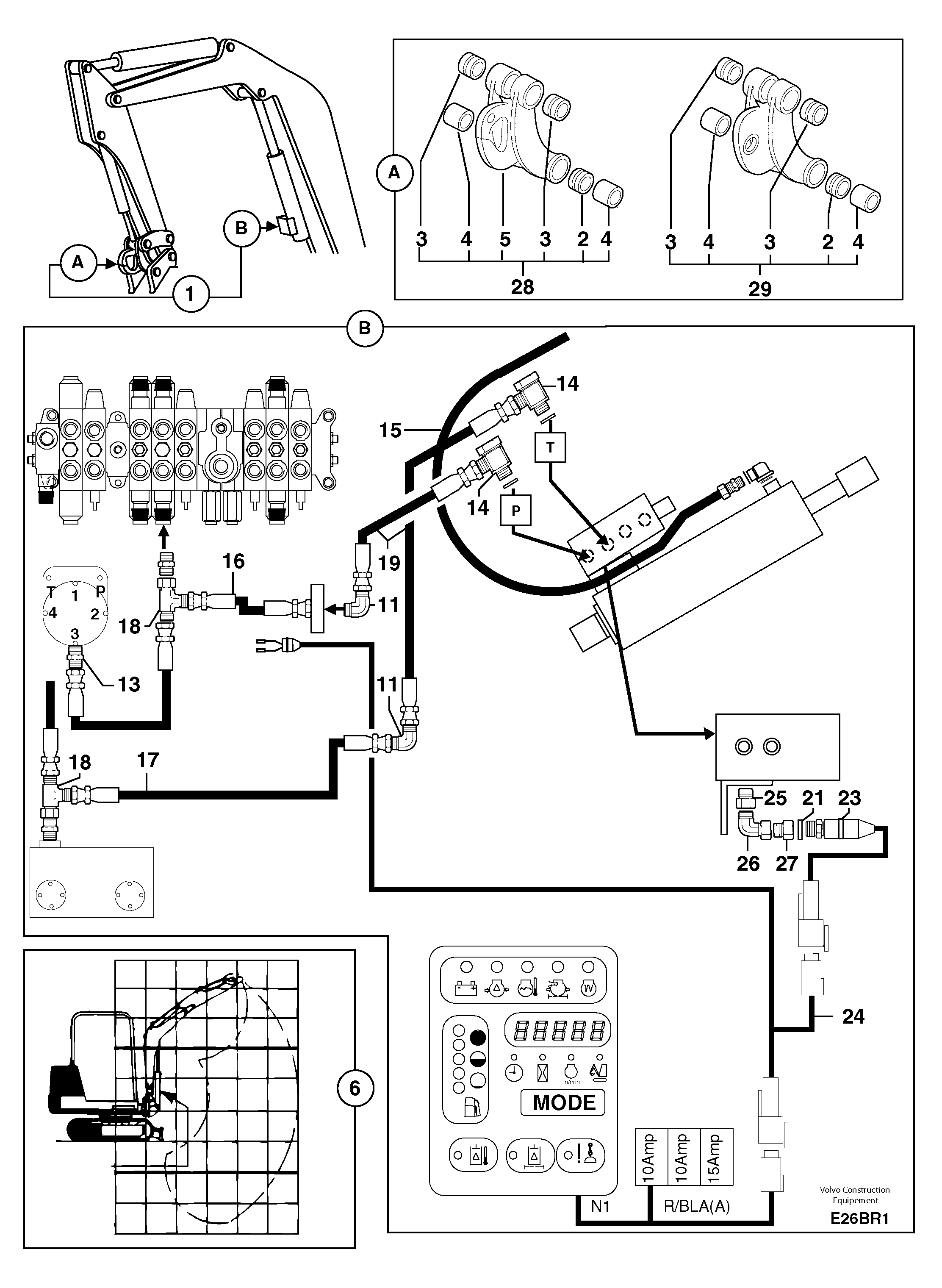
1

PJ 6660143

Handling

1шт.

11

VOE 11806288

Elbow

1шт.

13

PJ 4750055

Переходник масляного фильтра

1шт.

14

PJ 4700034

Banjo connection

1шт.

15

PJ 5910511

Трубка

1шт.

16

PJ 4190205

Шланг

1/4''

1шт.

17

PJ 4190223

Шланг

1/4''

1шт.

18

PJ 4720008

Tee

1шт.

19

PJ 4190298

Шланг

1/4''

1шт.

2

VOE 11804704

Вставка

INCL IN 28-29

1шт.

21

VOE 14013067

Sealing washer

1шт.

21

VOE 14013067

Sealing washer

1шт.

23

PJ 5130076

Sensor

1шт.

24

PJ 5720397

Wire harness

1шт.

25

PJ 4750044

Переходник масляного фильтра

1шт.

26

PJ 4700015

Elbow

1шт.

27

PJ 4750433

Переходник масляного фильтра

1шт.

28

PJ 5460073

Connecting Link

ORDER ITEM NO 29

1шт.

29

PJ 5460407

Connecting Link

1шт.

3

VOE 11804705

Втулка

INCL IN 28-29

1шт.

4

VOE 11804703

Втулка

INCL IN 28-29

1шт.

5

PJ 4830002

Hook

INCL IN 28

1шт.

6

PJ 5751020

Decal

1шт.

Выбрано товаров: 0