Запчасти Volvo EC50 46405 Electrical system / with Puma EC50 TYPE 247

Схема запчастей Volvo EC50 - 46405 Electrical system / with Puma EC50 TYPE 247
FIT
1:1
100%

Артикул

Название

Примечание

Количество

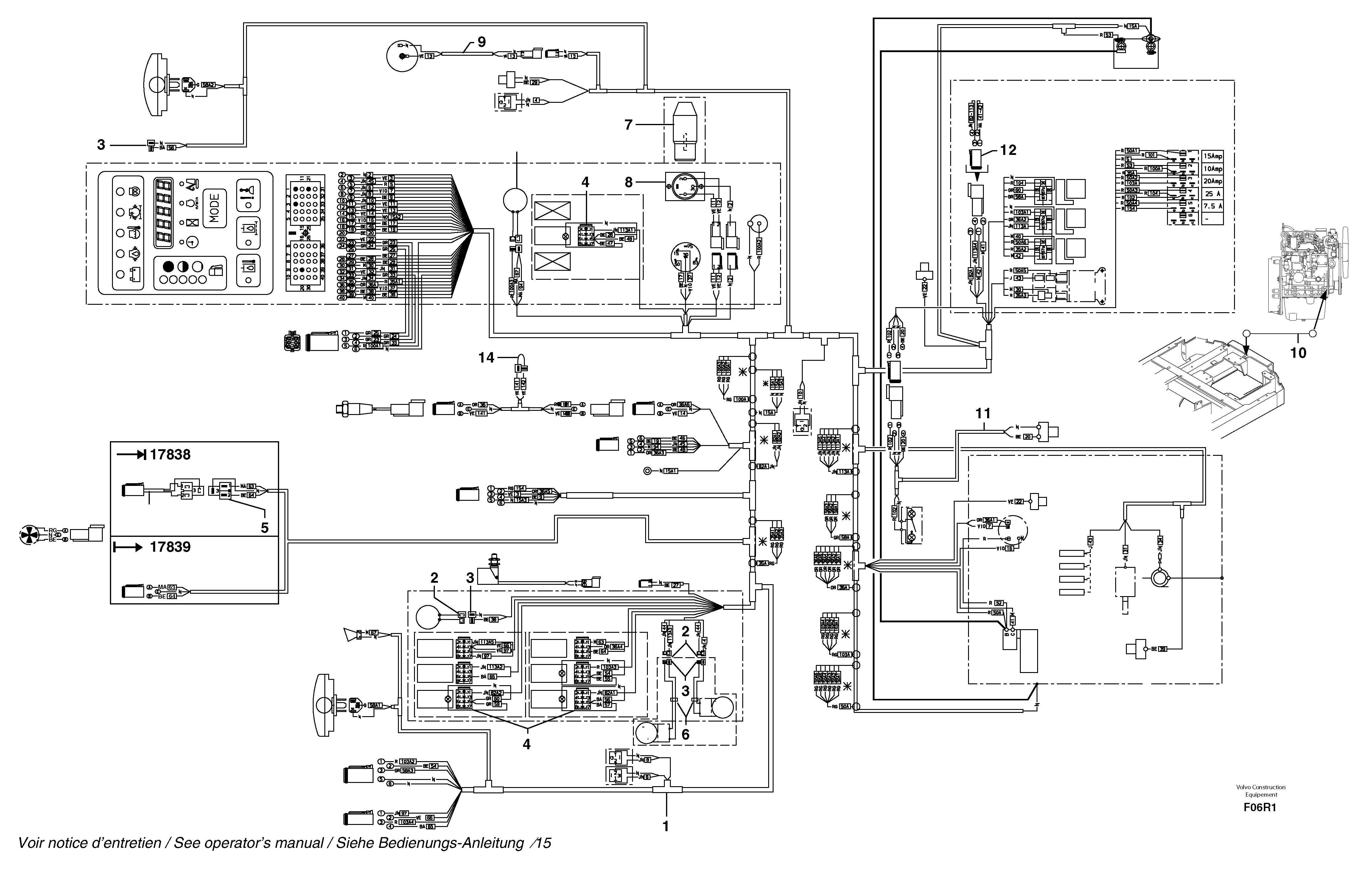
1

PJ 5720345

Wire harness

1шт.

10

VOE 11805635

Cable

1шт.

11

PJ 5720347

Wire harness

1шт.

12

PJ 5720348

Wire harness

1шт.

13

PJ 385620290

Plug connector

1шт.

14

PJ 5720279

Wire harness

1шт.

2

PJ 5080013

Plug connector

1шт.

3

PJ 5080012

Plug connector

1шт.

4

PJ 5080030

Plug connector

1шт.

5

PJ 5080017

Plug connector

1шт.

6

PJ 5720139

Wire harness

1шт.

7

PJ 5720307

Coded key

1шт.

8

PJ 5720305

Cable harness

1шт.

9

PJ 5720346

Wire harness

1шт.

Выбрано товаров: 14