Запчасти Volvo EC70 2659 Handling operations Ce / with Puma EC70 TYPE 233

Схема запчастей Volvo EC70 - 2659 Handling operations Ce / with Puma EC70 TYPE 233
FIT
1:1
100%

Артикул

Название

Примечание

Количество

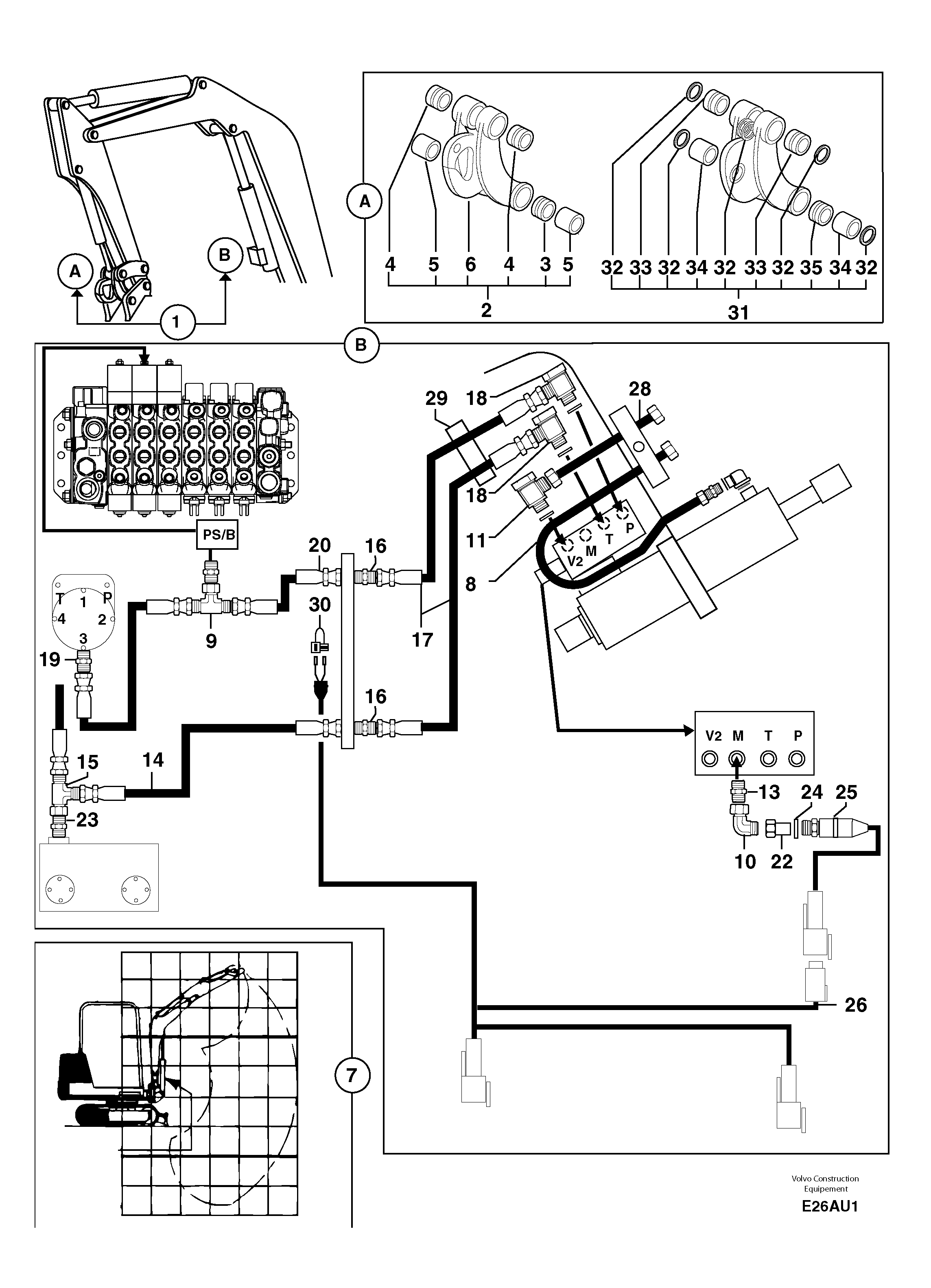
1

PJ 6820117

Handling

1шт.

10

PJ 4700015

Elbow

1шт.

11

PJ 4700046

Banjo connection

1шт.

13

PJ 4750342

Переходник масляного фильтра

1шт.

14

PJ 4192478

Шланг

1/4''

1шт.

15

PJ 4720008

Tee

1шт.

16

PJ 4750047

Переходник масляного фильтра

1шт.

17

PJ 4192523

Шланг

1/4"

1шт.

18

PJ 4700034

Banjo connection

1шт.

19

PJ 4750055

Переходник масляного фильтра

1шт.

2

PJ 5460039

Connecting Link

ORDER ITEM NO 31

1шт.

20

PJ 4190297

Шланг

1/4''

1шт.

22

PJ 4750613

Адаптер

1шт.

23

PJ 4750055

Переходник масляного фильтра

1шт.

24

VOE 14013067

Sealing washer

1шт.

24

VOE 14013067

Sealing washer

1шт.

25

PJ 5130076

Sensor

1шт.

26

PJ 5720534

Wire harness

1шт.

28

PJ 6010173

Трубка

1шт.

29

VOE 11803561

Зажим

1шт.

3

PJ 3870069

Вставка

1шт.

30

PJ 5720279

Wire harness

1шт.

31

PJ 5460408

Connecting Link

1шт.

32

PJ 6140041

Сальник

1шт.

33

PJ 3870233

Втулка

1шт.

34

PJ 3870230

Втулка

1шт.

35

PJ 3870231

Вставка

1шт.

4

PJ 3870068

Втулка

1шт.

5

PJ 3870062

Втулка

1шт.

6

PJ 4830002

Hook

1шт.

7

PJ 5751022

Decal

1шт.

8

PJ 5900275

Трубка

1шт.

9

PJ 4720007

Tee

1шт.

Выбрано товаров: 33