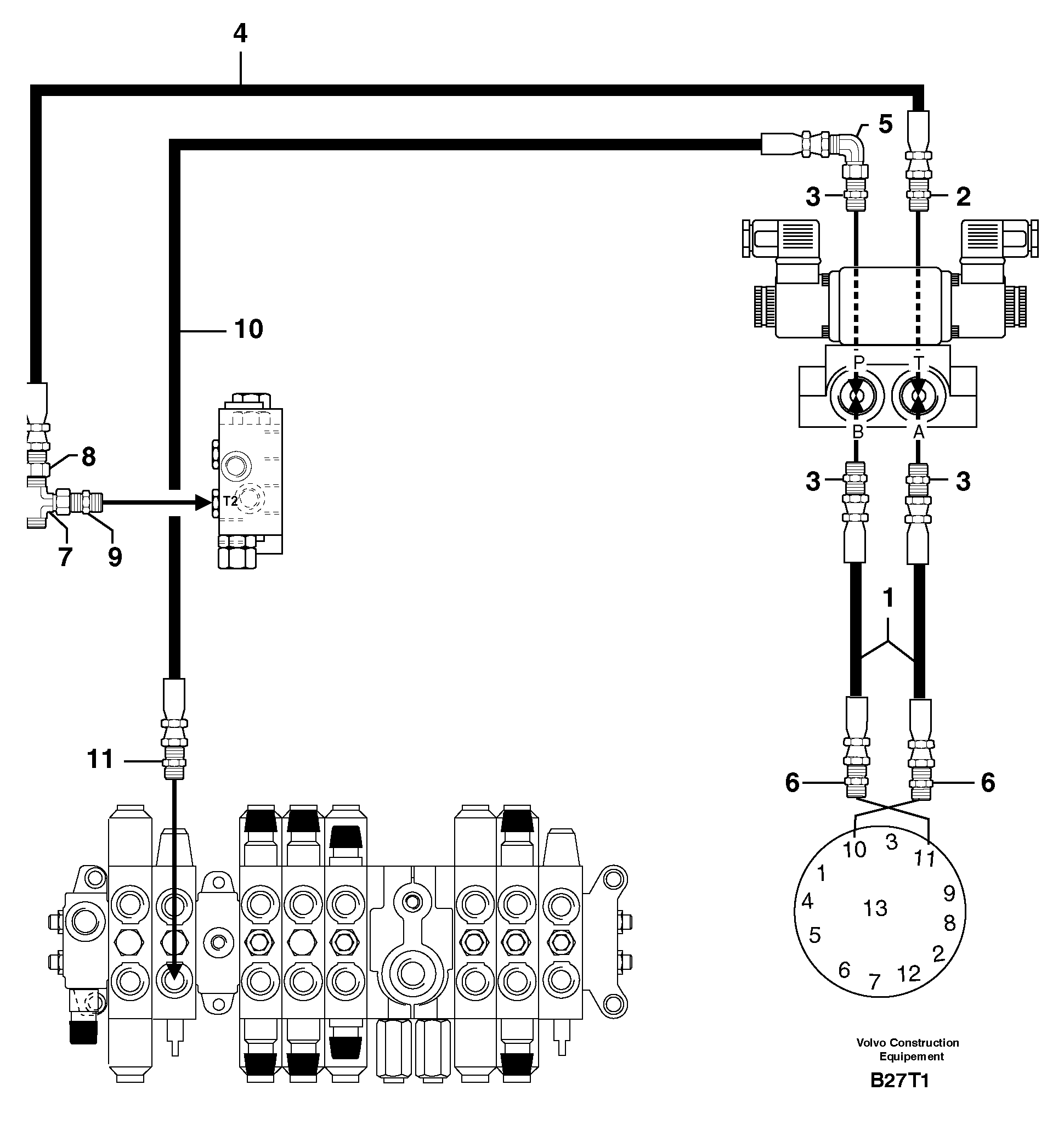
Запчасти Volvo EW50 33205 Hydr. circuit. ( stabiliser ) EW50VV TYPE 256

Схема запчастей Volvo EW50 - 33205 Hydr. circuit. ( stabiliser ) EW50VV TYPE 256
FIT
1:1
100%

Артикул

Название

Примечание

Количество

1

PJ 4193062

High pressure hose

5/16"

1шт.

10

PJ 4190392

High pressure hose

5/16"

1шт.

11

PJ 4750596

Переходник масляного фильтра

1шт.

2

VOE 11806376

Переходник масляного фильтра

1шт.

3

PJ 4750421

Переходник масляного фильтра

1шт.

4

PJ 4194027

High pressure hose

3/8"

1шт.

5

PJ 4700006

Elbow

1шт.

6

VOE 11806380

Переходник масляного фильтра

1шт.

7

PJ 4720006

Tee

1шт.

8

PJ 4750022

Адаптер

1шт.

9

PJ 4750276

Вал

1шт.

Выбрано товаров: 11