Запчасти Volvo EW50 26181 Handling operations Ce / with Puma EW50VV TYPE 256

Схема запчастей Volvo EW50 - 26181 Handling operations Ce / with Puma EW50VV TYPE 256
FIT
1:1
100%

Артикул

Название

Примечание

Количество

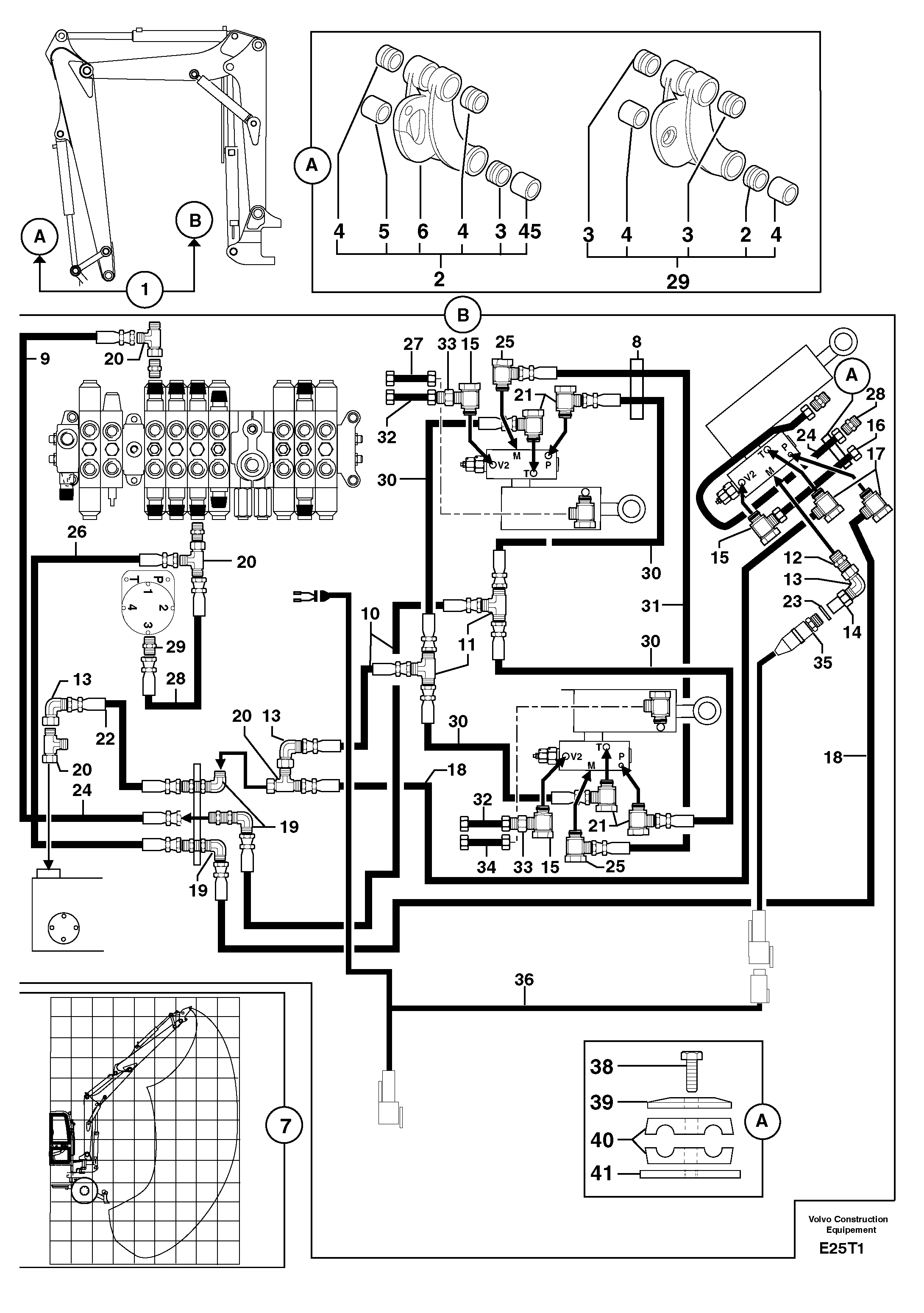
1

PJ 6812050

Handling

1шт.

10

PJ 4190295

High pressure hose

1/4''

1шт.

11

PJ 4720018

Tee

1шт.

12

PJ 4750342

Переходник масляного фильтра

1шт.

13

PJ 4700015

Elbow

1шт.

14

PJ 4750613

Адаптер

1шт.

15

PJ 4700046

Banjo connection

1шт.

16

PJ 5910632

Трубка

1шт.

17

PJ 4700034

Banjo connection

1шт.

18

PJ 4192522

Шланг

1/4"

1шт.

19

VOE 11806288

Elbow

1шт.

2

PJ 5460073

Connecting Link

PJ 5460073

1шт.

20

PJ 4720008

Tee

1шт.

21

PJ 4700034

Banjo connection

1шт.

22

PJ 4190223

Шланг

1/4''

1шт.

23

VOE 14013067

Sealing washer

1шт.

23

VOE 14013067

Sealing washer

1шт.

24

PJ 5910631

Трубка

1шт.

25

PJ 4700045

Elbow

1шт.

26

PJ 4190205

Шланг

1/4''

1шт.

27

PJ 5910749

Трубка

1шт.

28

PJ 4750037

Переходник масляного фильтра

1шт.

29

PJ 4750055

Переходник масляного фильтра

1шт.

3

VOE 11804704

Вставка

INCL IN 2-42

1шт.

30

PJ 4190205

Шланг

1/4''

1шт.

31

PJ 4190192

High pressure hose

3/16"

1шт.

32

PJ 4760103

Трубка

1шт.

33

PJ 4750022

Адаптер

1шт.

34

PJ 5910748

Трубка

1шт.

35

PJ 5130076

Sensor

1шт.

36

PJ 5720397

Wire harness

1шт.

38

PJ 4380047

Болт

HM8X40

1шт.

39

VOE 11806180

Protecting plate

1шт.

4

VOE 11804705

Втулка

INCL IN 2-42

1шт.

40

PJ 4690066

Зажим

1шт.

41

VOE 11806218

Пластина

1шт.

42

PJ 5460407

Connecting Link

1шт.

5

VOE 11804703

Втулка

INCL IN 2-42

1шт.

6

PJ 4830002

Hook

INCL IN 2

1шт.

7

PJ 5750862

Decal

1шт.

8

VOE 11803561

Зажим

1шт.

9

PJ 4190224

Шланг

1/4''

1шт.

Выбрано товаров: 42