Качественные детали и логистика
Оригинальные и аналоговые запчасти с доставкой по России, Казахстану и Беларуси
©2022 PartSell ООО "Система" ИНН 2463123282 ОГРН 1212400004838
Центральный офис: г. Красноярск, Академика Киренского, д.87, пом.4
Телефон: 8 (800) 777-65-74 Email: zakaz@partsell.ru
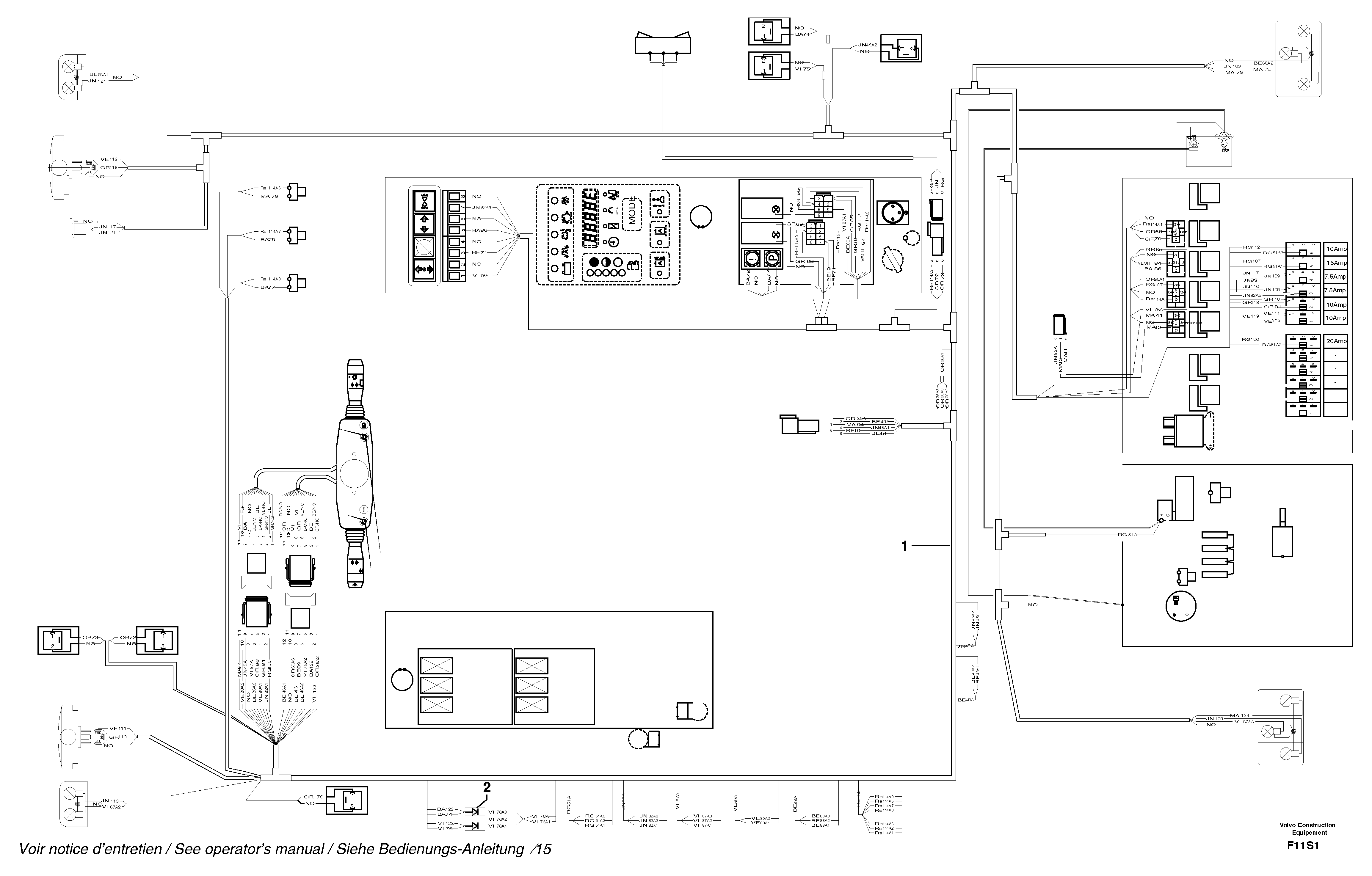
12226 Electrical system / road version
№
Артикул
Название
Примечание
Количество
1
PJ 5720352
Wire harness
1шт.
2
PJ 5060004
Диод
Выбрано товаров: 0