Качественные детали и логистика
Оригинальные и аналоговые запчасти с доставкой по России, Казахстану и Беларуси
©2022 PartSell ООО "Система" ИНН 2463123282 ОГРН 1212400004838
Центральный офис: г. Красноярск, Академика Киренского, д.87, пом.4
Телефон: 8 (800) 777-65-74 Email: zakaz@partsell.ru
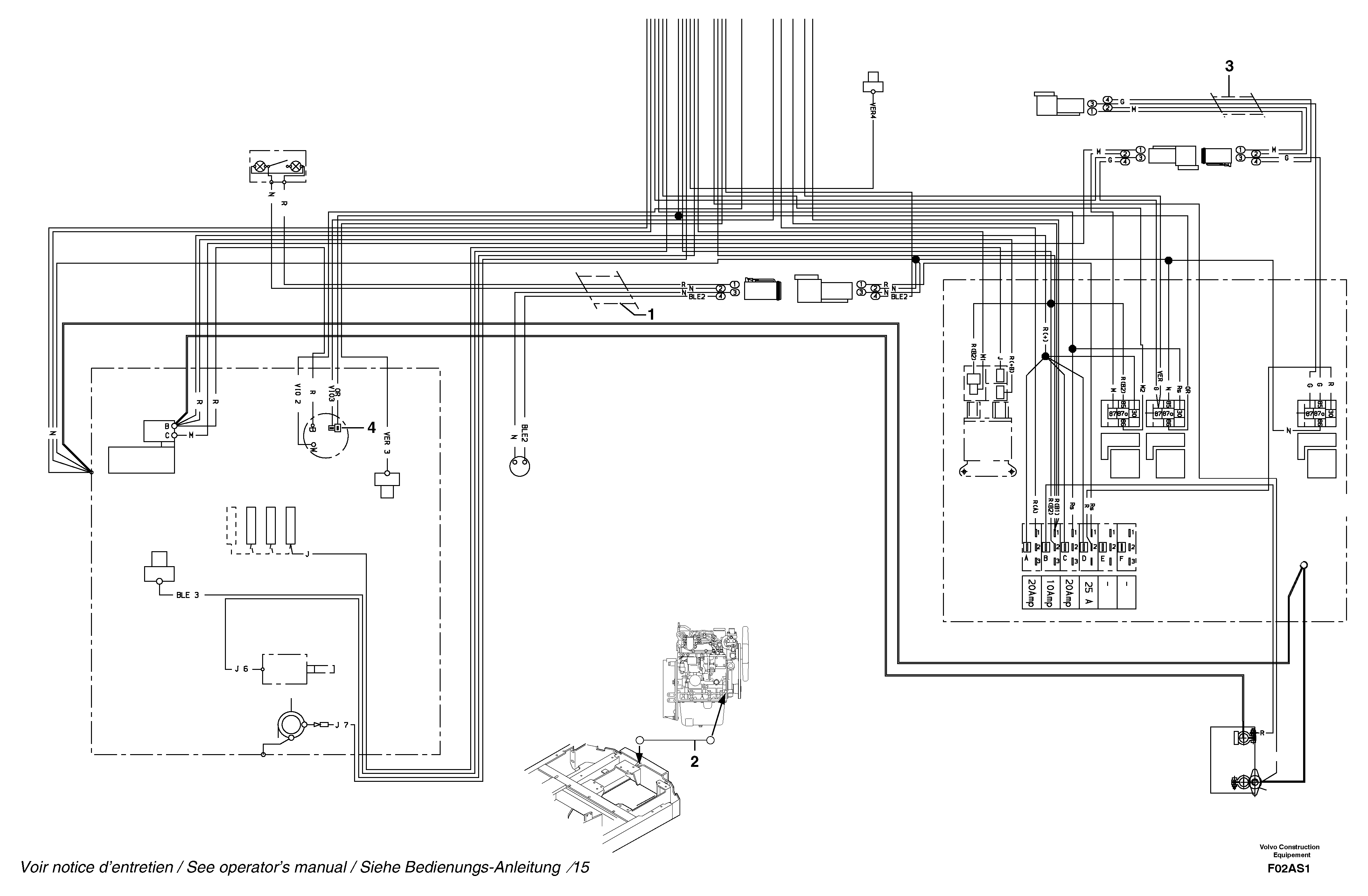
42148 Electrical system (rear) / with Puma
№
Артикул
Название
Примечание
Количество
1
PJ 5720347
Wire harness
1шт.
2
VOE 11805635
Cable
3
PJ 5720387
4
PJ 385620290
Plug connector
Выбрано товаров: 0