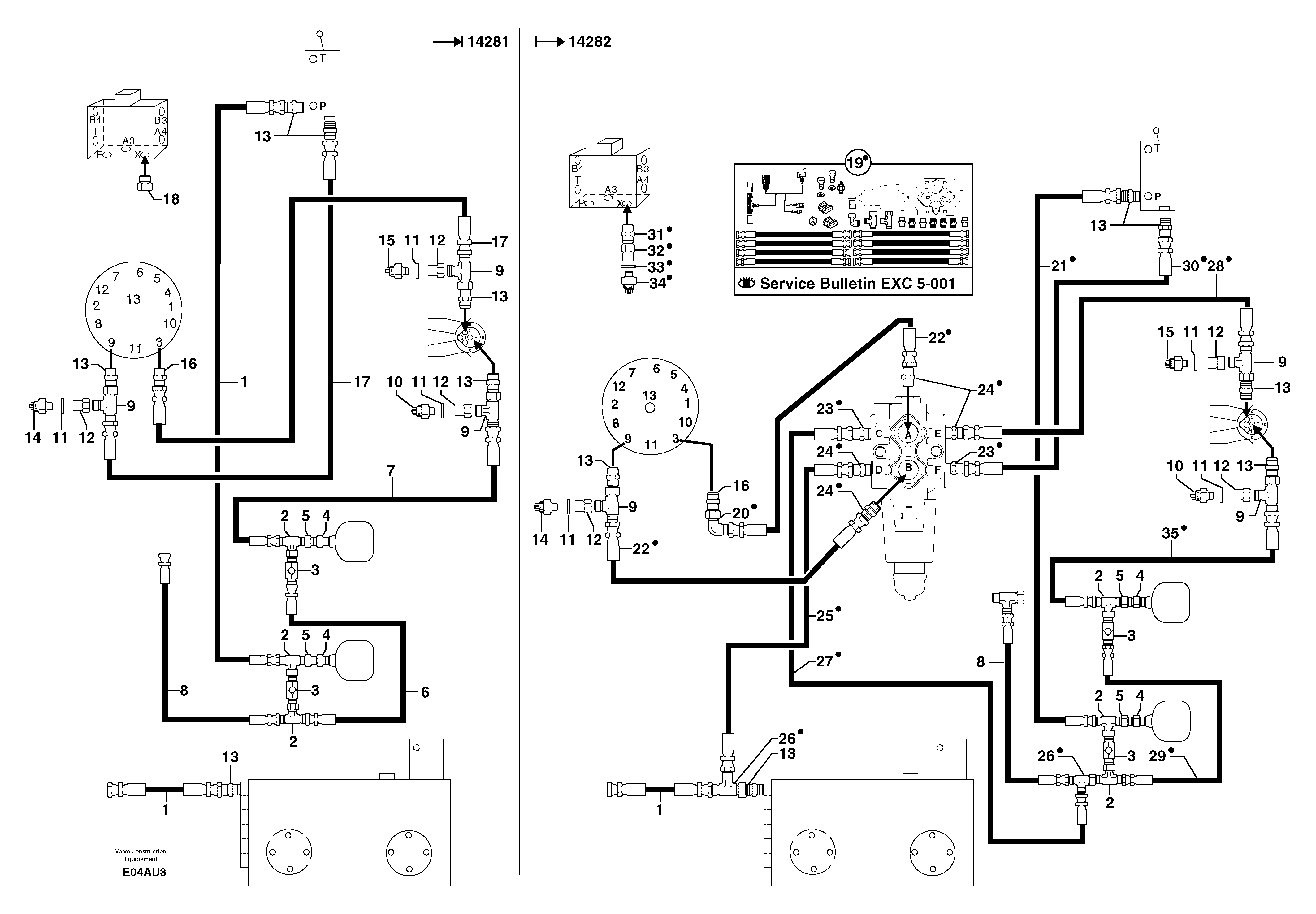
Запчасти Volvo EW70 102245 Hydr. circuit. ( platform ) ( continued ) EW70 TYPE 262

Схема запчастей Volvo EW70 - 102245 Hydr. circuit. ( platform ) ( continued ) EW70 TYPE 262
FIT
1:1
100%

Артикул

Название

Примечание

Количество

1

VOE 11805948

Шланг

1/4''

1шт.

10

PJ 5130096

Датчик давления (переключатель, реле)

1шт.

11

VOE 14013067

Sealing washer

1шт.

11

VOE 14013067

Sealing washer

1шт.

12

PJ 4750613

Адаптер

1шт.

13

PJ 4750055

Переходник масляного фильтра

1шт.

14

PJ 5130097

Датчик давления (переключатель, реле)

1шт.

15

VOE 11806278

Датчик давления (переключатель, реле)

1шт.

16

PJ 4750341

Переходник масляного фильтра

1шт.

17

PJ 4192452

Шланг

1/4''

1шт.

18

VOE 11802284

Пробка (заглушка)

1шт.

19

PJ 6830190

Kit for brake

S/N - 262.14281

1шт.

2

PJ 4720007

Tee

1шт.

20

VOE 11806283

Elbow

1шт.

21

VOE 11805943

Шланг

1/4''

1шт.

22

PJ 4193131

High pressure hose

1шт.

23

PJ 4750341

Переходник масляного фильтра

1шт.

24

PJ 4750421

Переходник масляного фильтра

1шт.

25

PJ 4193132

High pressure hose

1шт.

26

VOE 11806313

Nipple

1шт.

27

VOE 11805975

Шланг

1/4"

1шт.

28

PJ 4193134

High pressure hose

5/16''

1шт.

29

VOE 11805975

Шланг

1/4"

1шт.

3

PJ 5330044

Non-return valve

1шт.

30

PJ 4193133

High pressure hose

1шт.

31

PJ 4750055

Переходник масляного фильтра

1шт.

32

PJ 4750613

Адаптер

1шт.

33

VOE 14013067

Sealing washer

1шт.

33

VOE 14013067

Sealing washer

1шт.

34

PJ 5130074

Датчик давления (переключатель, реле)

1шт.

35

VOE 11805944

Hose assembly

1/4''

1шт.

4

PJ 4750345

Адаптер

1шт.

5

PJ 4750044

Переходник масляного фильтра

1шт.

6

PJ 4192447

Шланг

1/4''

1шт.

7

VOE 11805960

Шланг

1/4''

1шт.

8

VOE 11805945

Шланг

1/4''

1шт.

9

VOE 11806313

Nipple

1шт.

Выбрано товаров: 37